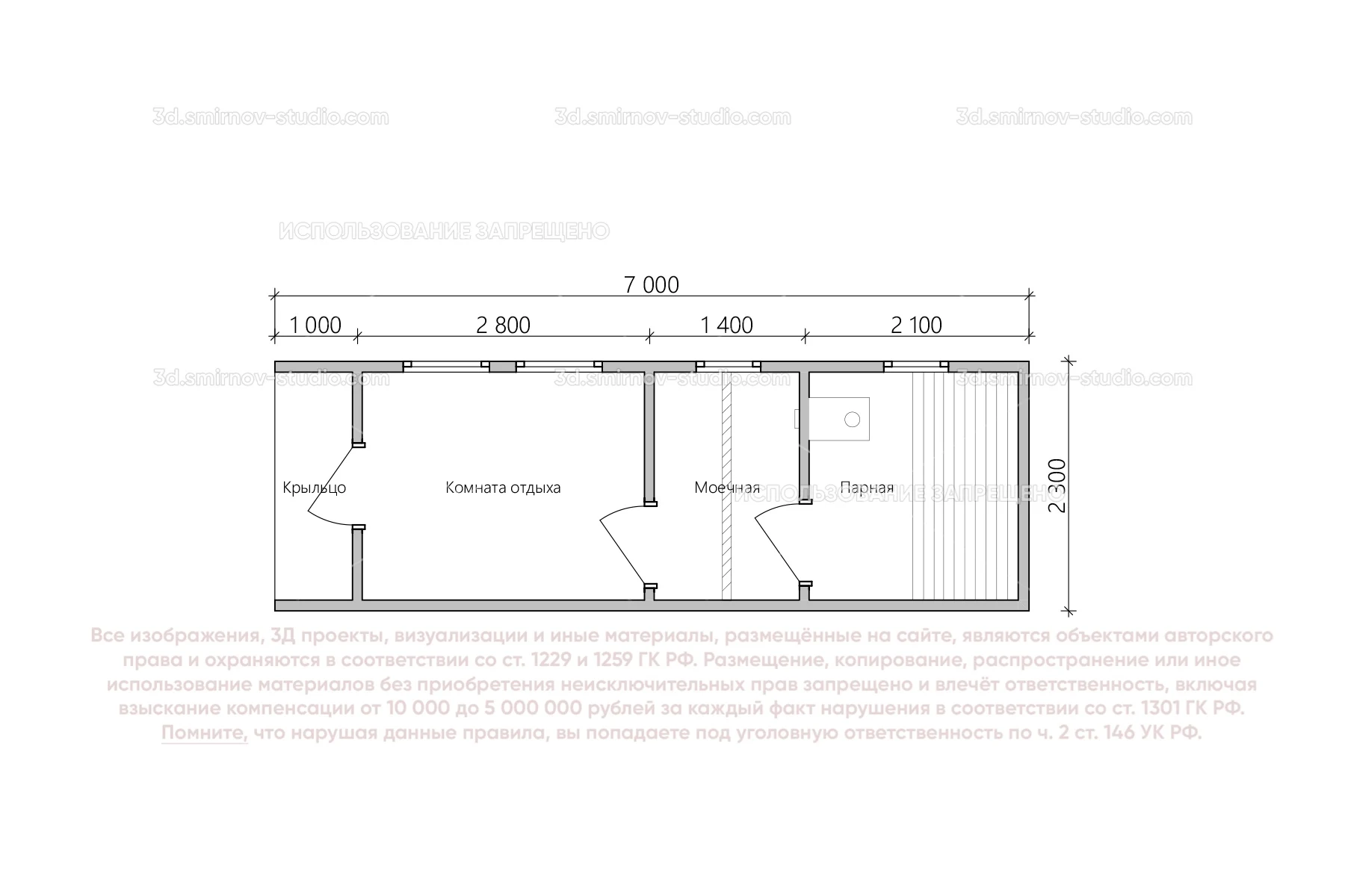
3Д проект мобильной бани в стиле барн 7 на 2.3 метра, площадью 12,90 м², с прямой крышей, крыльцом, комнатой отдыха и моечной
Выберите цвет проекта
Переключайтесь между цветами, нажимая на их изображения, чтобы увидеть проект в выбранном цвете или нажмите Выбрать, чтобы добавить цвет в корзину
По этому проекту мы можем сделать
- АР2 967 ₽
- КР5 160 ₽
- Смета1 548 ₽
Использование файлов данных браузера
Во время посещения сайта 3d.smirnov-studio.com вы соглашаетесь с тем, что мы обрабатываем ваши персональные данные с использованием метрических программ. Подробнее можно ознакомиться здесь













