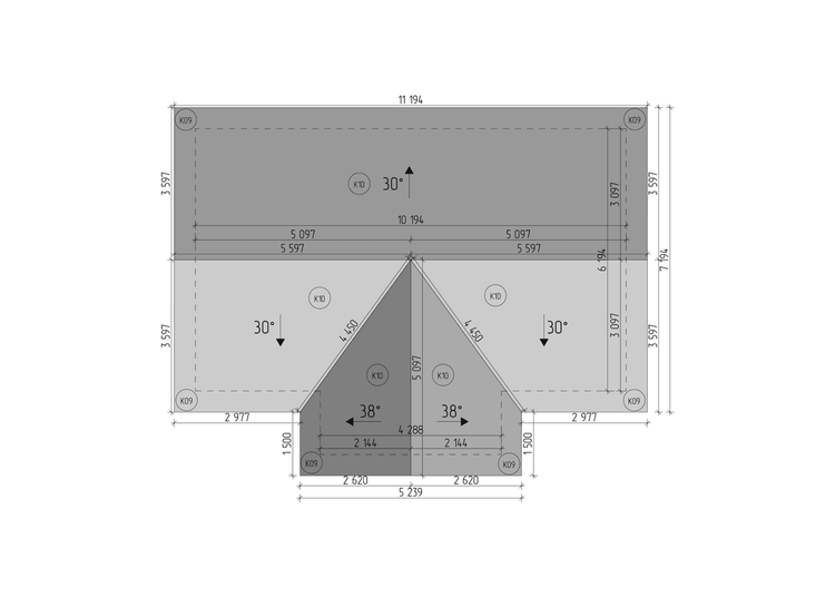
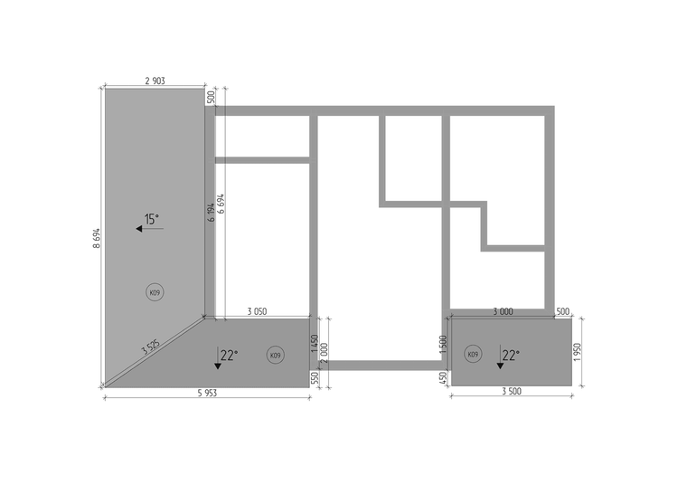
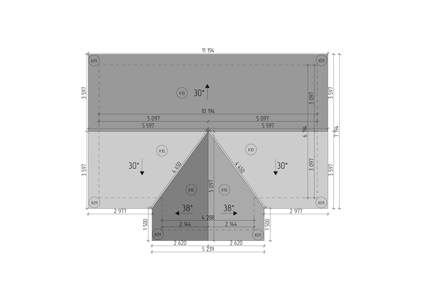
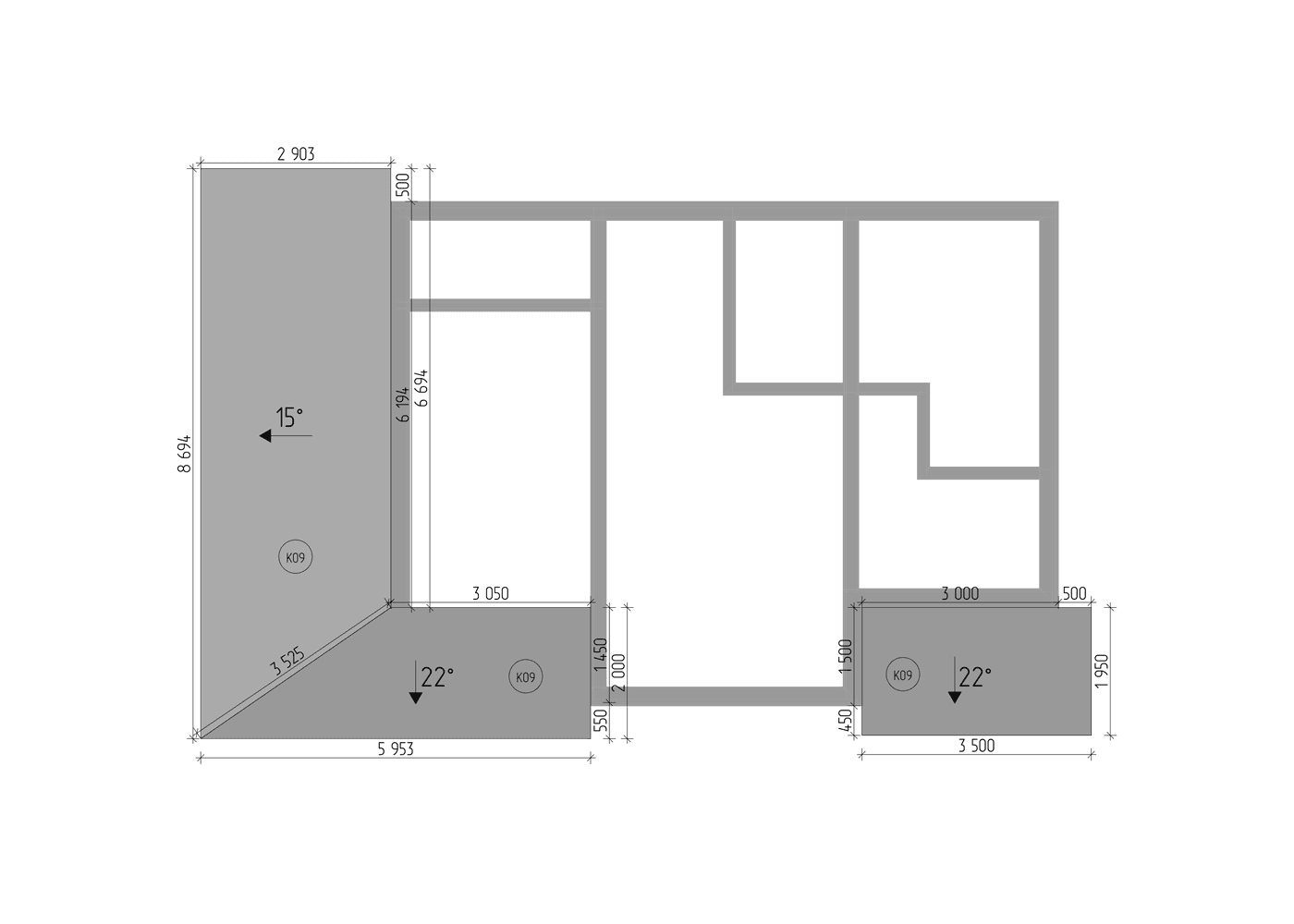
2Д планировка кровли
2Д планировка кровли — это дополнительная схема крыши с отображением конфигурации, основных размеров, скатов и общей геометрии. Опция помогает наглядно понять устройство кровли проекта и использовать данные для дальнейшей подготовки к строительным работам.
Если вам необходимо дополнить готовый проект из каталога 2Д планировкой кровли или заказать такую схему отдельно под ваш запрос, вы можете оформить эту услугу у нас. Подготовим понятную 2Д схему кровли для практического использования в работе, согласовании и дальнейшей проработке проекта.
Важно: выбор дополнительной опции доступен при оформлении проекта в корзине. Если нужны уточнения или индивидуальные пожелания, их можно сразу сообщить нашим менеджерам в переписке.
Стоимость 2Д планировок кровли
Использование файлов данных браузера
Во время посещения сайта 3d.smirnov-studio.com вы соглашаетесь с тем, что мы обрабатываем ваши персональные данные с использованием метрических программ. Подробнее можно ознакомиться здесь

