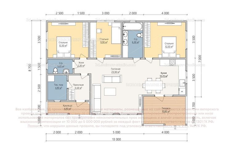
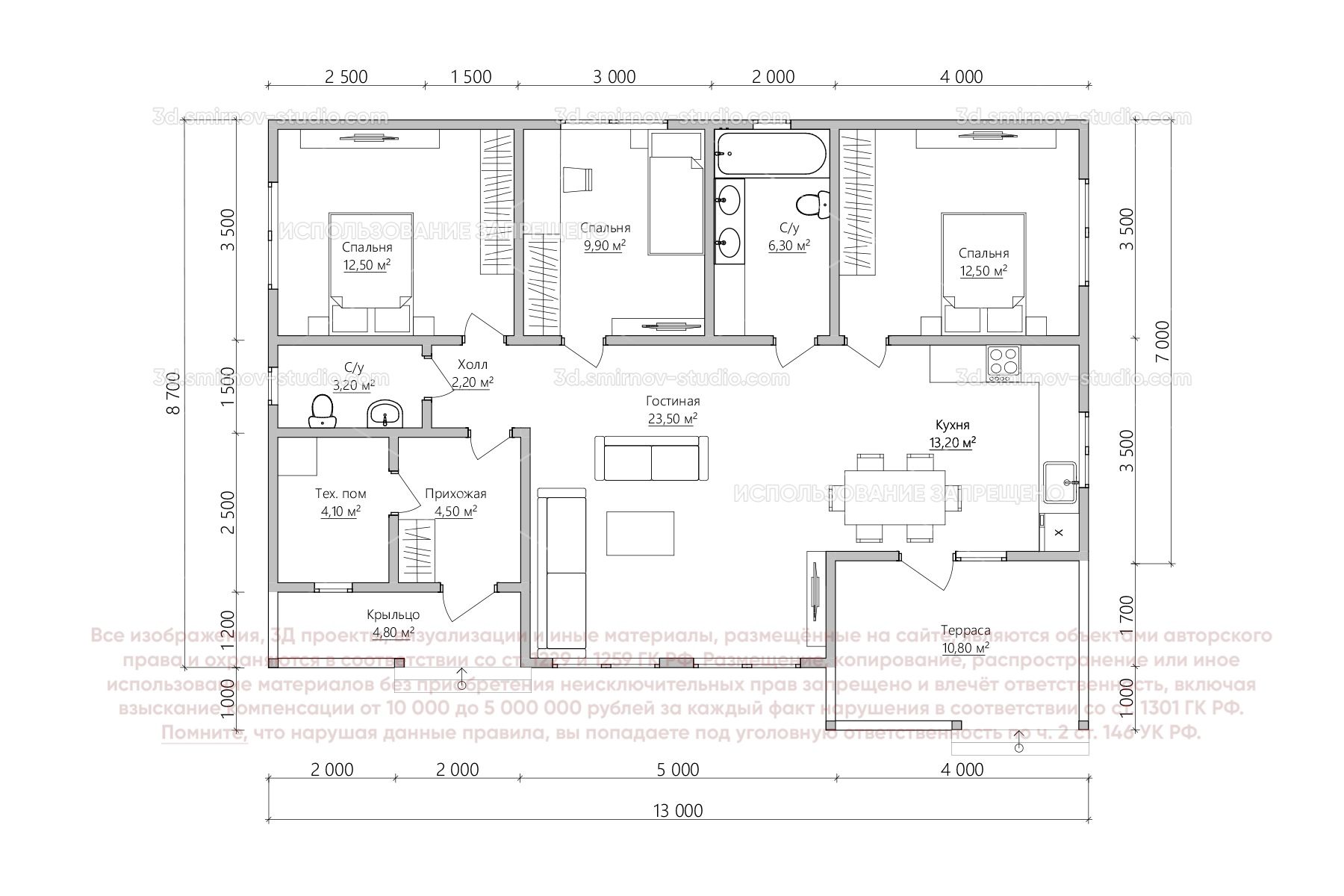
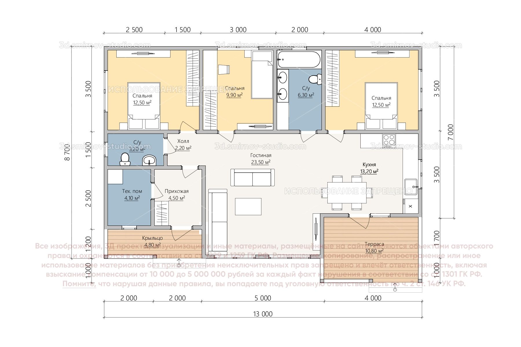
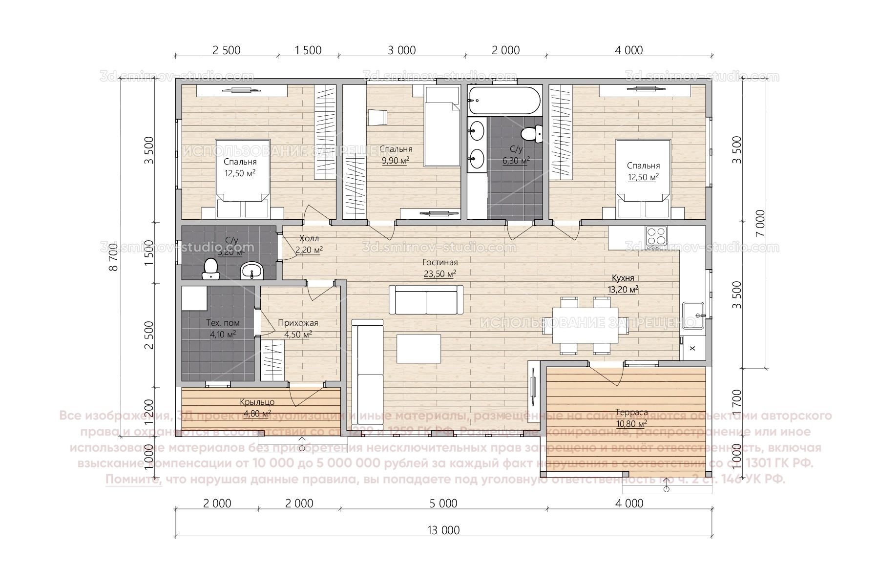
2Д мебелировка проекта
2Д мебелировка проекта — это дополнительный 2Д план с расстановкой мебели по помещениям. Такая опция помогает наглядно показать функциональность планировки, удобство зонирования и примерное размещение основных предметов интерьера.
Если вам необходимо дополнить готовый проект из каталога 2Д мебелировкой или заказать 2Д план с расстановкой мебели отдельно под ваш запрос, вы можете оформить эту услугу у нас. Подготовим наглядную планировку с мебелью, чтобы проект было удобнее презентовать, согласовывать и использовать в работе.
Важно: выбор дополнительной опции доступен при оформлении проекта в корзине. Если нужны уточнения или индивидуальные пожелания, их можно сразу сообщить нашим менеджерам в переписке.
Стоимость 2Д мебелировки проекта
Использование файлов данных браузера
Во время посещения сайта 3d.smirnov-studio.com вы соглашаетесь с тем, что мы обрабатываем ваши персональные данные с использованием метрических программ. Подробнее можно ознакомиться здесь


