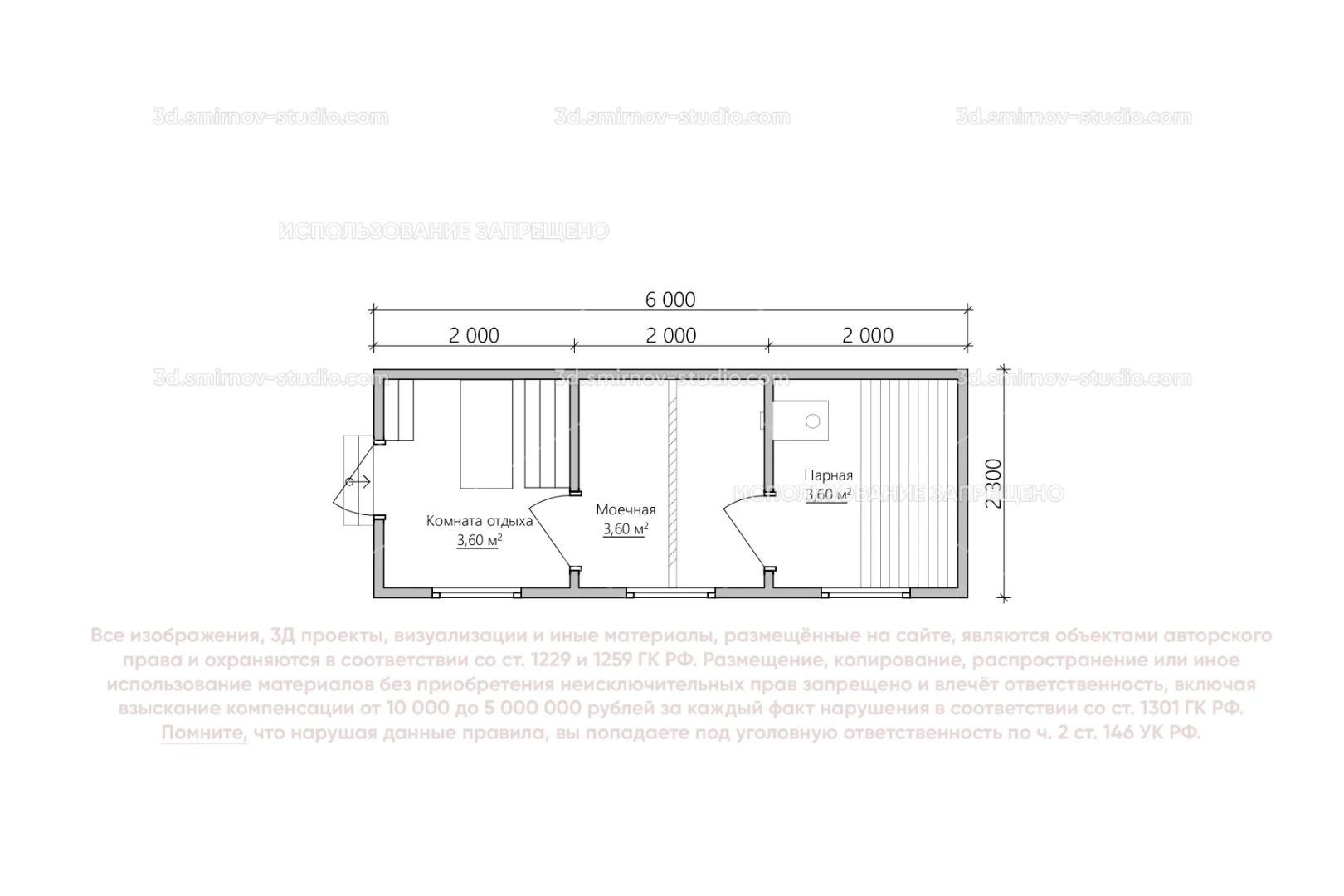
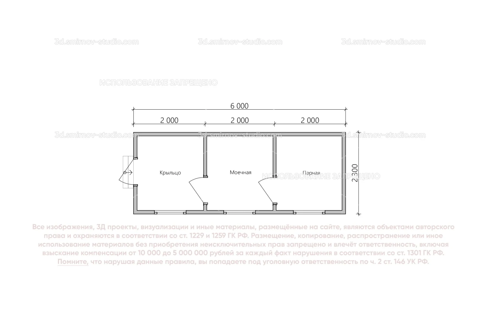
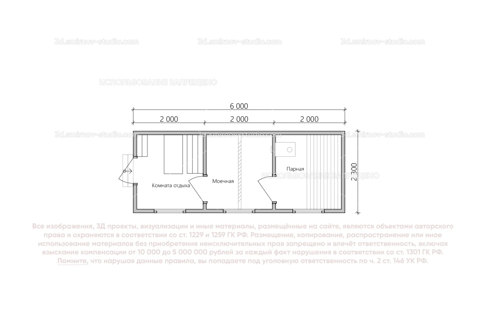
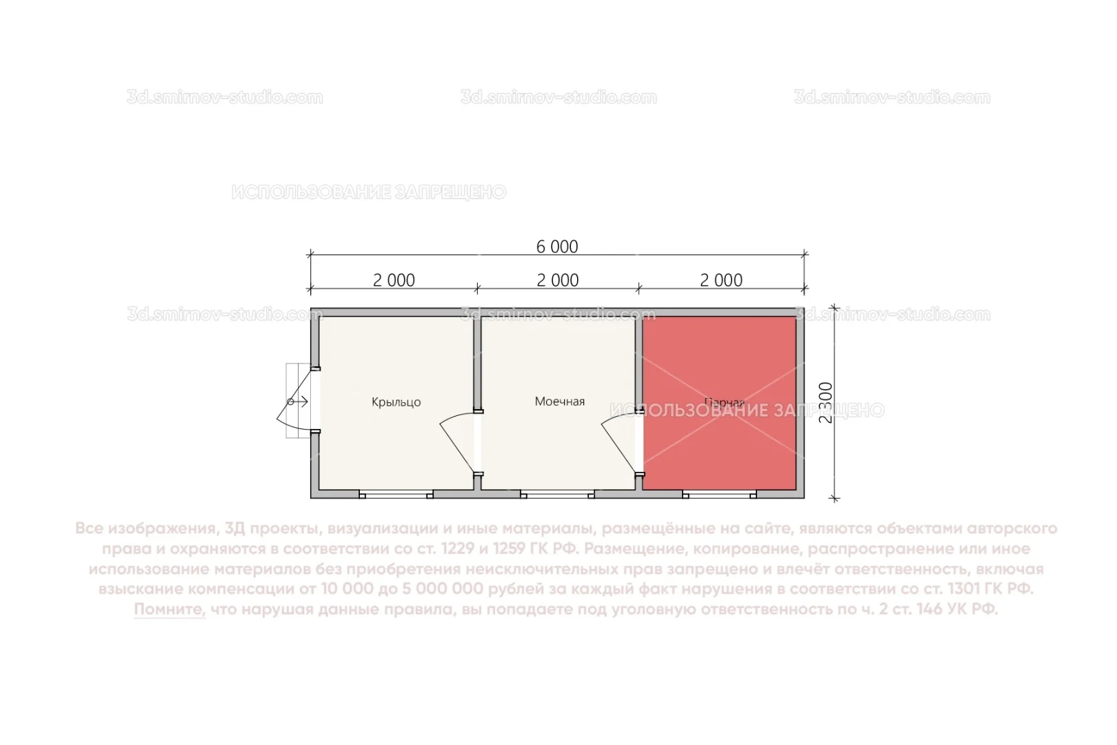
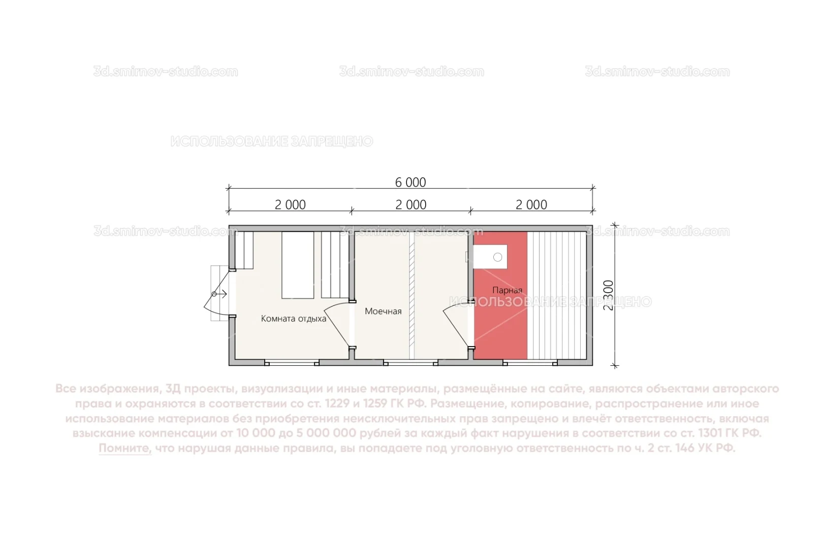
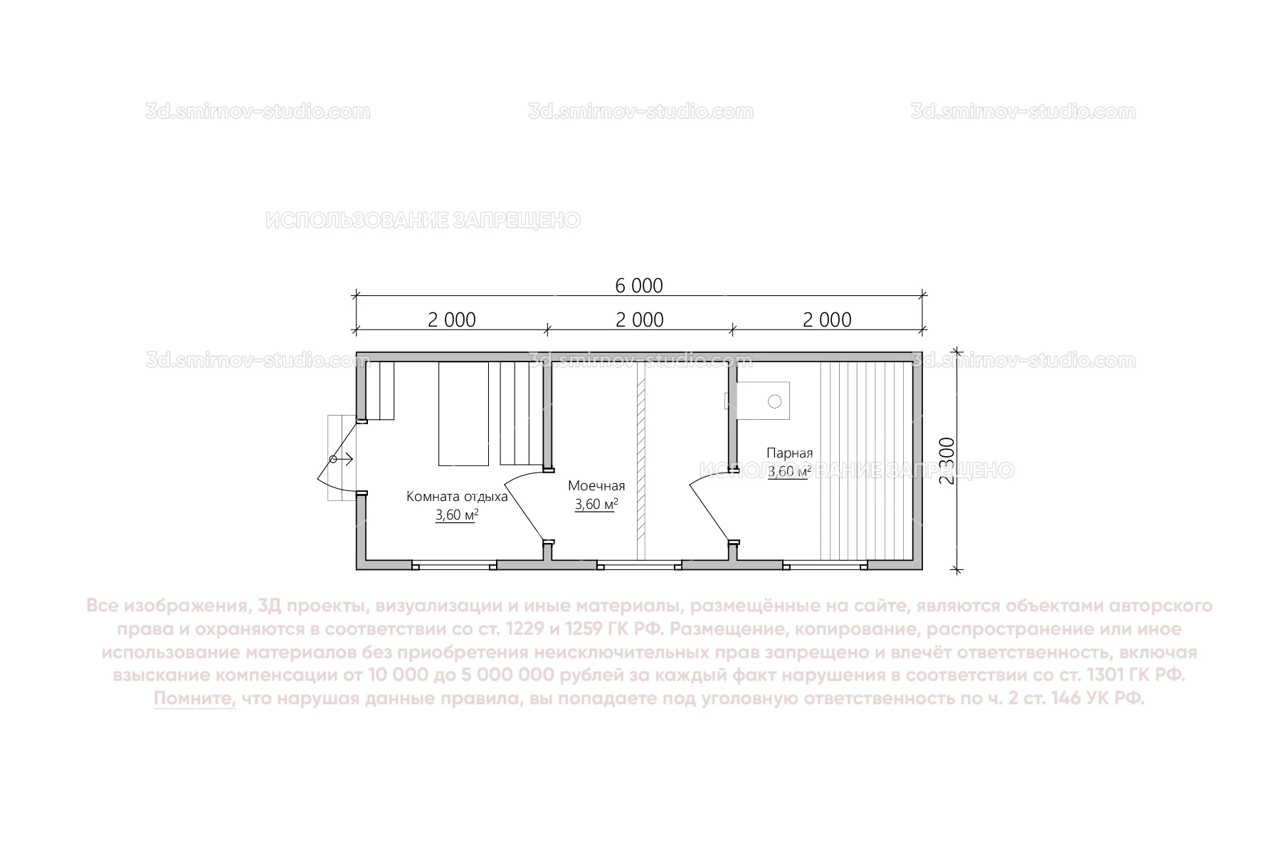
3Д проект мобильной бани в стиле барн 6 на 2.3 метра, площадью 10,80 м², с прямой крышей, комнатой отдыха и моечной
Выберите цвет проекта
Переключайтесь между цветами, нажимая на их изображения, чтобы увидеть проект в выбранном цвете или нажмите Выбрать, чтобы добавить цвет в корзину
По этому проекту мы можем сделать
- АР2 484 ₽
- КР4 320 ₽
- Смета1 296 ₽













