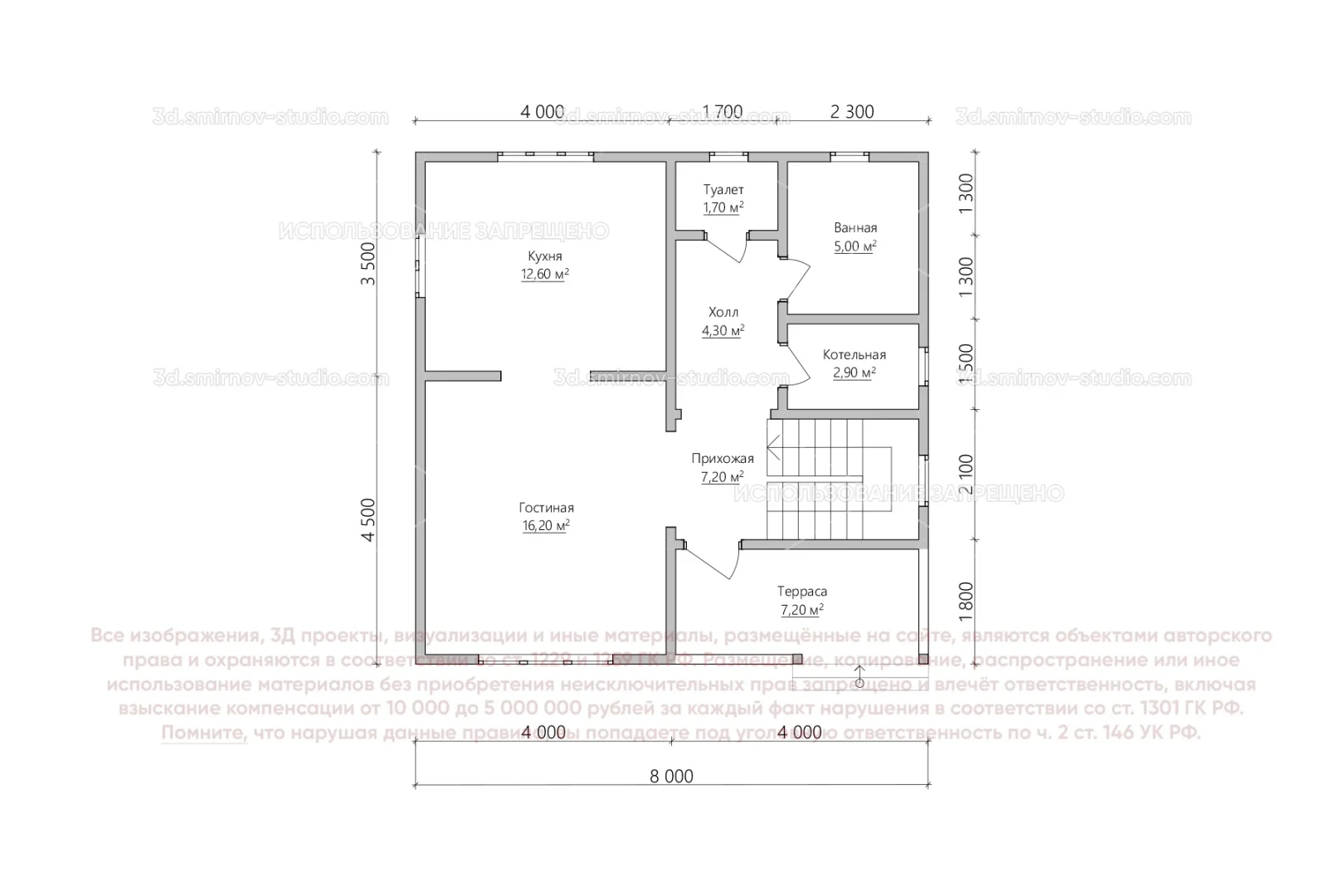
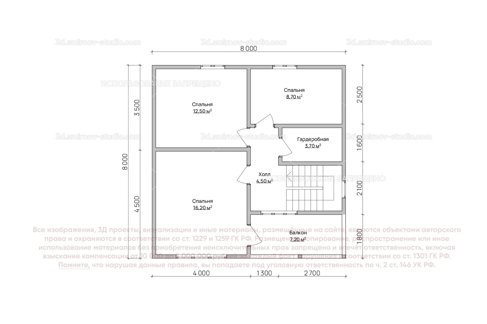
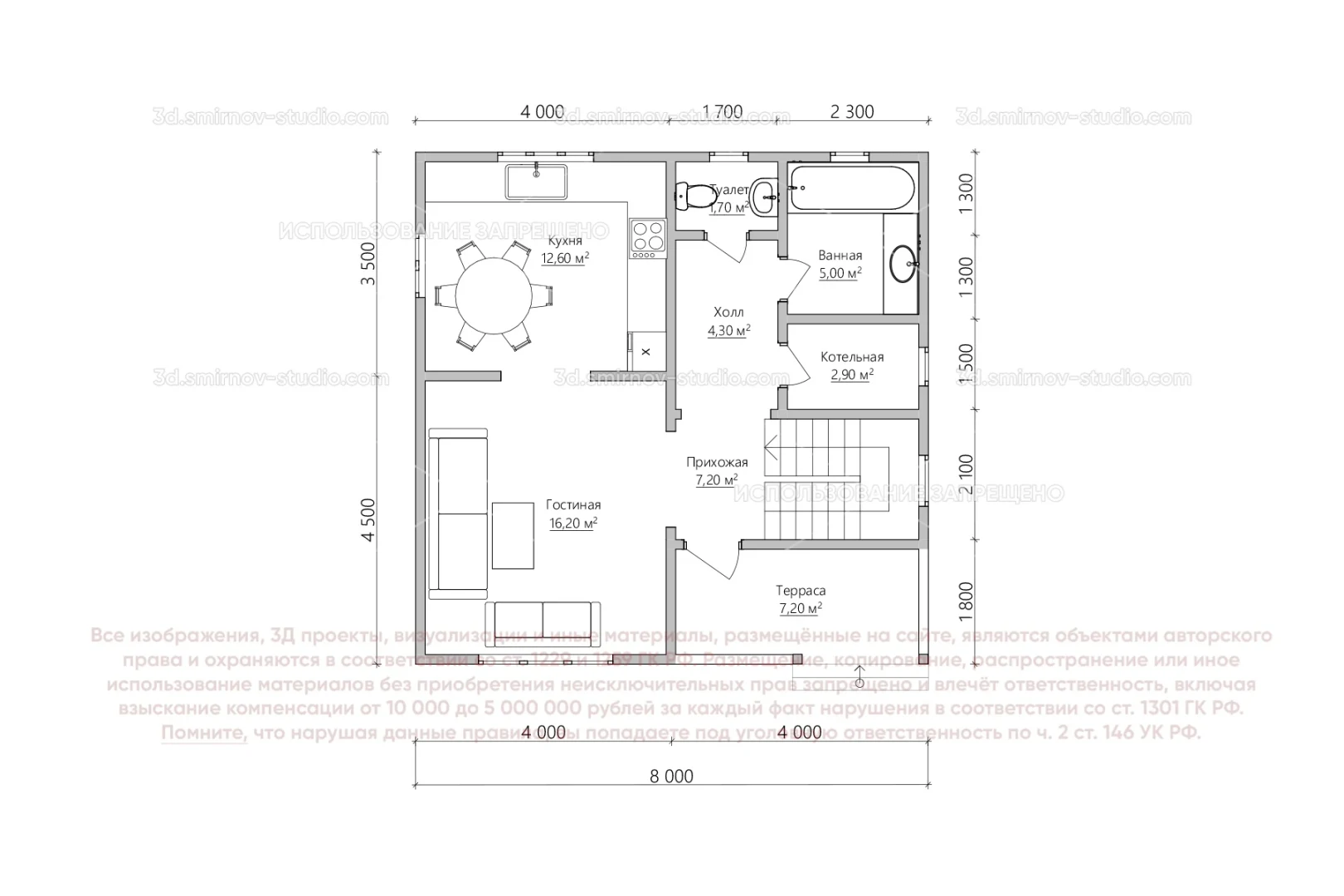
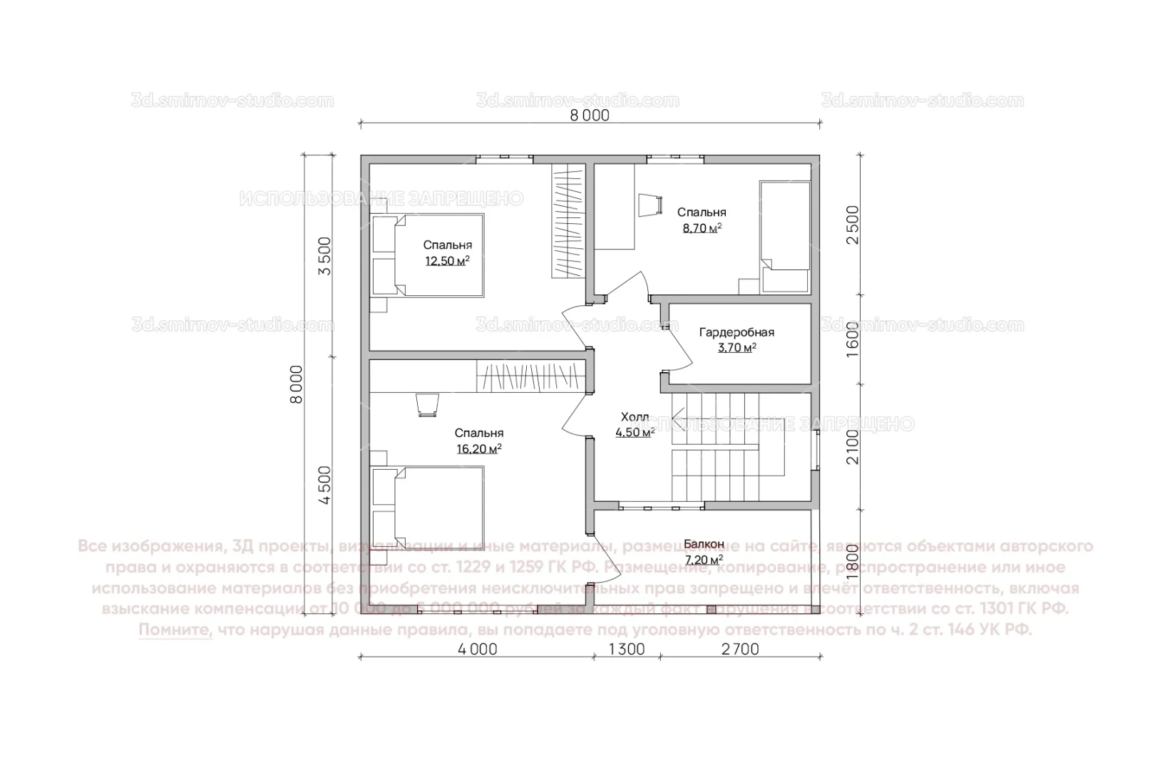
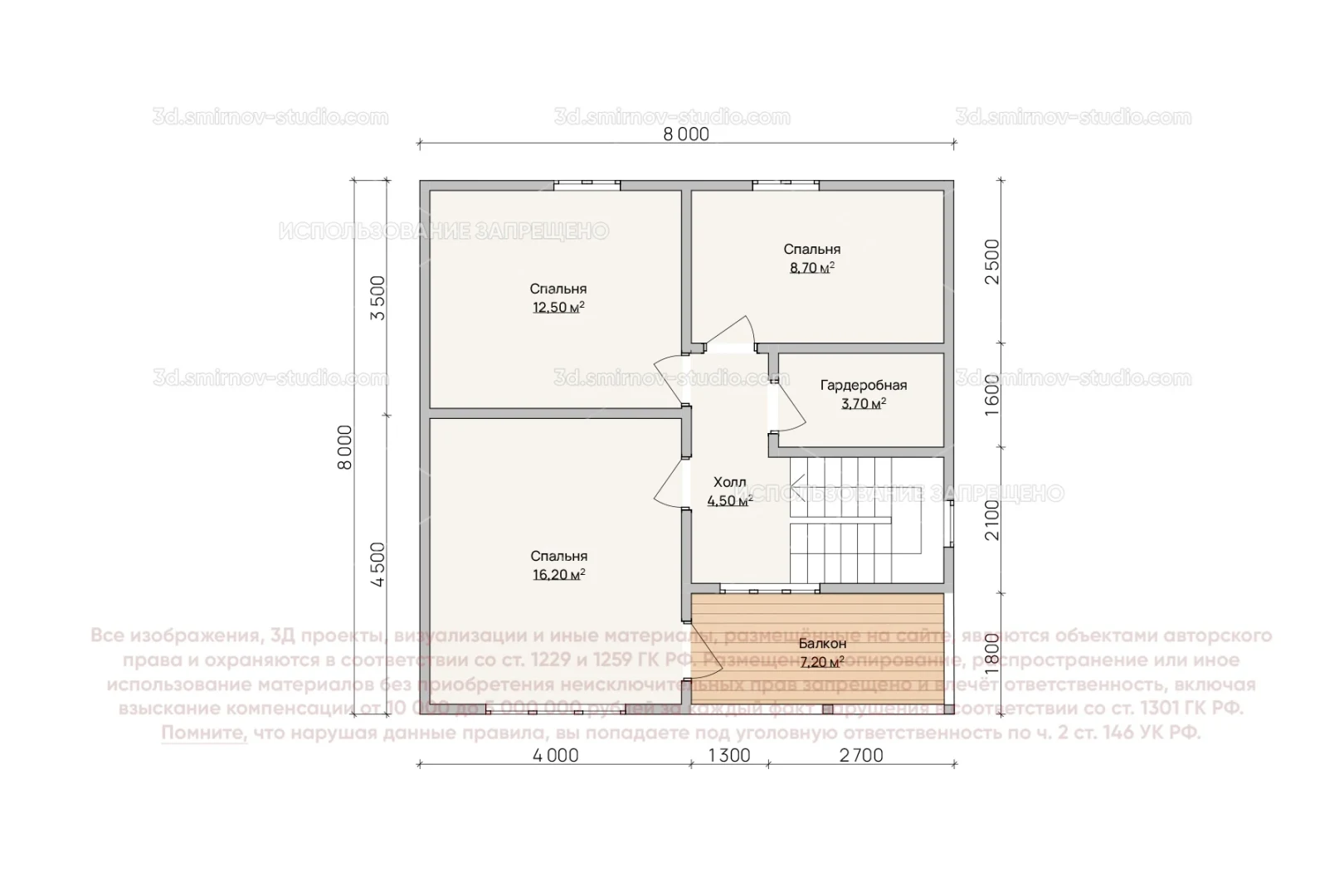
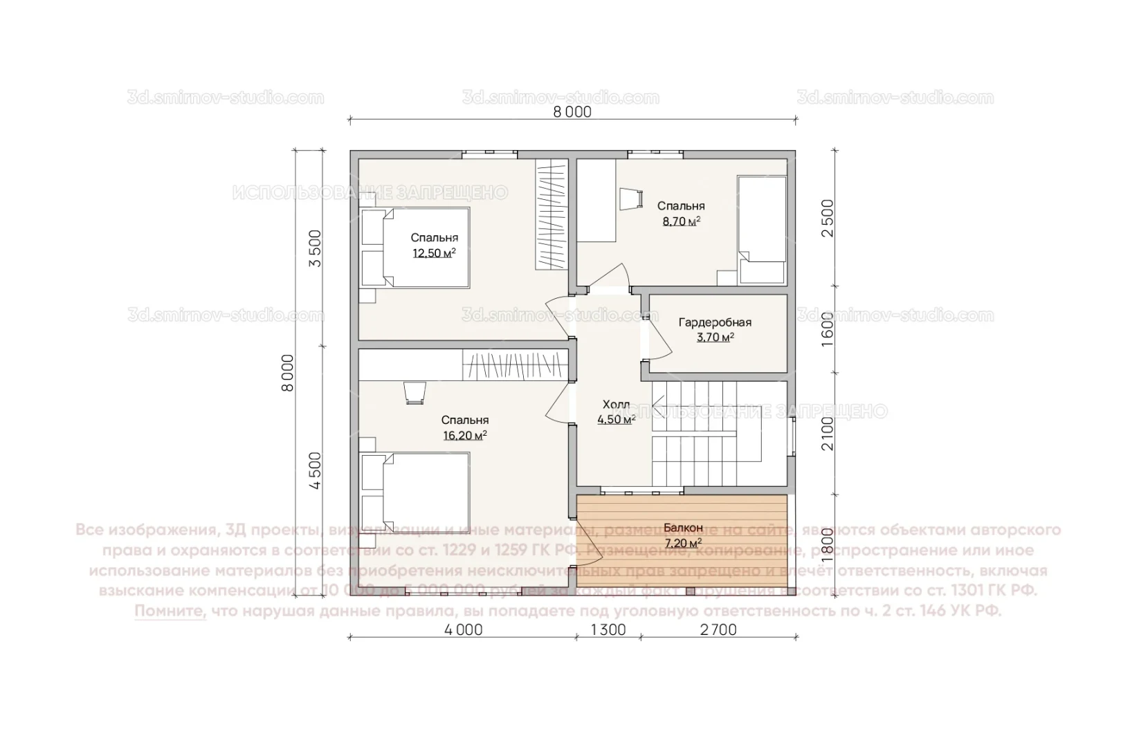
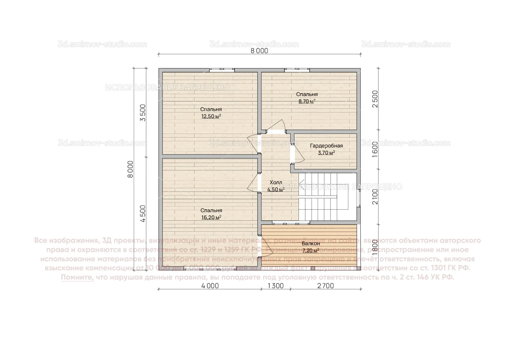
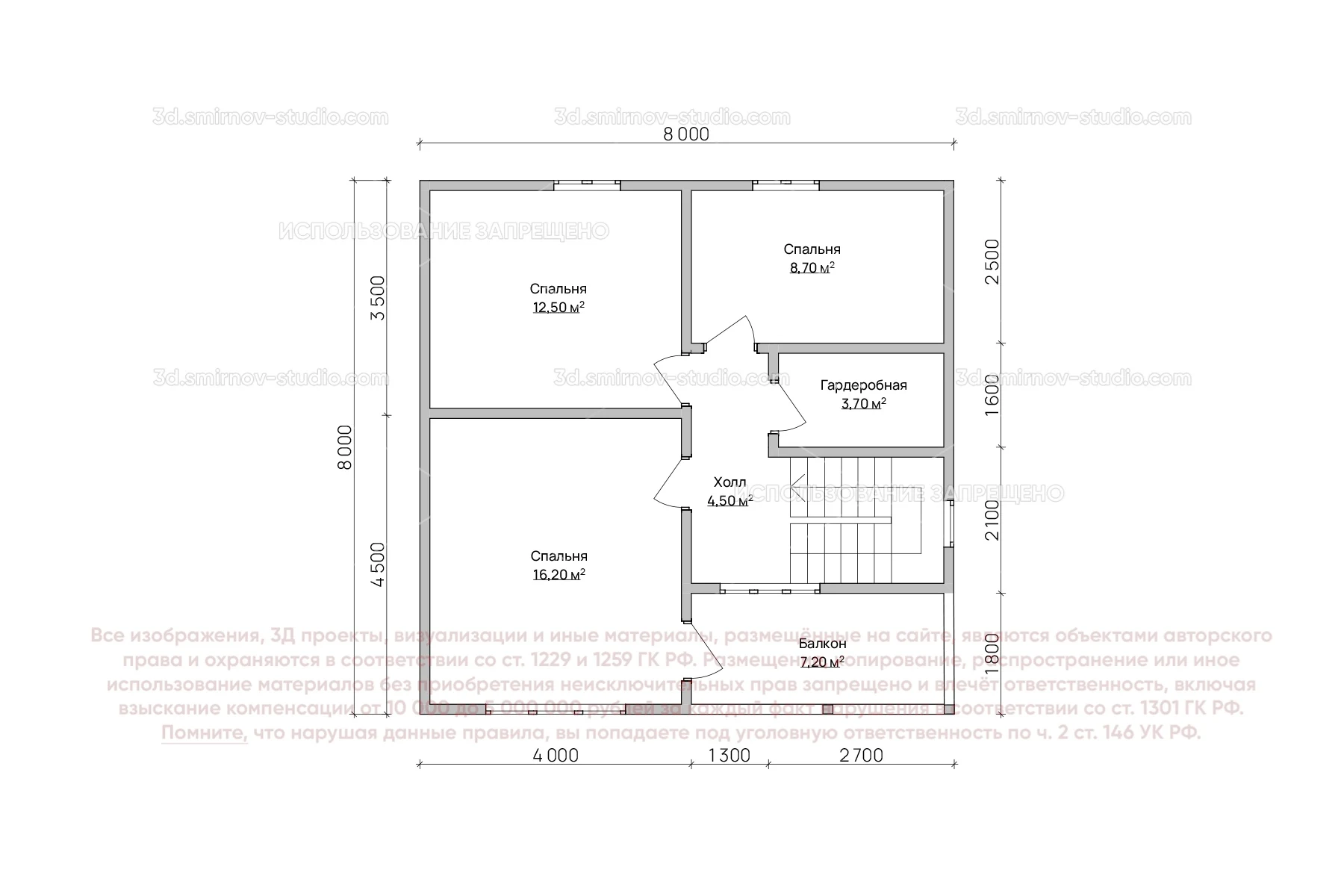
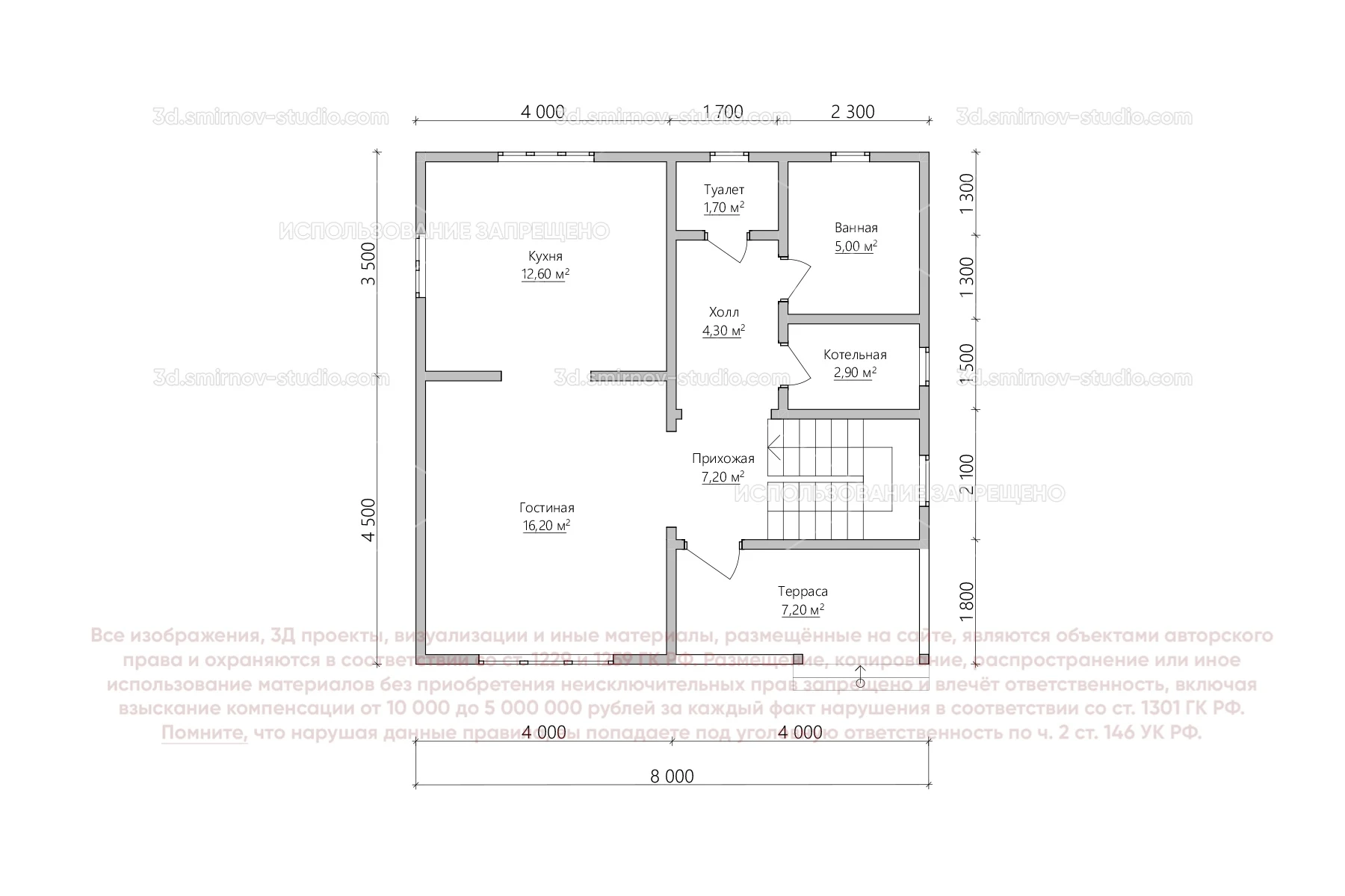
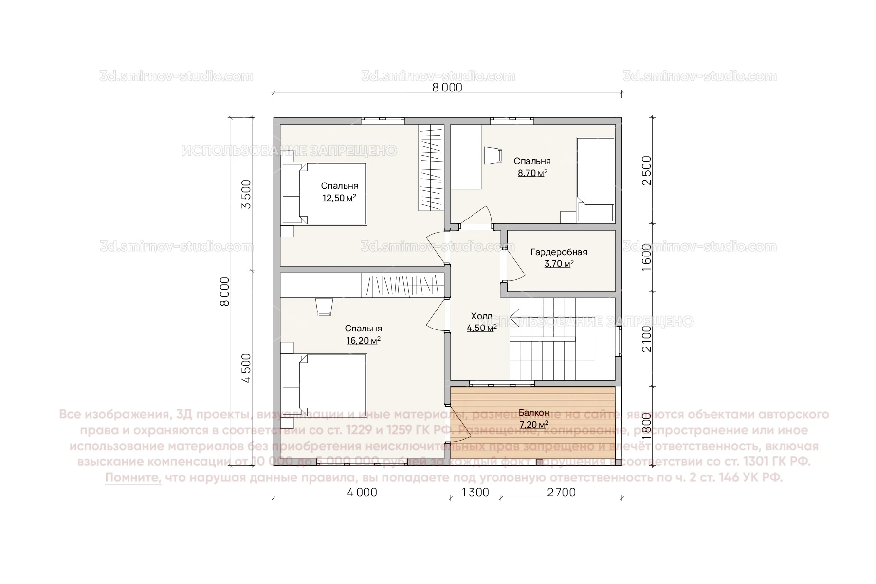
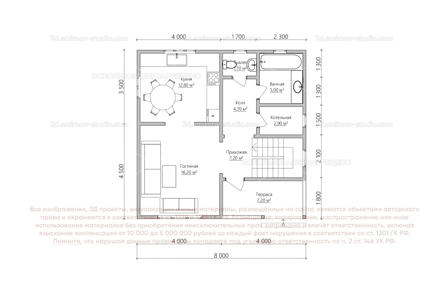
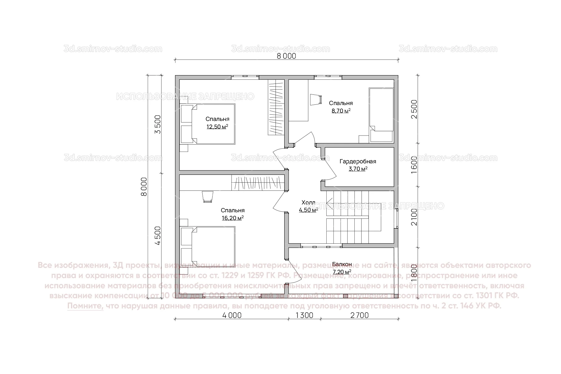
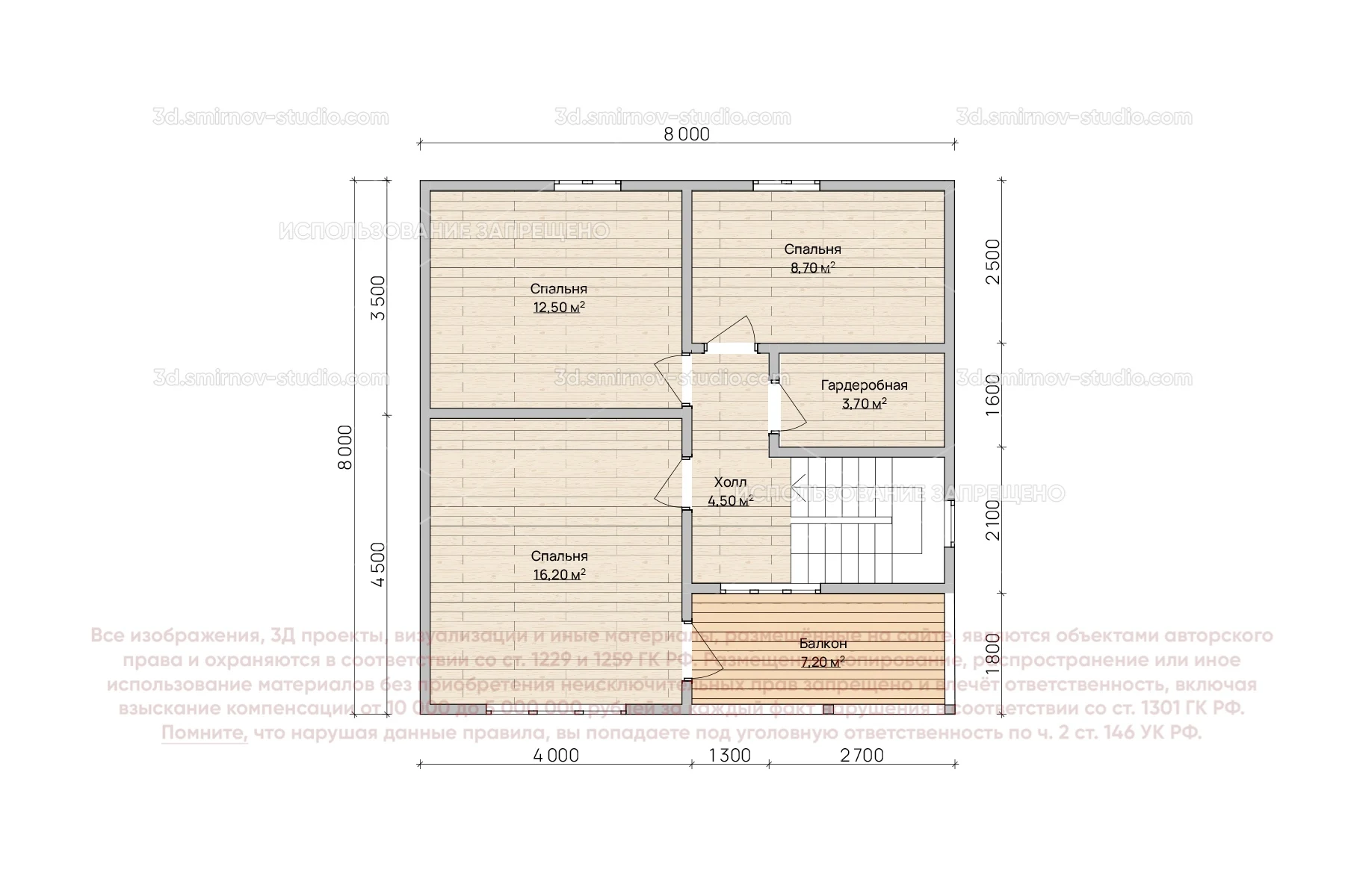
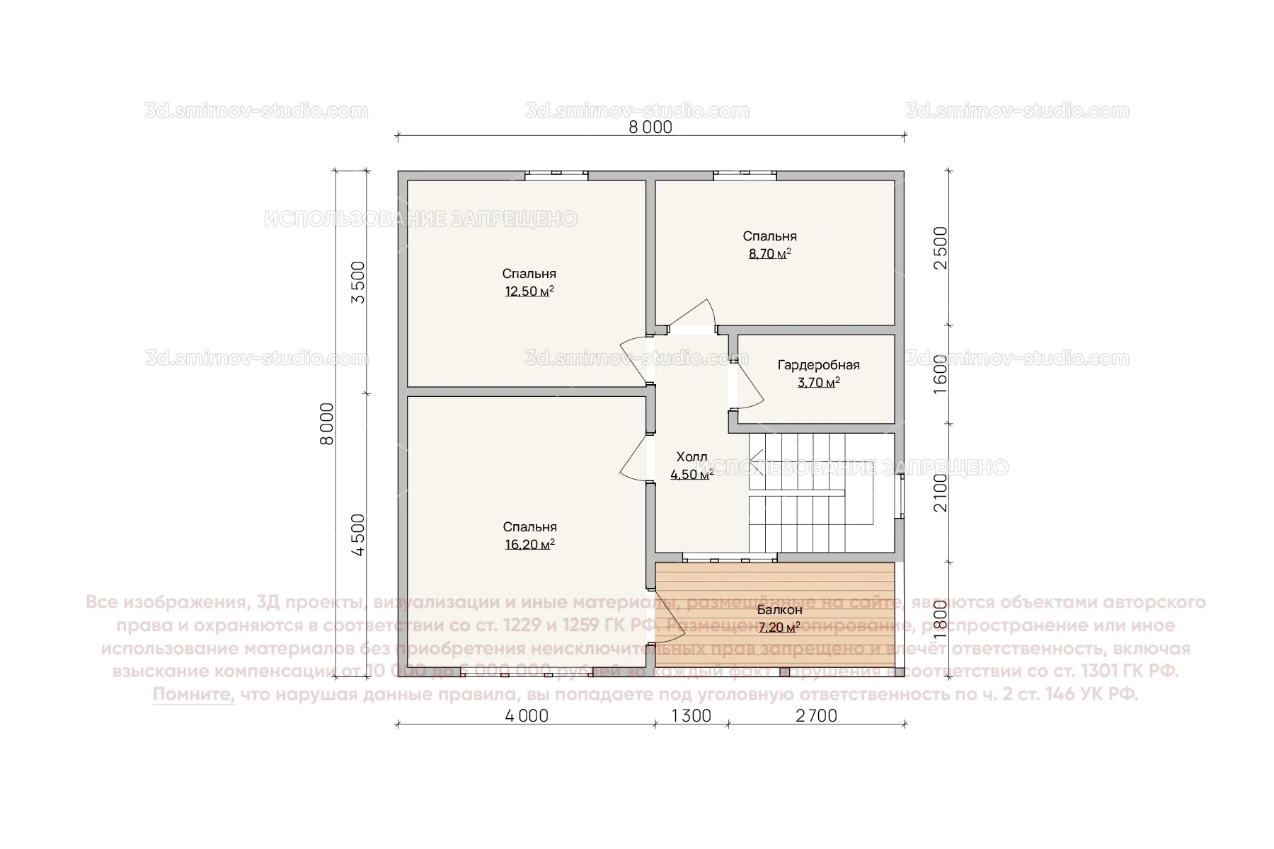
3Д проект каркасного дома 8 на 8 метров, площадью 109,9 м², с прямой крышей, террасой, котельной и 2 санузлами
Выберите цвет проекта
Переключайтесь между цветами, нажимая на их изображения, чтобы увидеть проект в выбранном цвете или нажмите Выбрать, чтобы добавить цвет в корзину
По этому проекту мы можем сделать
- АР25 277 ₽
- КР43 960 ₽
- Смета13 188 ₽
Использование файлов данных браузера
Во время посещения сайта 3d.smirnov-studio.com вы соглашаетесь с тем, что мы обрабатываем ваши персональные данные с использованием метрических программ. Подробнее можно ознакомиться здесь

















