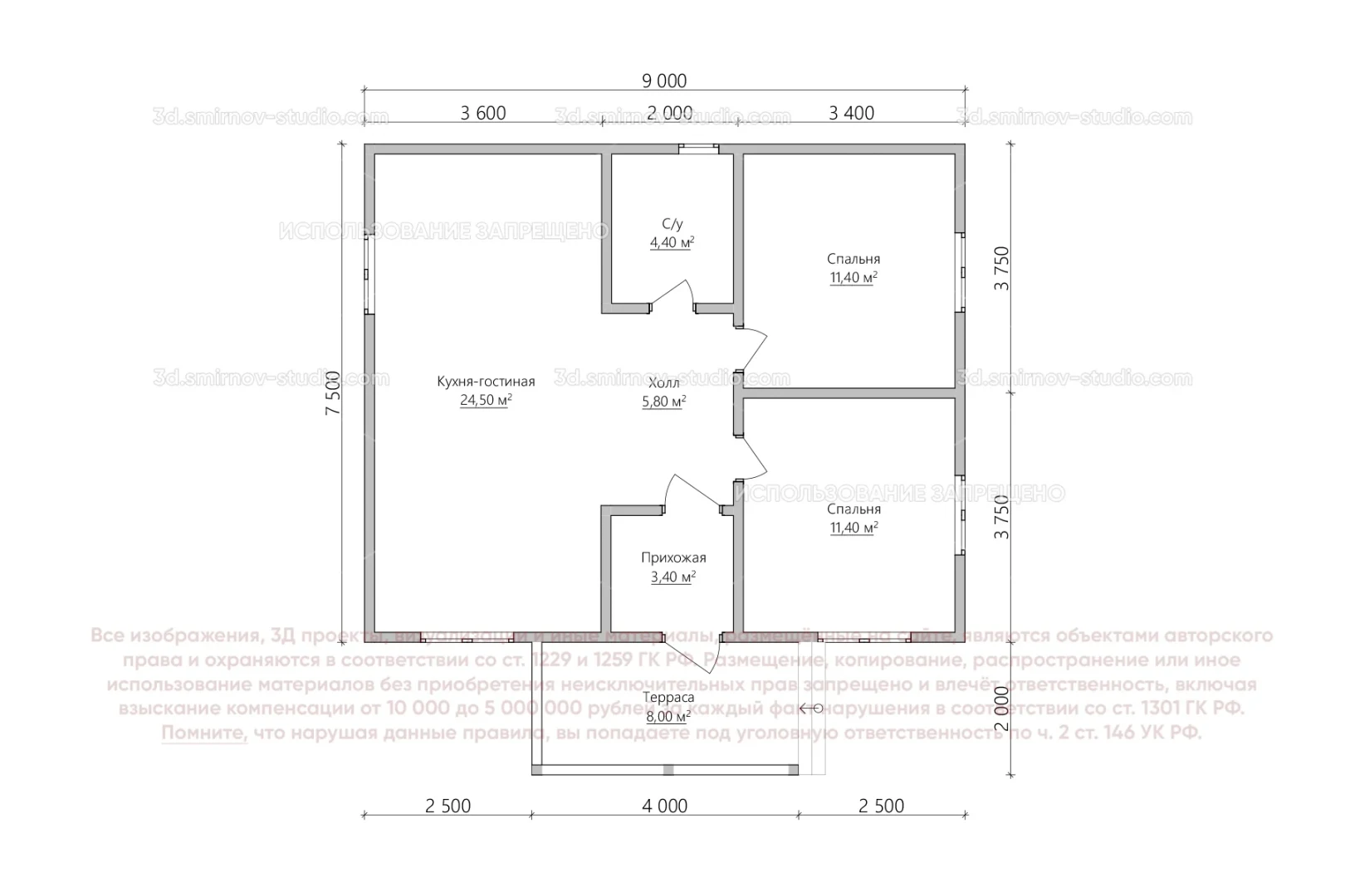
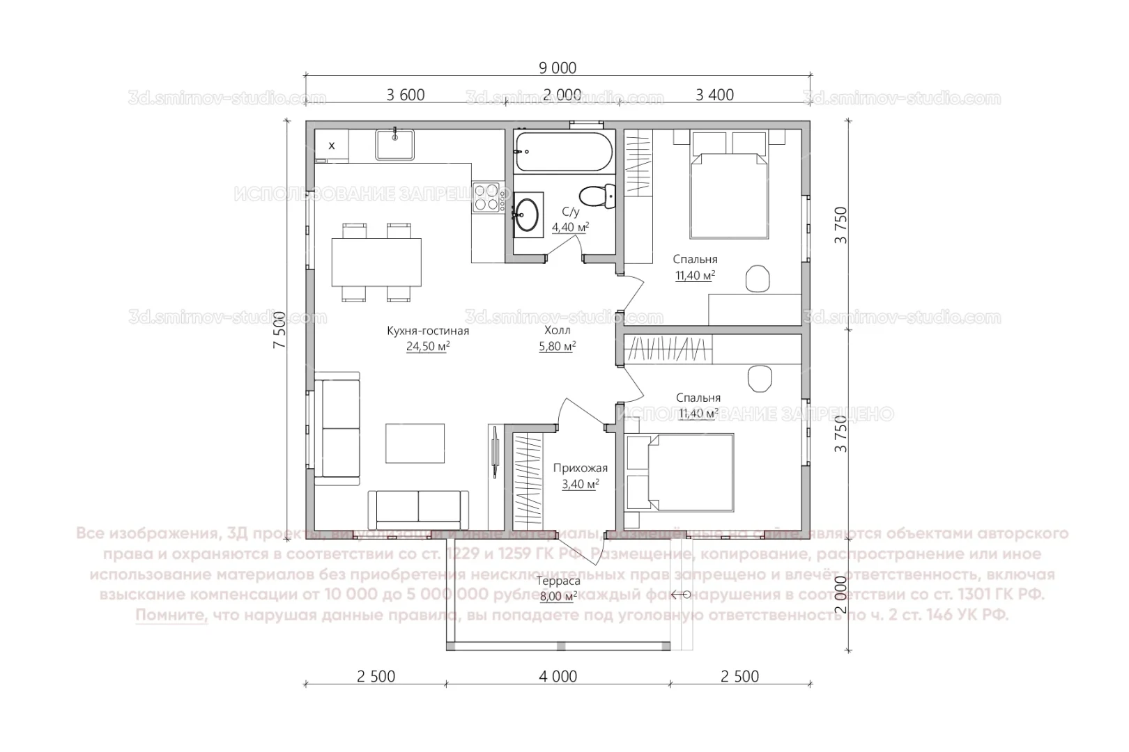
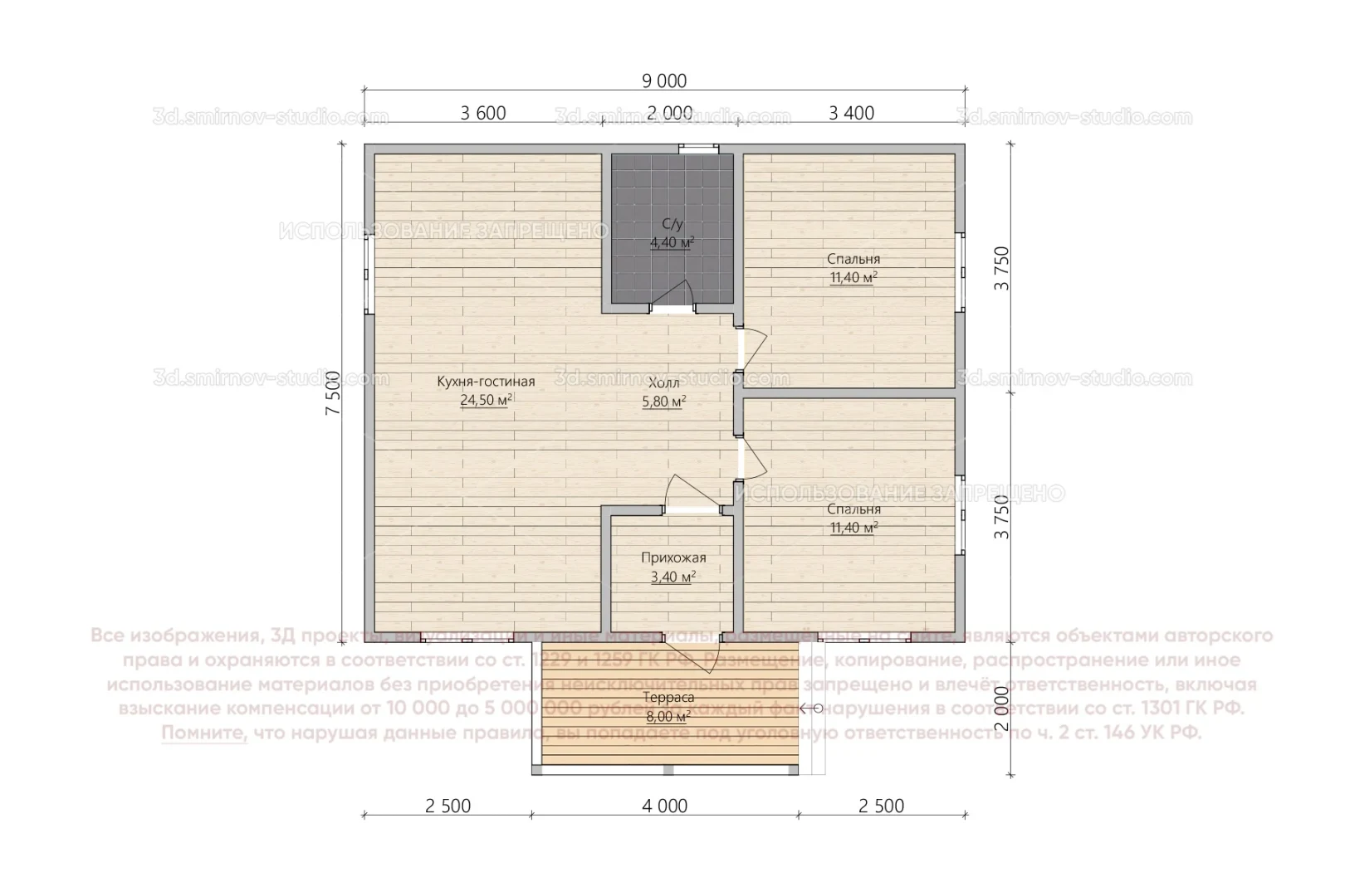
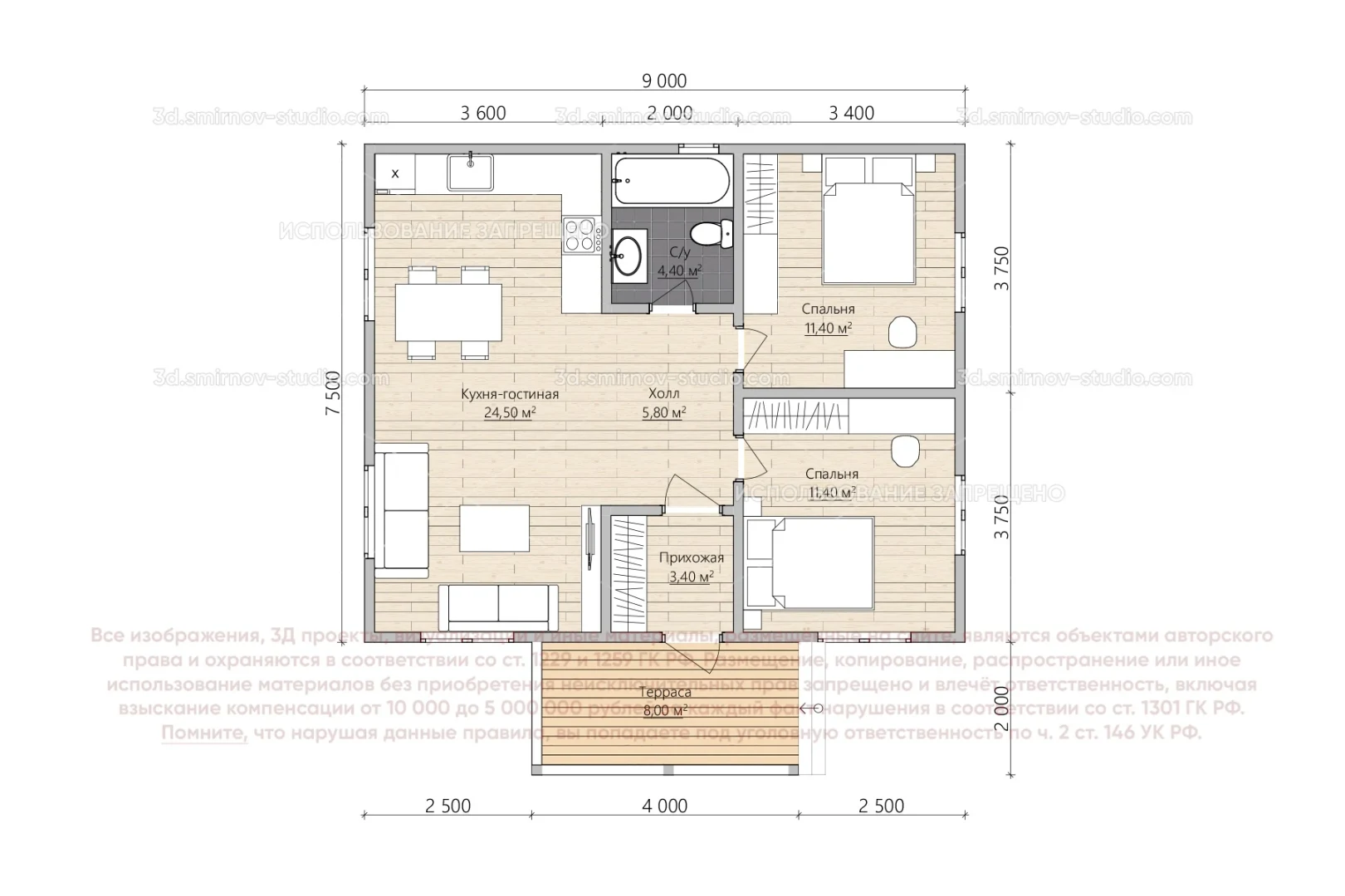
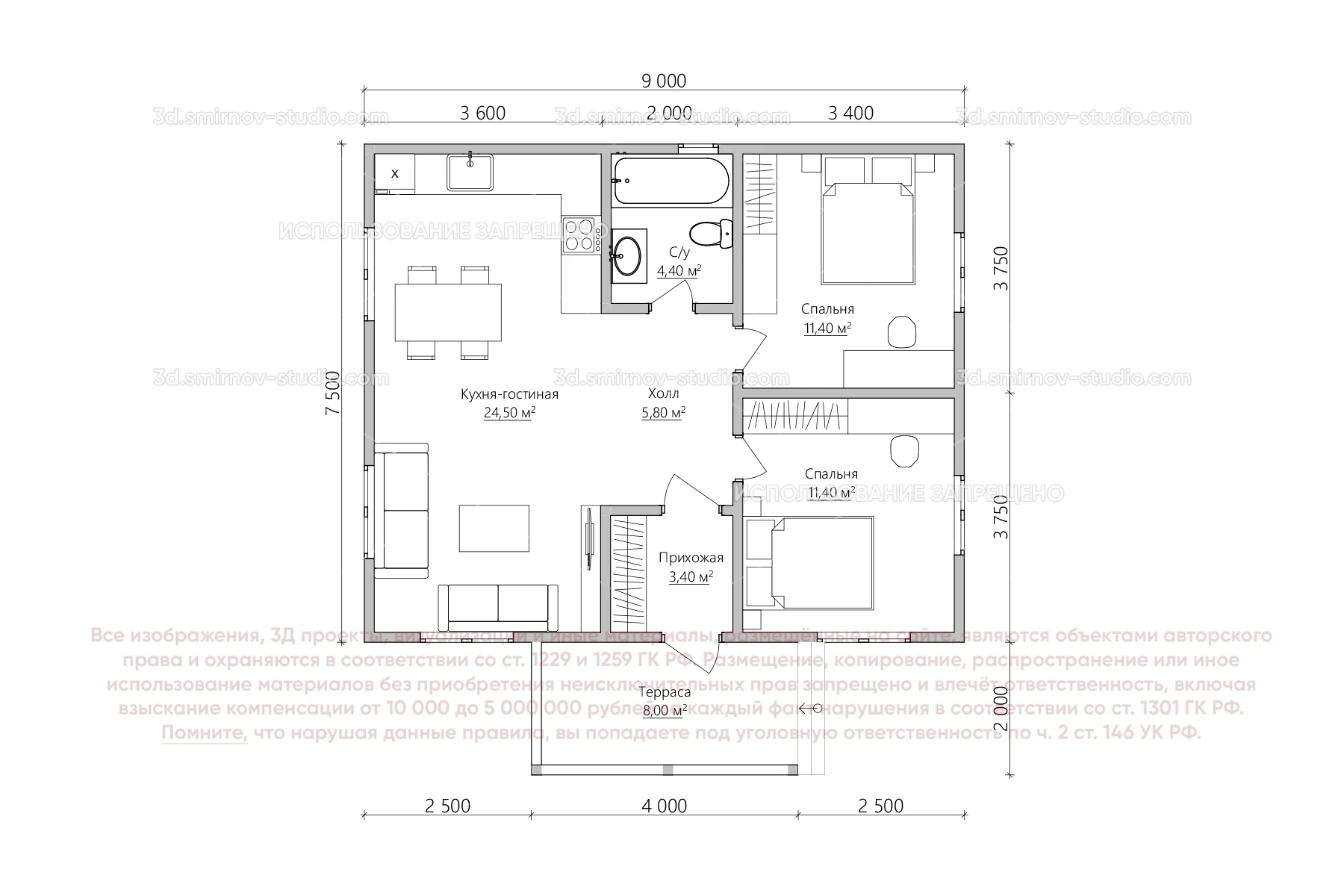
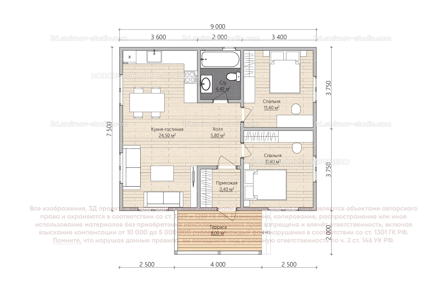
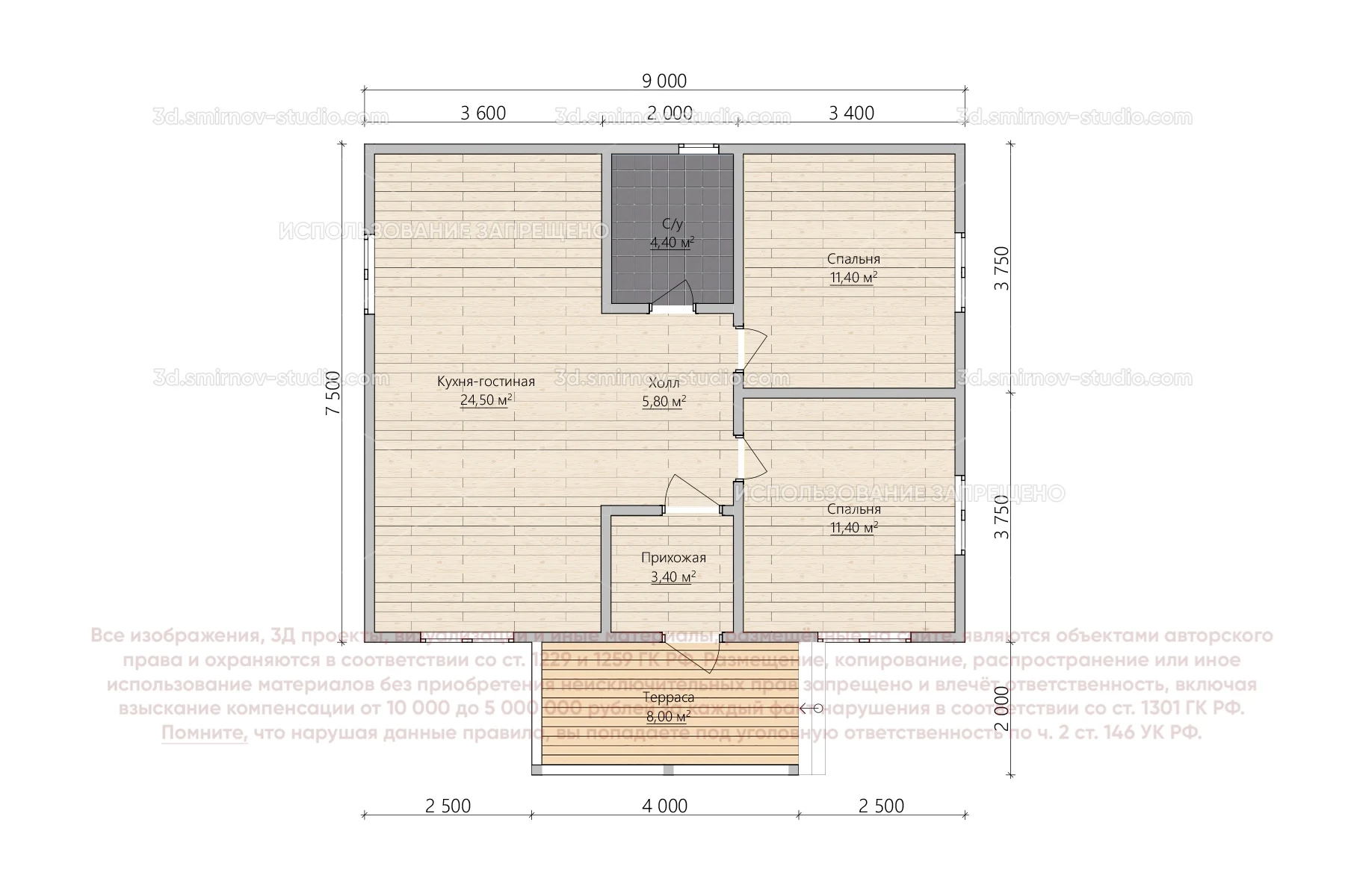
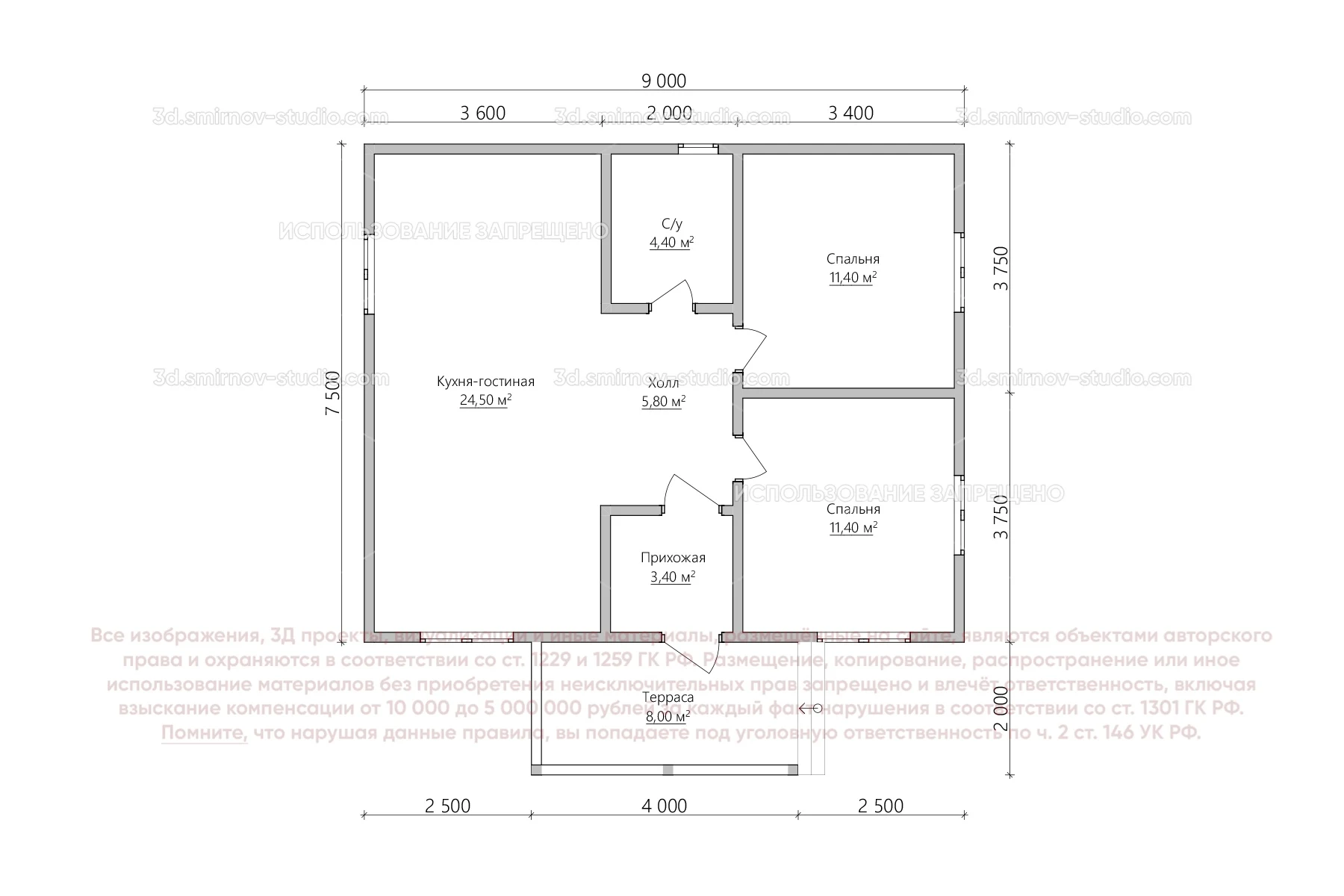
3Д проект каркасного дома 7.5 на 9 метров, площадью 68,9 м², с прямой крышей, террасой и санузлом
Выберите цвет проекта
Переключайтесь между цветами, нажимая на их изображения, чтобы увидеть проект в выбранном цвете или нажмите Выбрать, чтобы добавить цвет в корзину
По этому проекту мы можем сделать
- АР15 847 ₽
- КР27 560 ₽
- Смета8 268 ₽
Использование файлов данных браузера
Во время посещения сайта 3d.smirnov-studio.com вы соглашаетесь с тем, что мы обрабатываем ваши персональные данные с использованием метрических программ. Подробнее можно ознакомиться здесь













