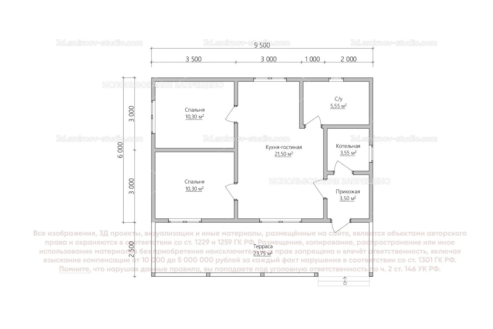
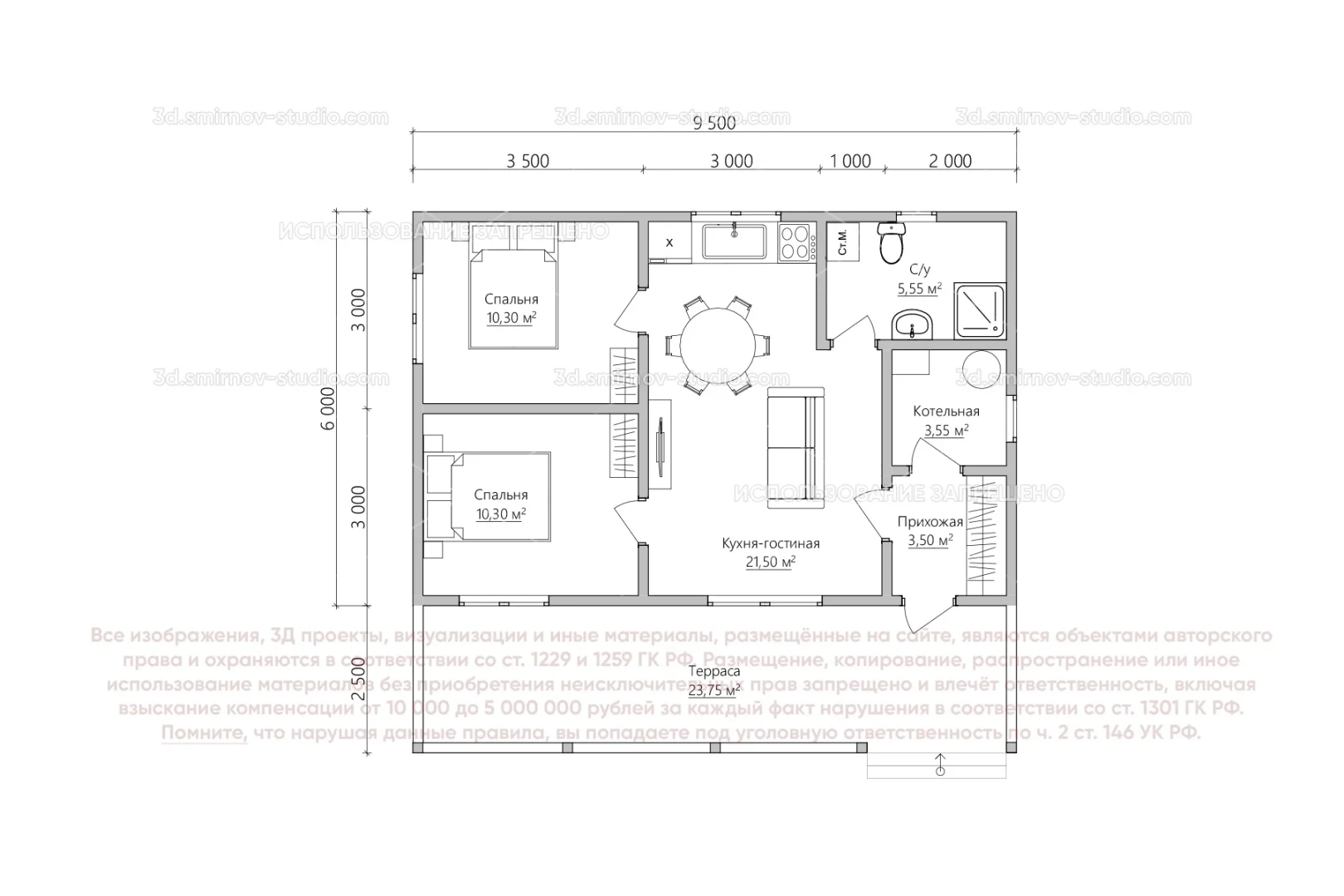
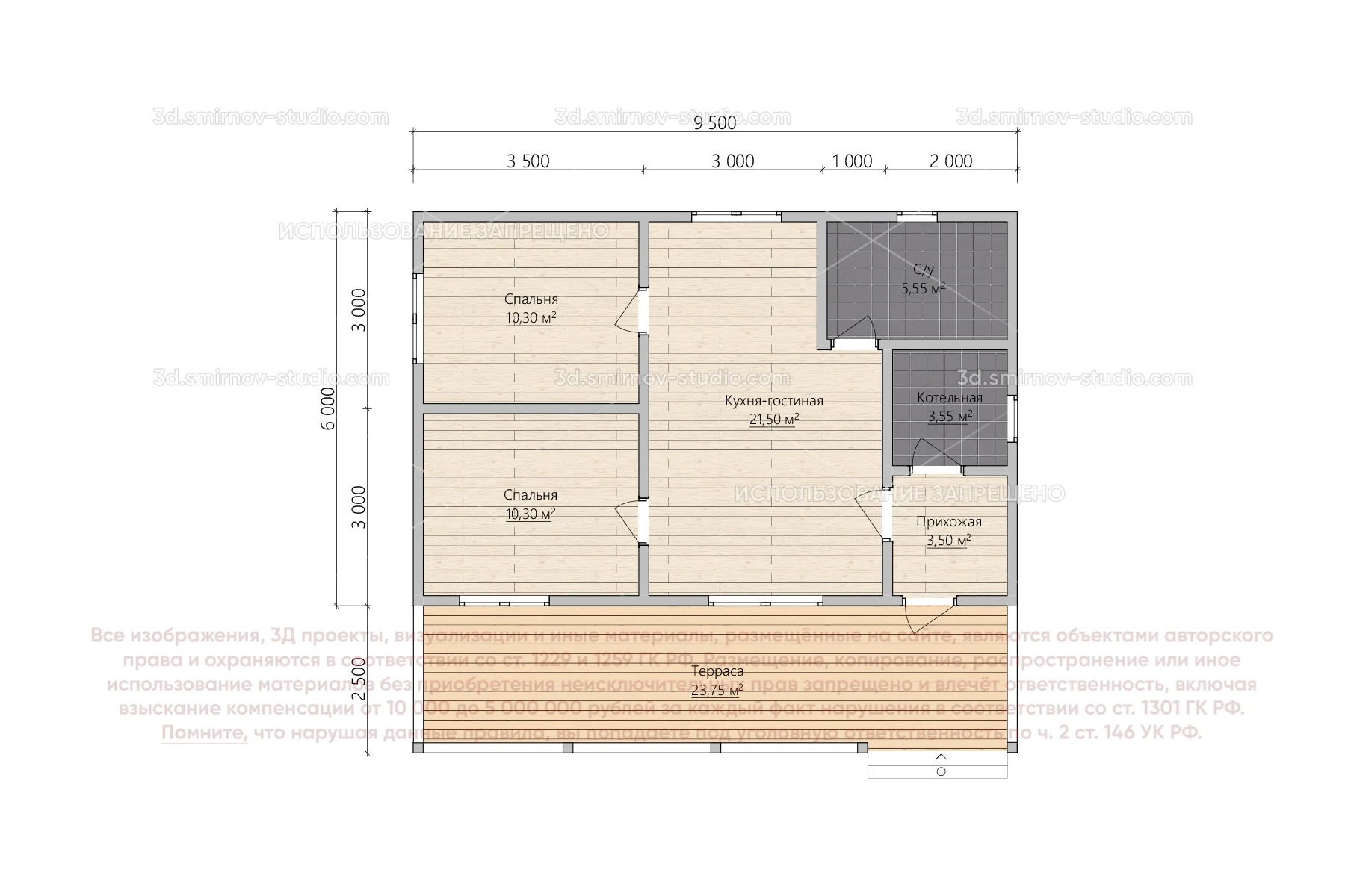
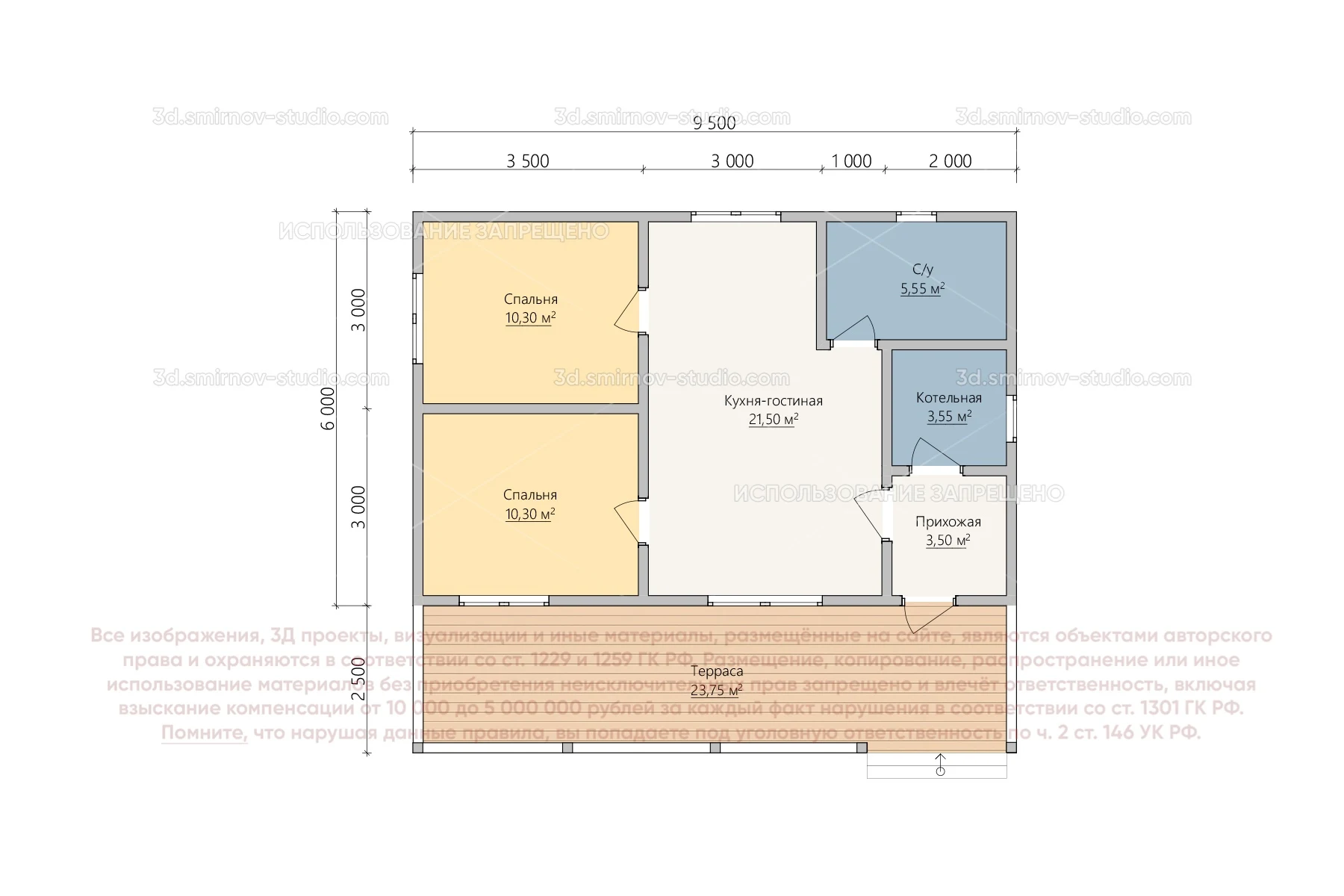
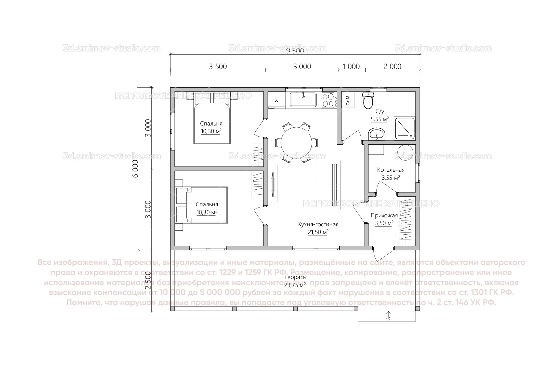
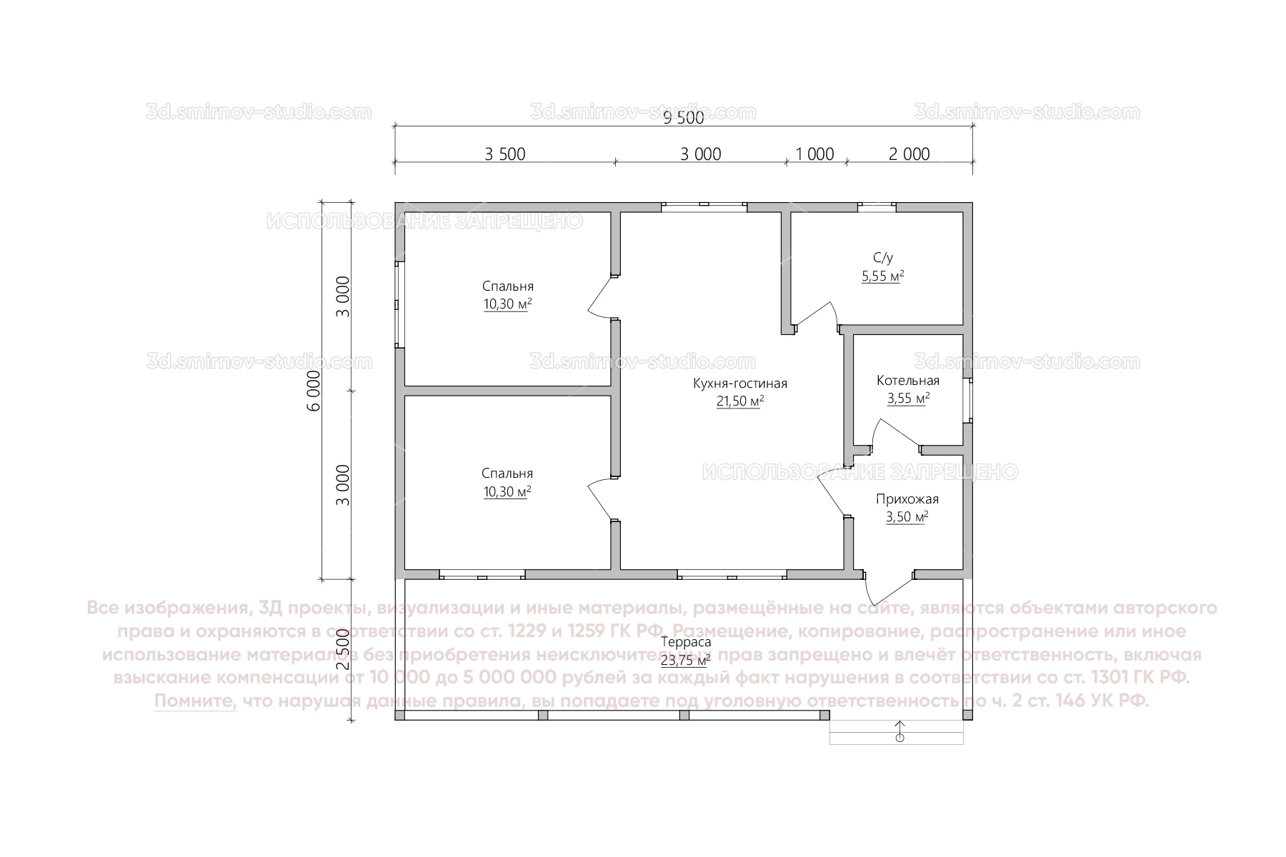
3Д проект дома из бруса 9,5 на 8,5 метров, площадью 78,4 м², с прямой крышей, крыльцом, котельной и санузлом
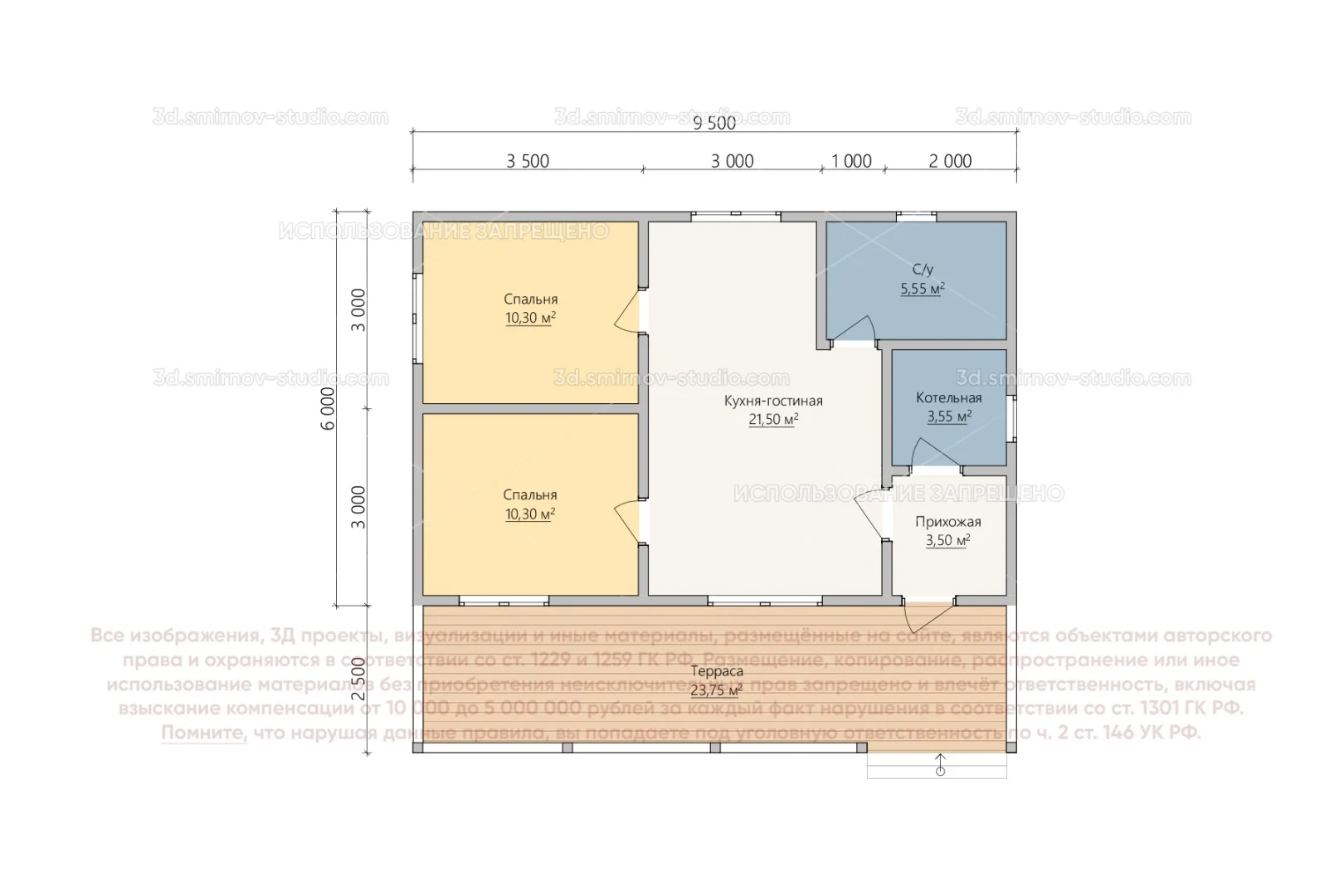
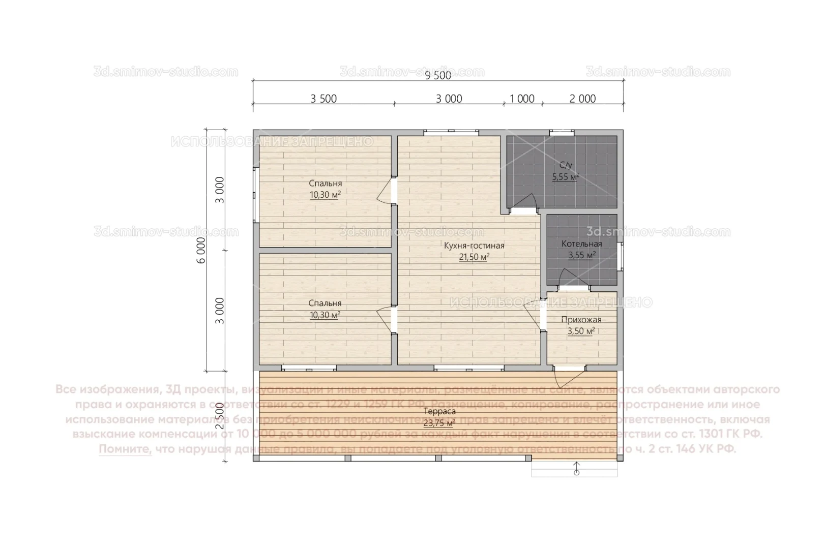
Выберите цвет проекта
Переключайтесь между цветами, нажимая на их изображения, чтобы увидеть проект в выбранном цвете или нажмите Выбрать, чтобы добавить цвет в корзину
По этому проекту мы можем сделать
- АР18 044 ₽
- КР31 380 ₽
- Смета9 414 ₽
Использование файлов данных браузера
Во время посещения сайта 3d.smirnov-studio.com вы соглашаетесь с тем, что мы обрабатываем ваши персональные данные с использованием метрических программ. Подробнее можно ознакомиться здесь













