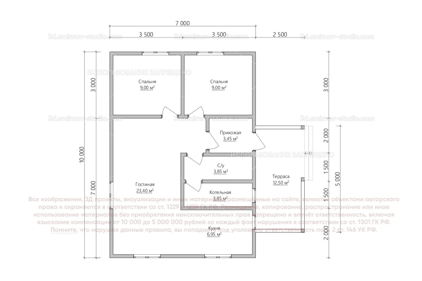
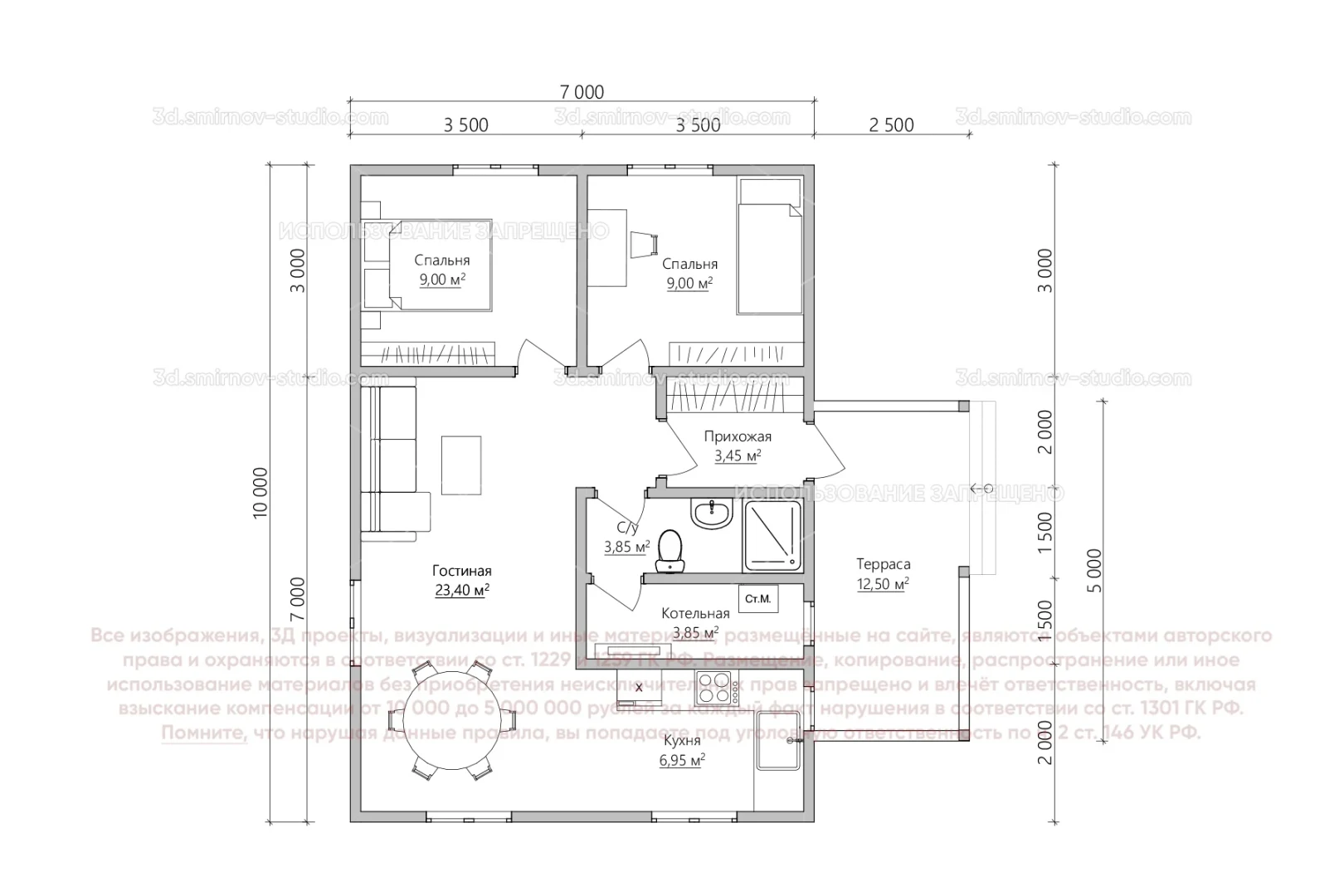
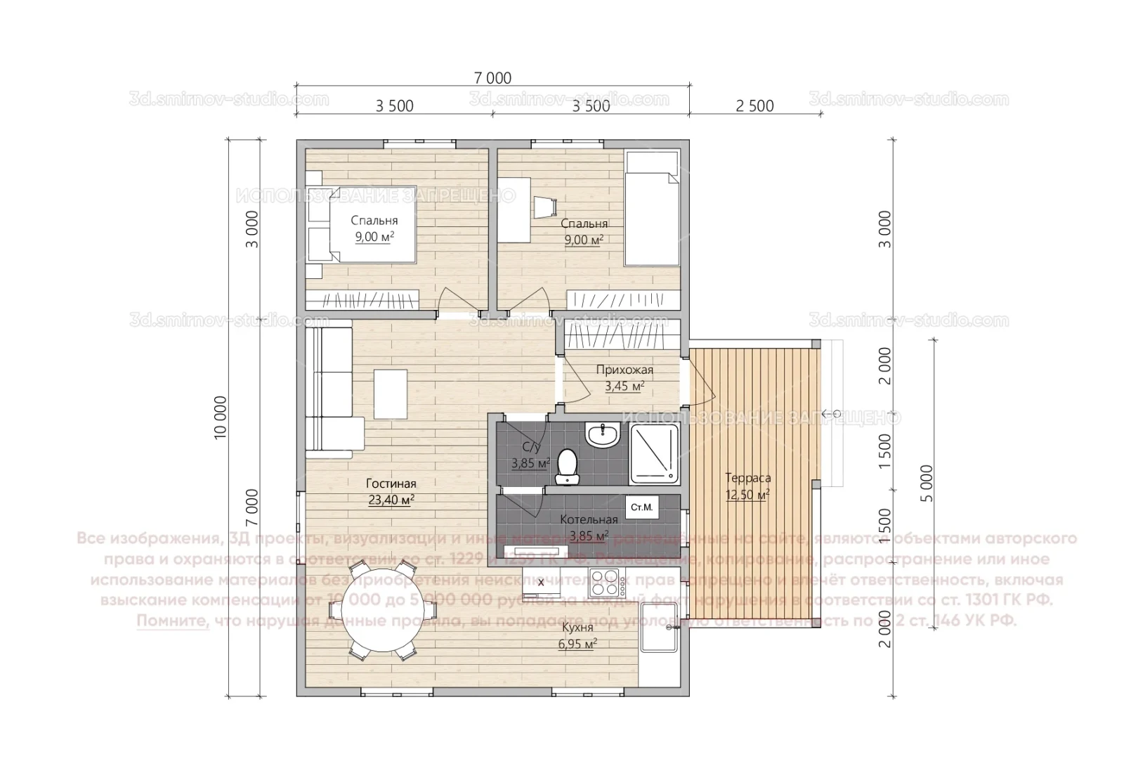
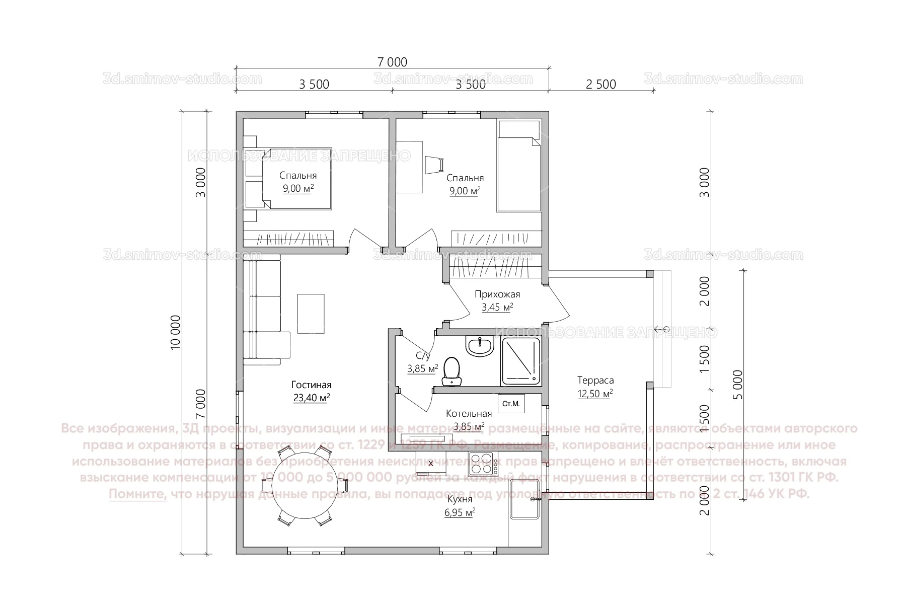
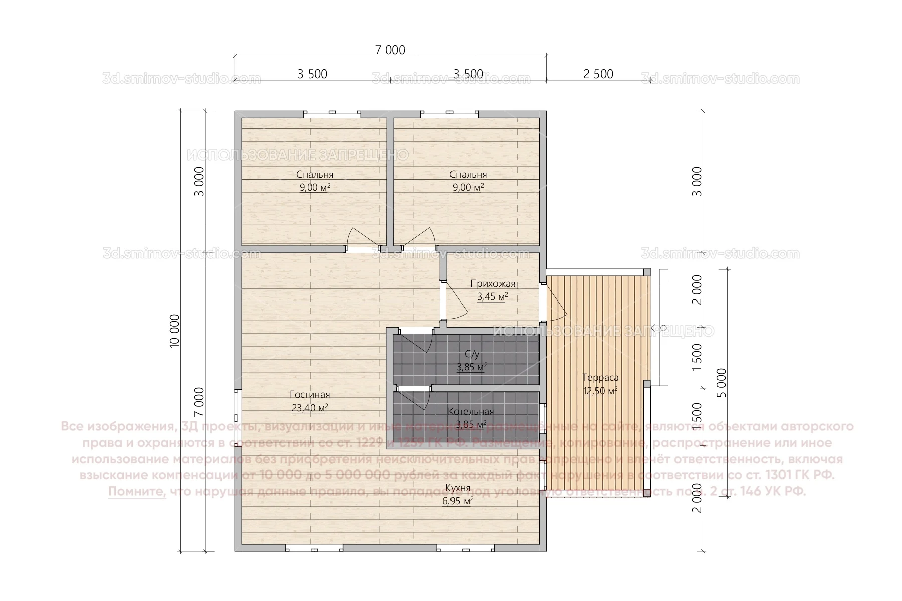
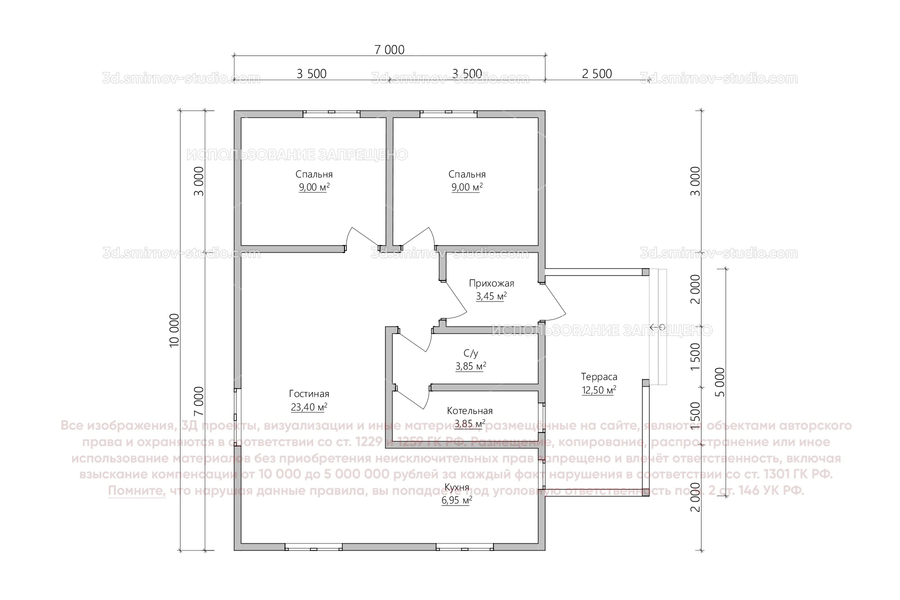
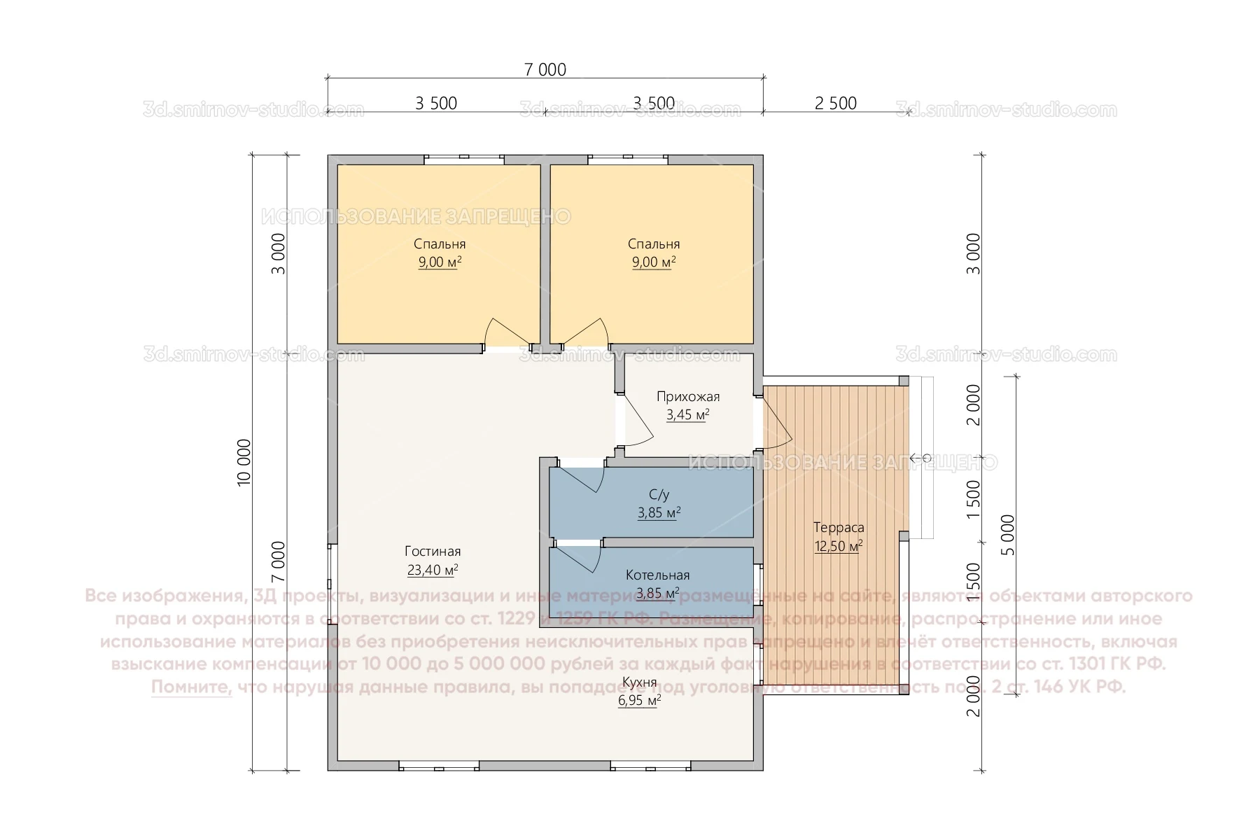
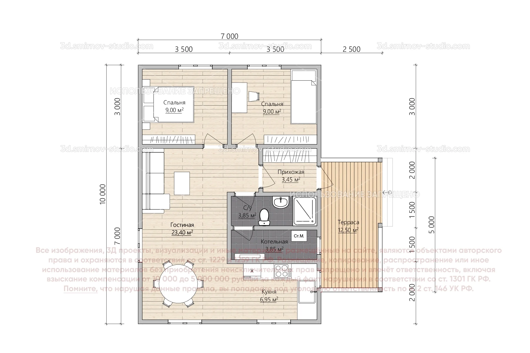
3Д проект дома из бруса 10 на 7 метров, площадью 72 м², с прямой крышей, крыльцом, котельной и санузлом
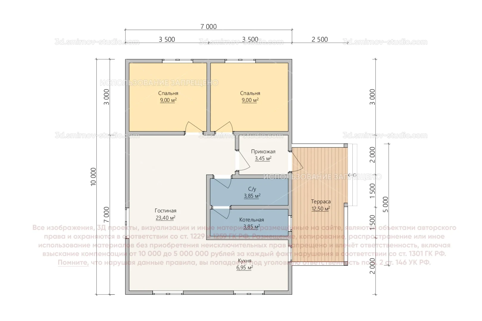
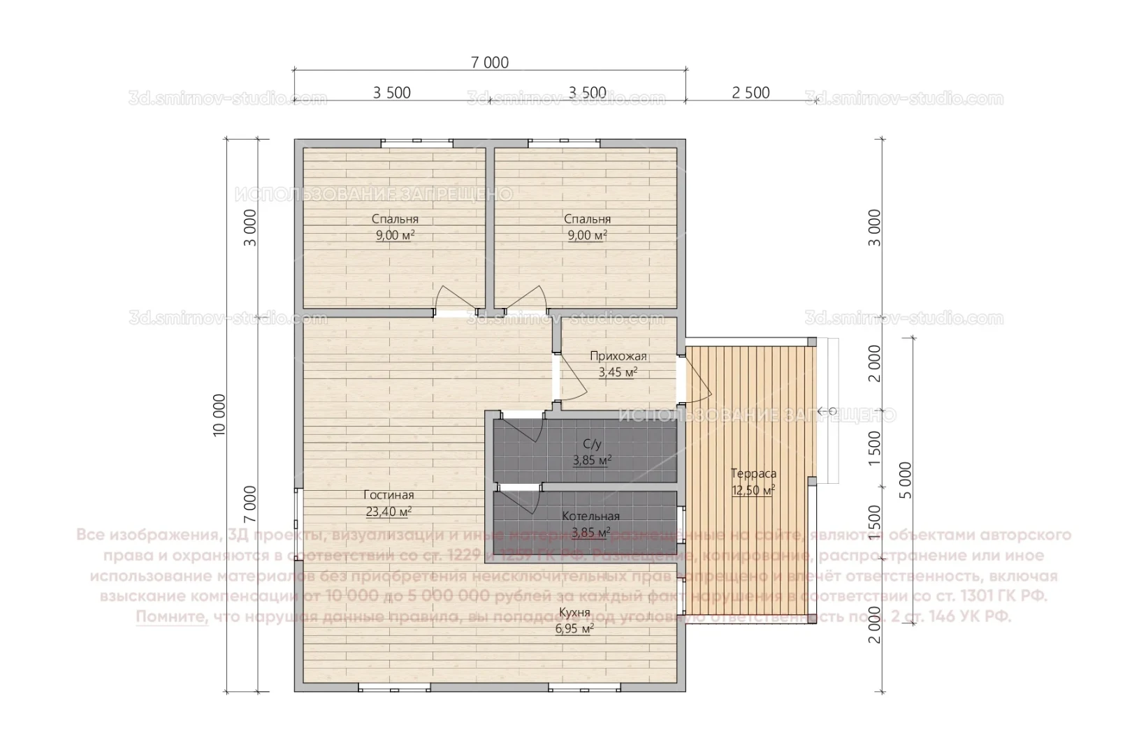
Выберите цвет проекта
Переключайтесь между цветами, нажимая на их изображения, чтобы увидеть проект в выбранном цвете или нажмите Выбрать, чтобы добавить цвет в корзину
По этому проекту мы можем сделать
- АР16 560 ₽
- КР28 800 ₽
- Смета8 640 ₽
Использование файлов данных браузера
Во время посещения сайта 3d.smirnov-studio.com вы соглашаетесь с тем, что мы обрабатываем ваши персональные данные с использованием метрических программ. Подробнее можно ознакомиться здесь













