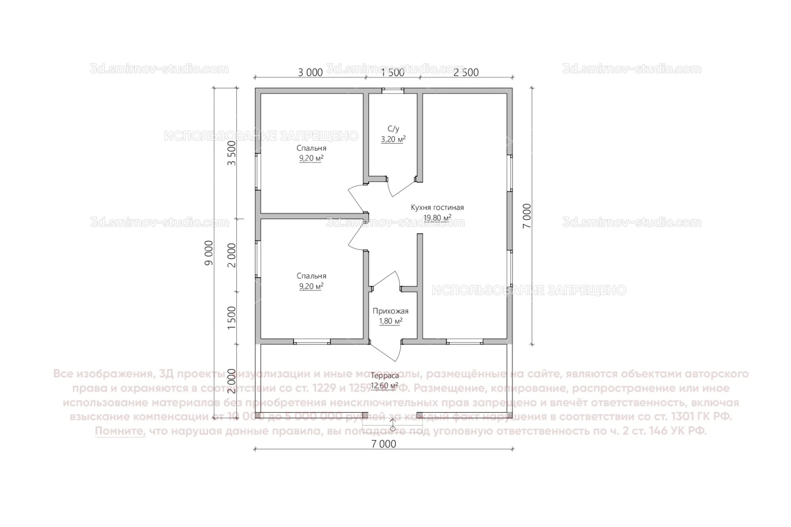
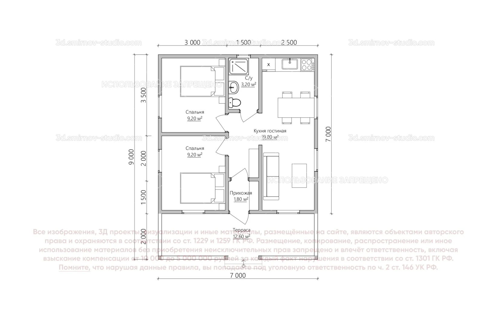
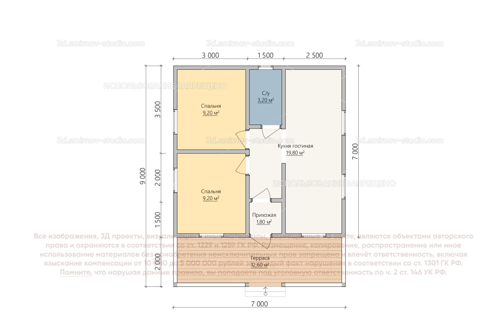
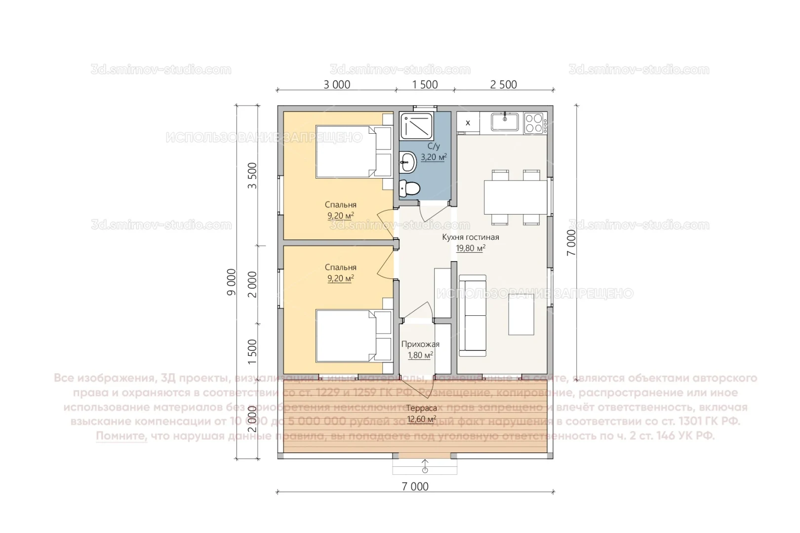
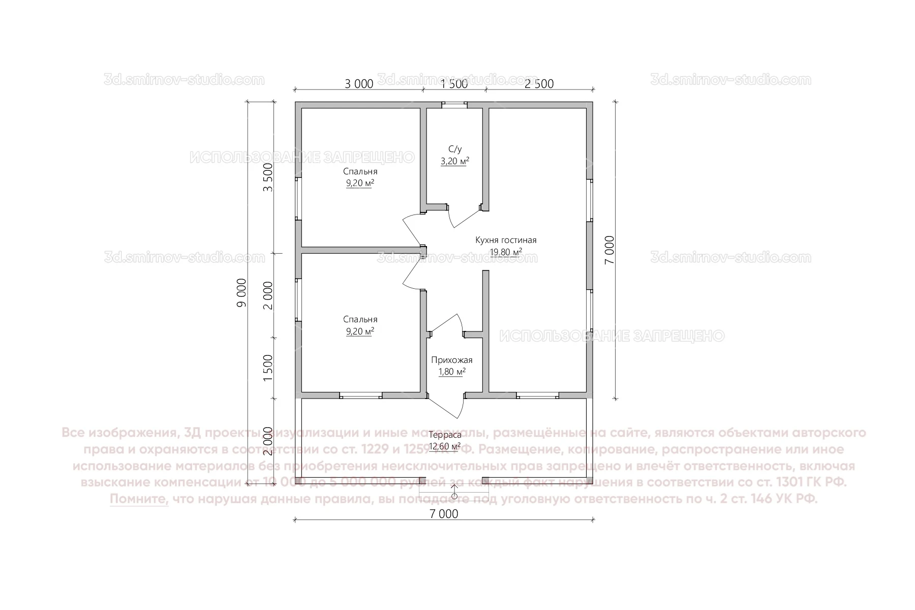
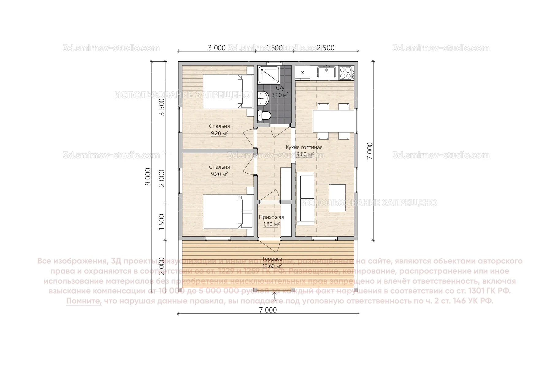
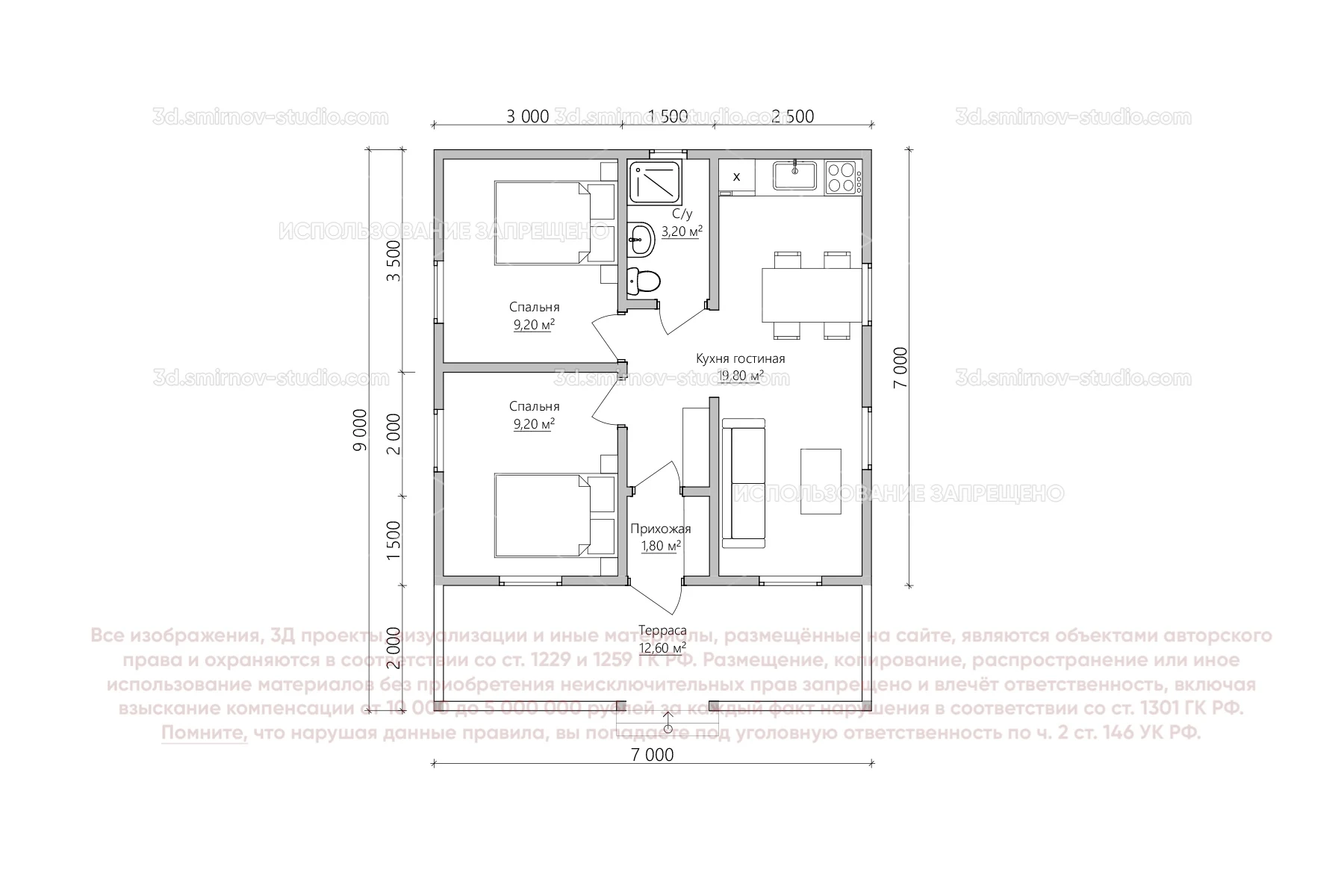
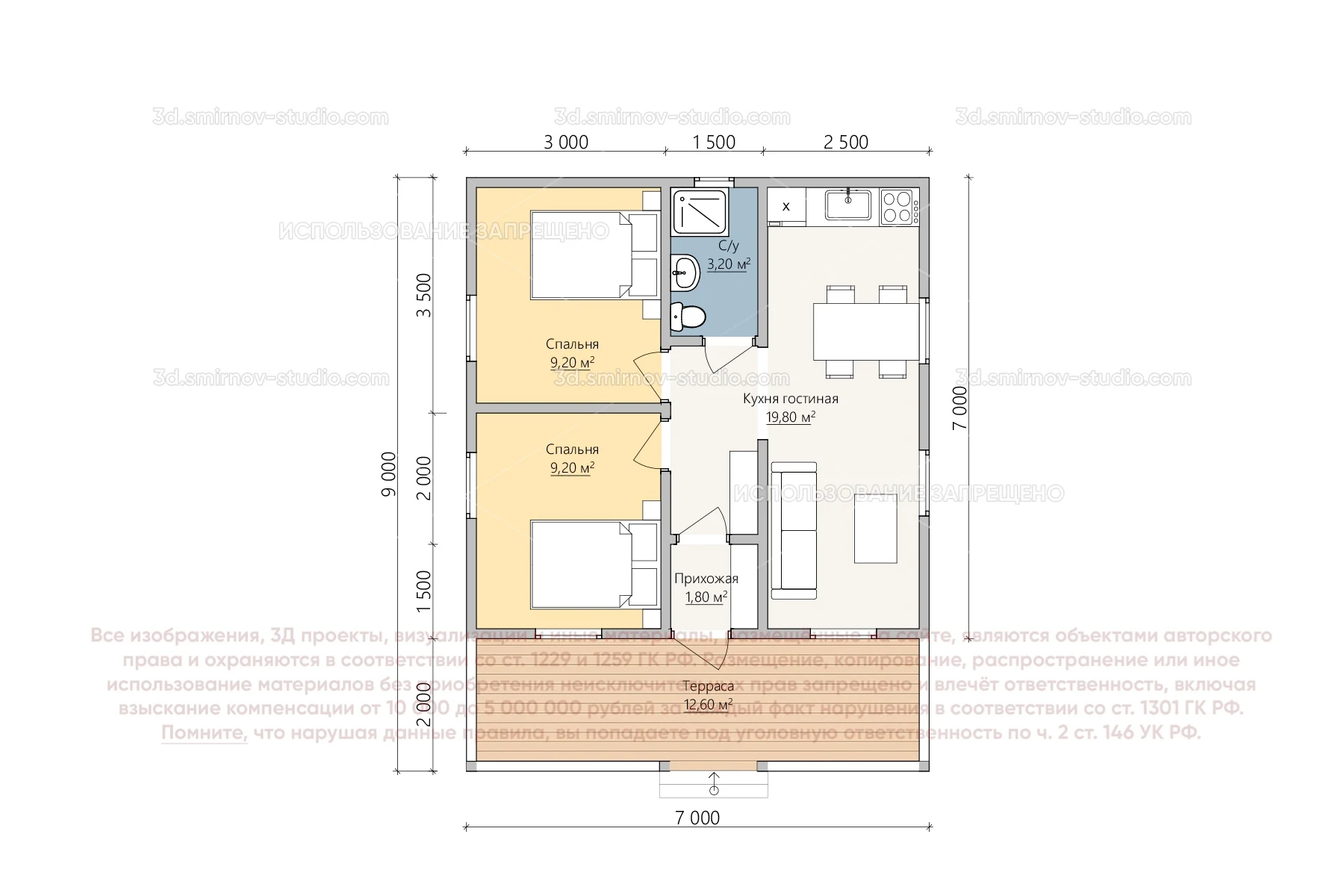
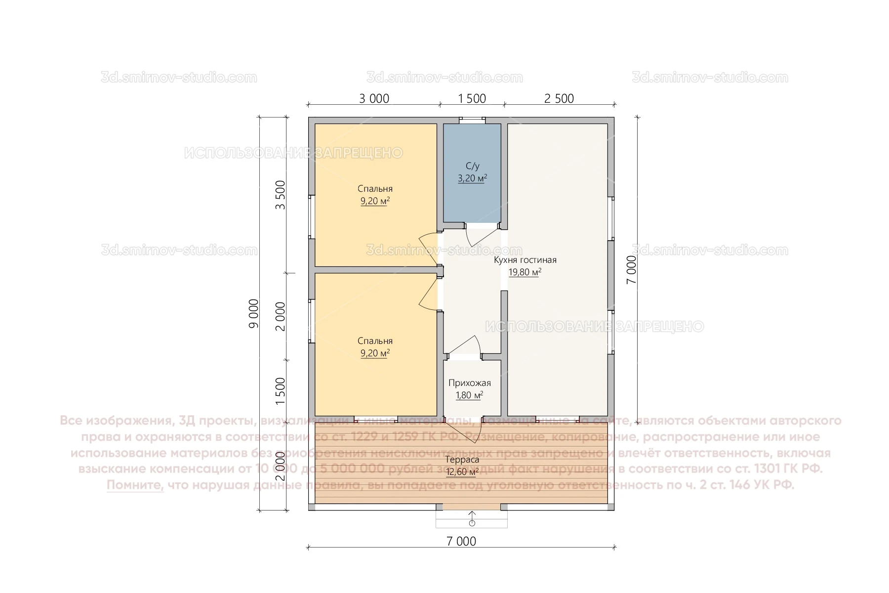
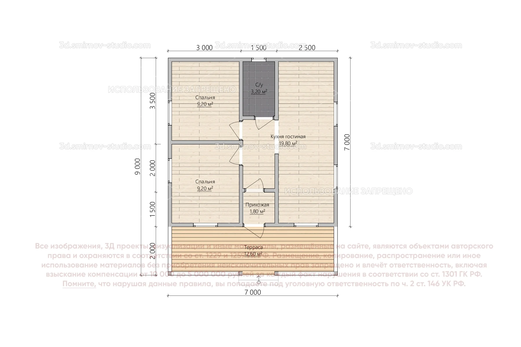
3Д проект дома из бруса 7 на 9 метров, площадью 55,8 м², с разноуровневой крышей, террасой и санузлом
Выберите цвет проекта
Переключайтесь между цветами, нажимая на их изображения, чтобы увидеть проект в выбранном цвете или нажмите Выбрать, чтобы добавить цвет в корзину
По этому проекту мы можем сделать
- АР12 834 ₽
- КР22 320 ₽
- Смета6 696 ₽
Использование файлов данных браузера
Во время посещения сайта 3d.smirnov-studio.com вы соглашаетесь с тем, что мы обрабатываем ваши персональные данные с использованием метрических программ. Подробнее можно ознакомиться здесь













