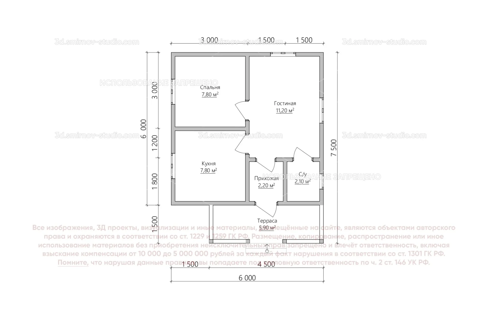
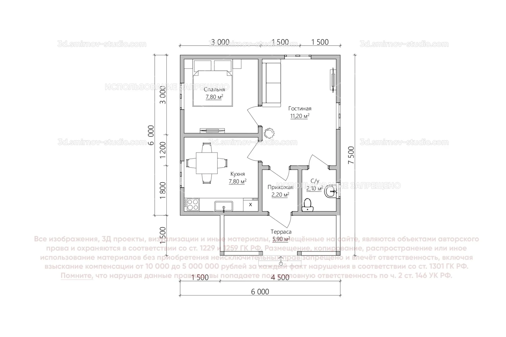
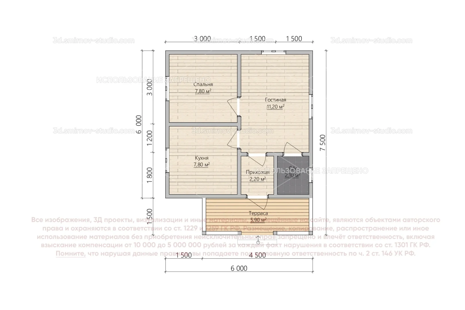
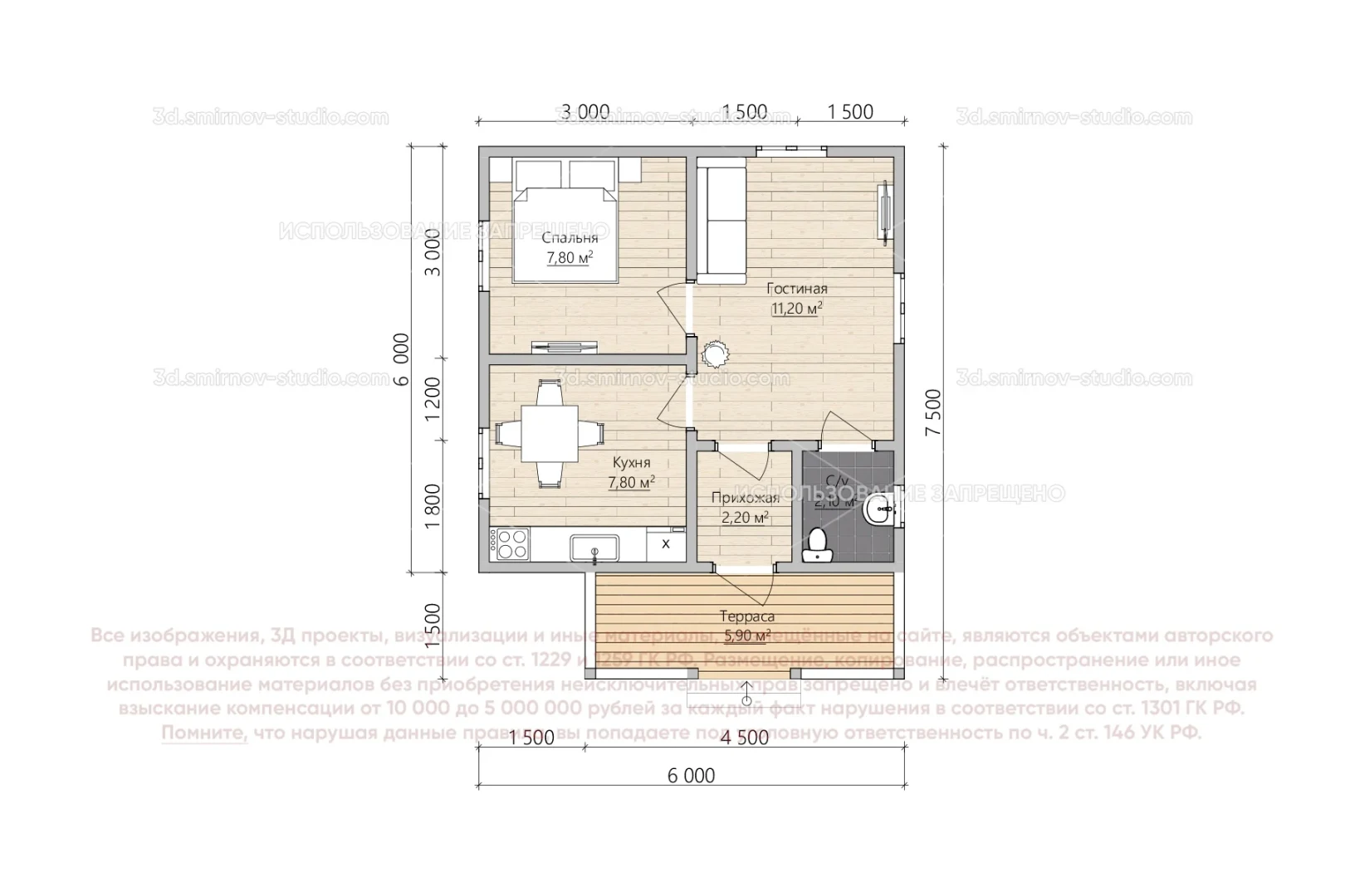
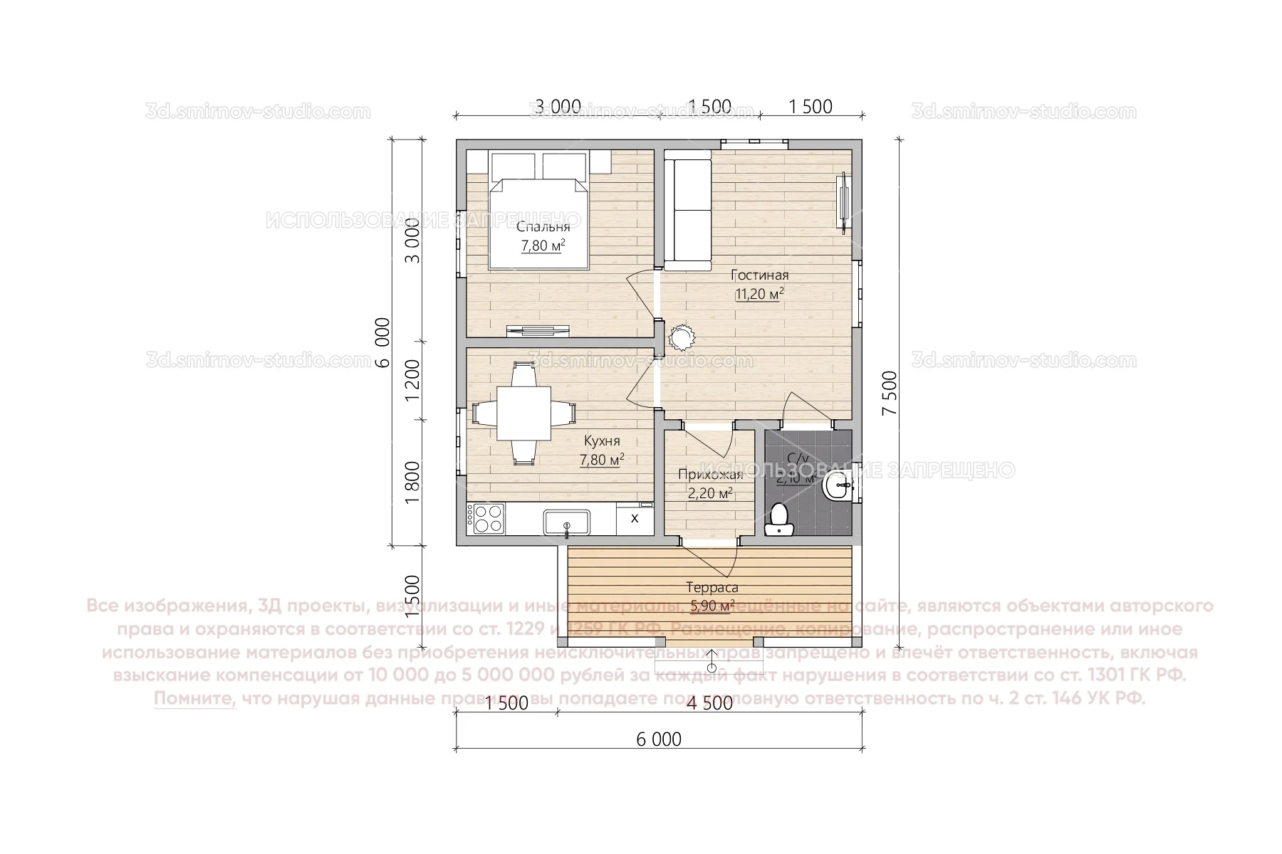
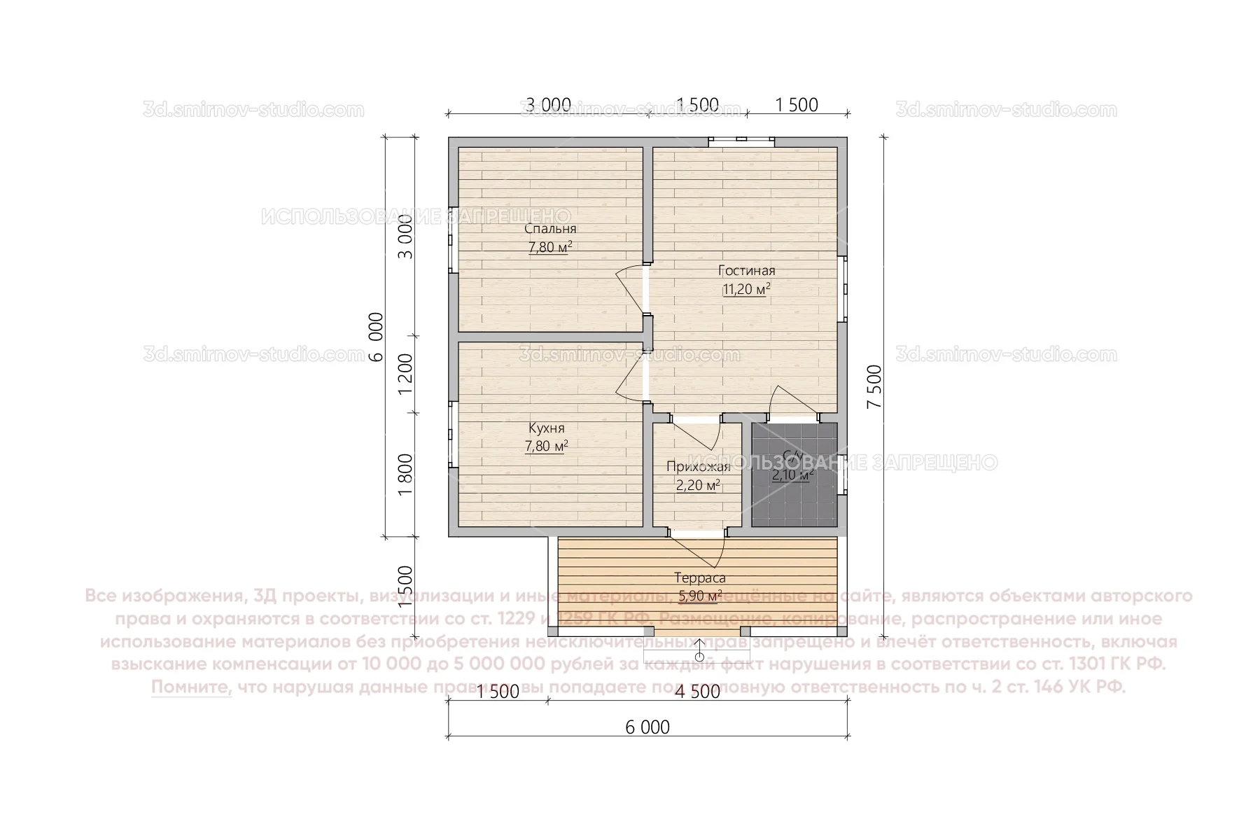
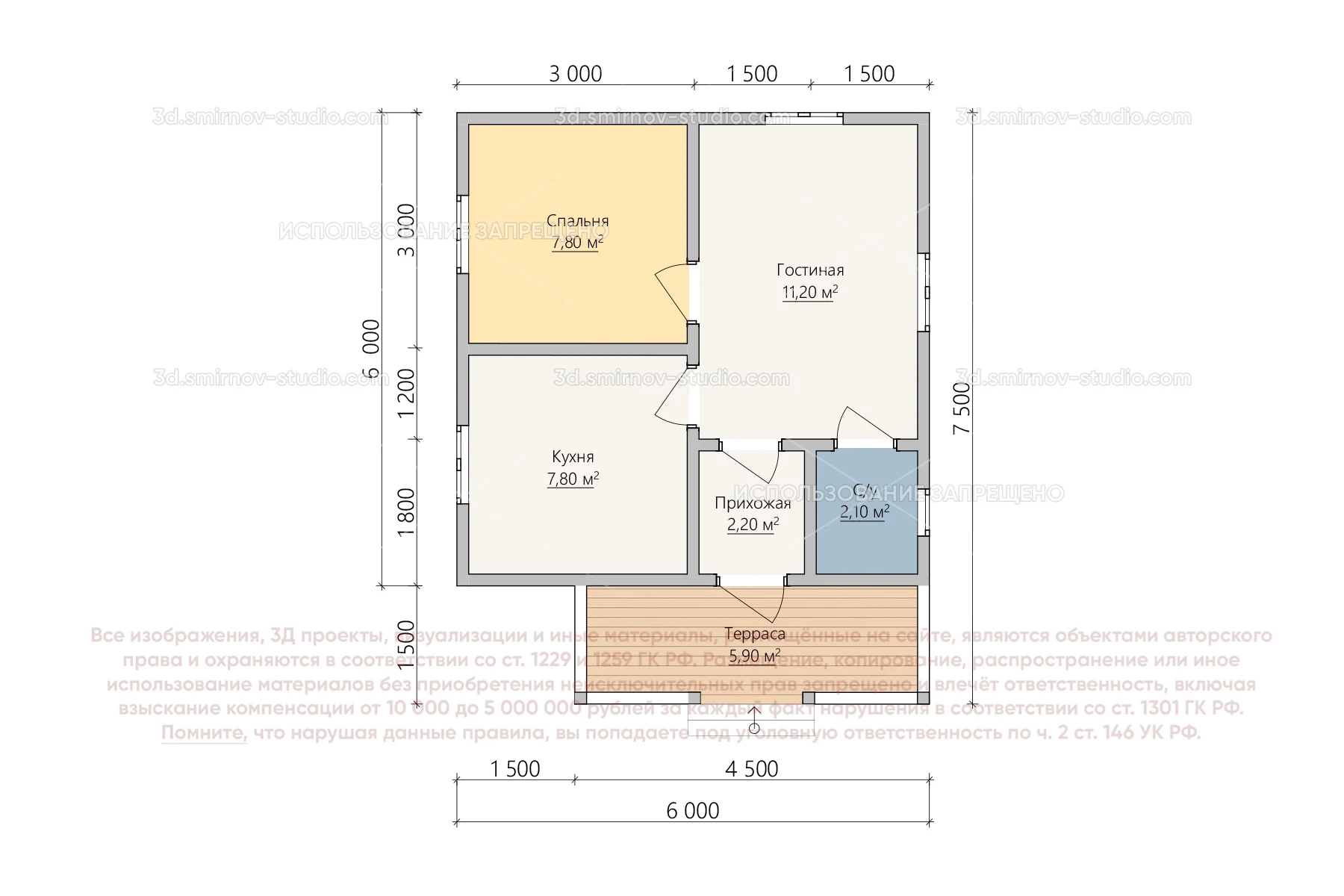
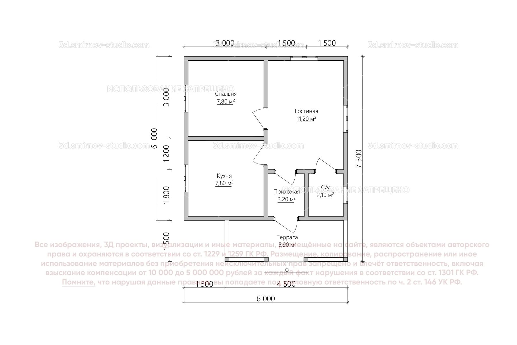
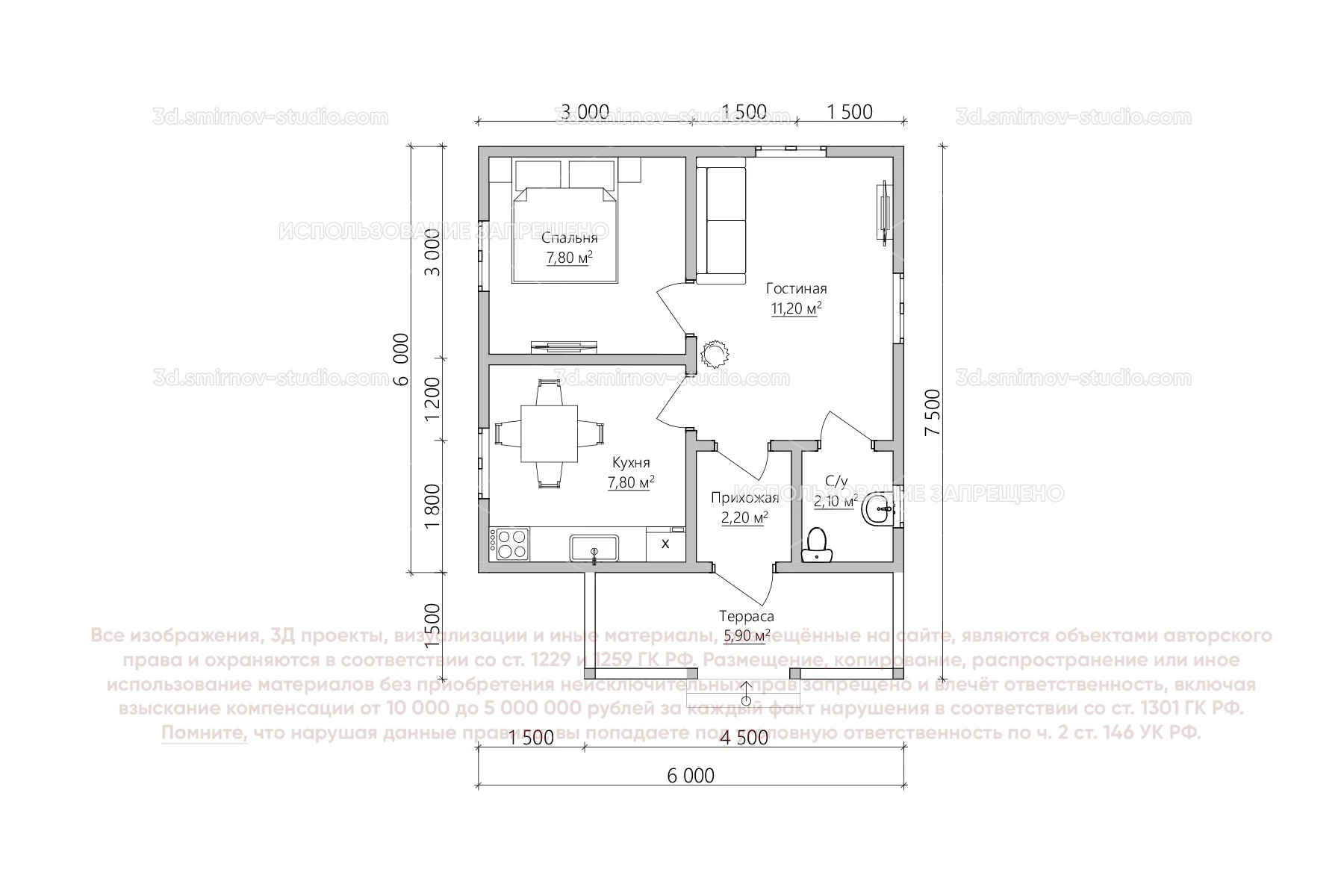
3Д проект дома из бруса 6 на 6 метров, площадью 37 м², с прямой крышей, террасой и санузлом
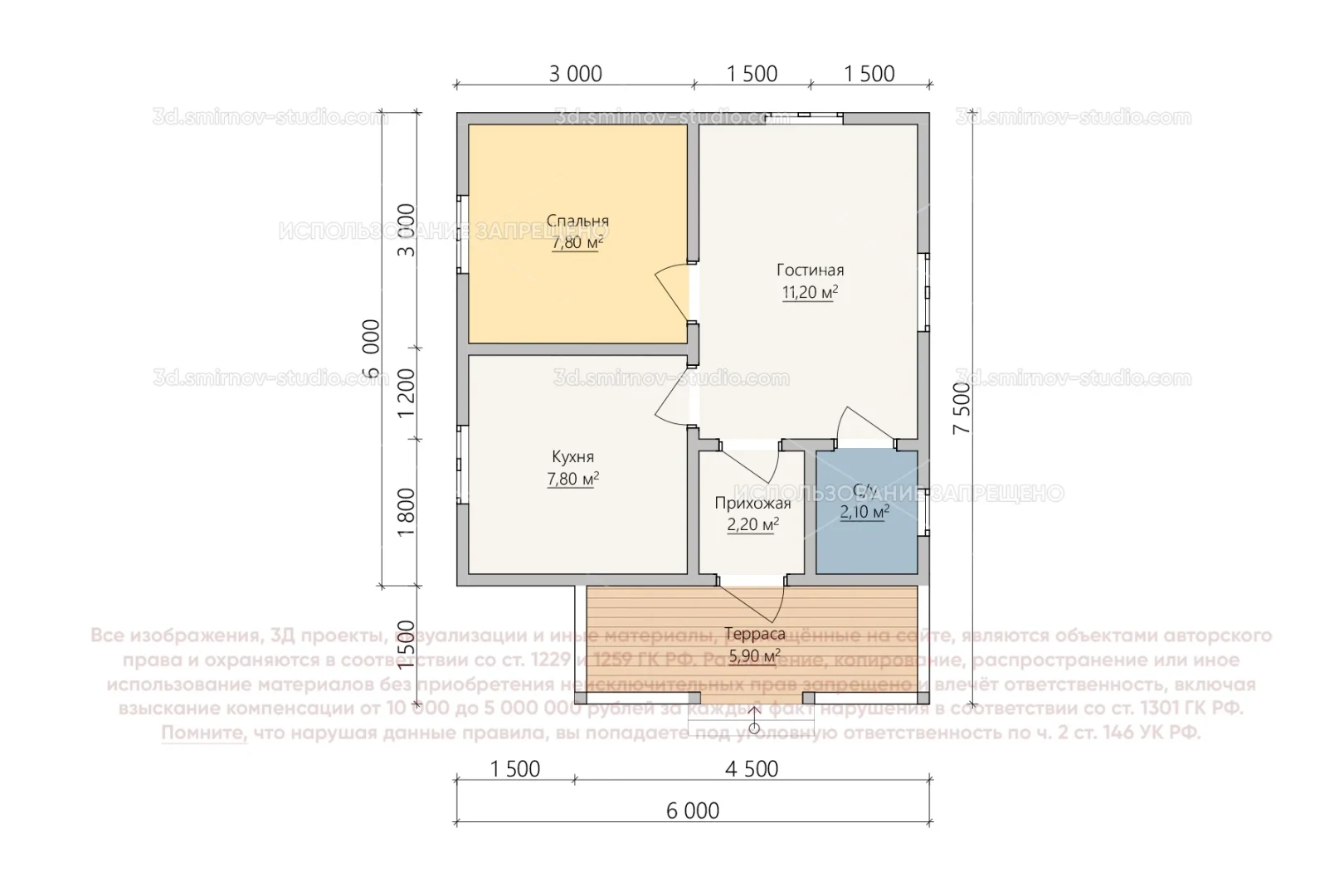
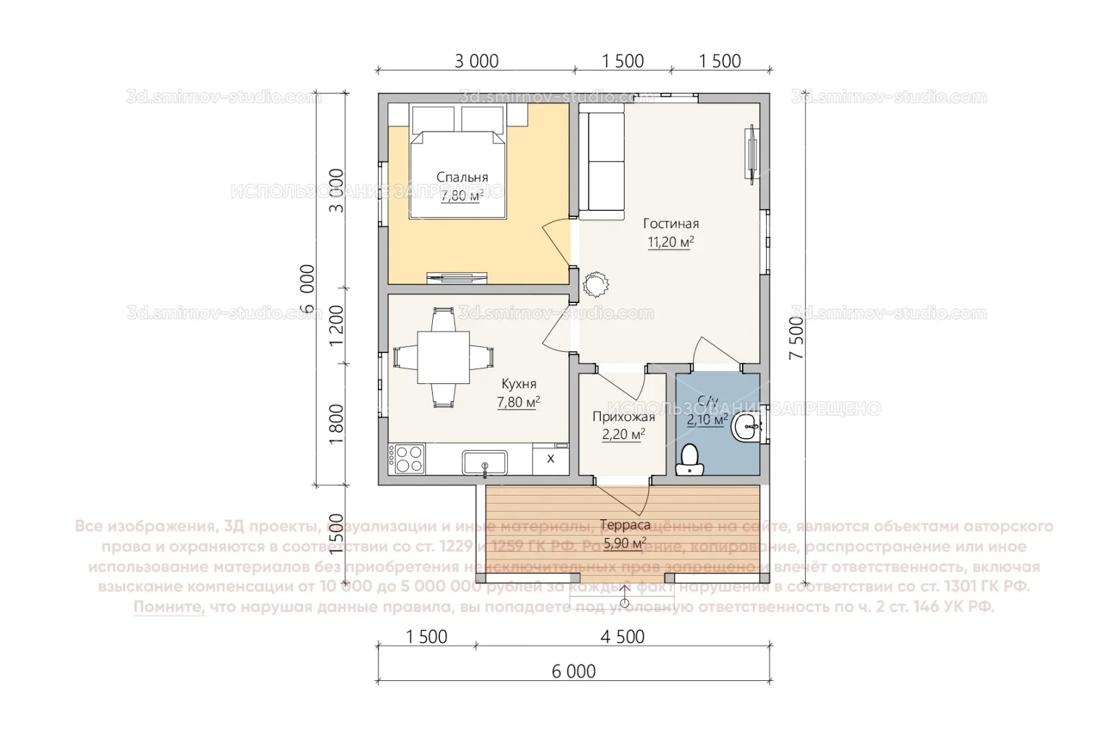
Выберите цвет проекта
Переключайтесь между цветами, нажимая на их изображения, чтобы увидеть проект в выбранном цвете или нажмите Выбрать, чтобы добавить цвет в корзину
По этому проекту мы можем сделать
- АР8 510 ₽
- КР14 800 ₽
- Смета4 440 ₽
Использование файлов данных браузера
Во время посещения сайта 3d.smirnov-studio.com вы соглашаетесь с тем, что мы обрабатываем ваши персональные данные с использованием метрических программ. Подробнее можно ознакомиться здесь













