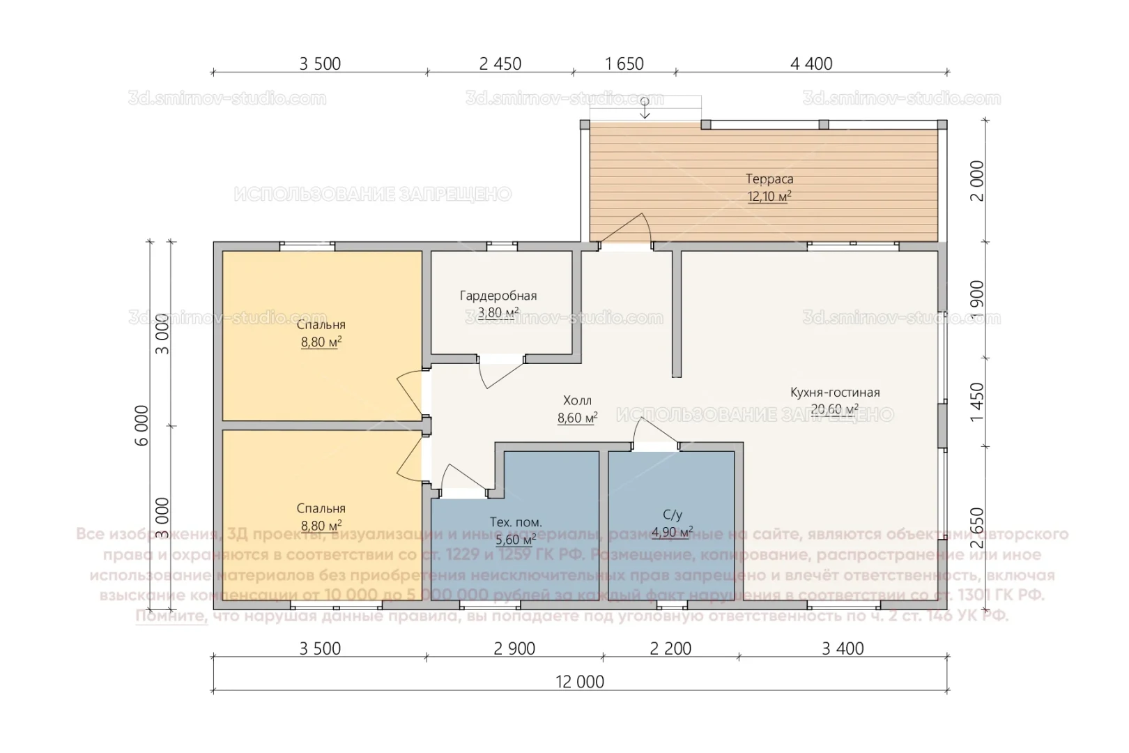
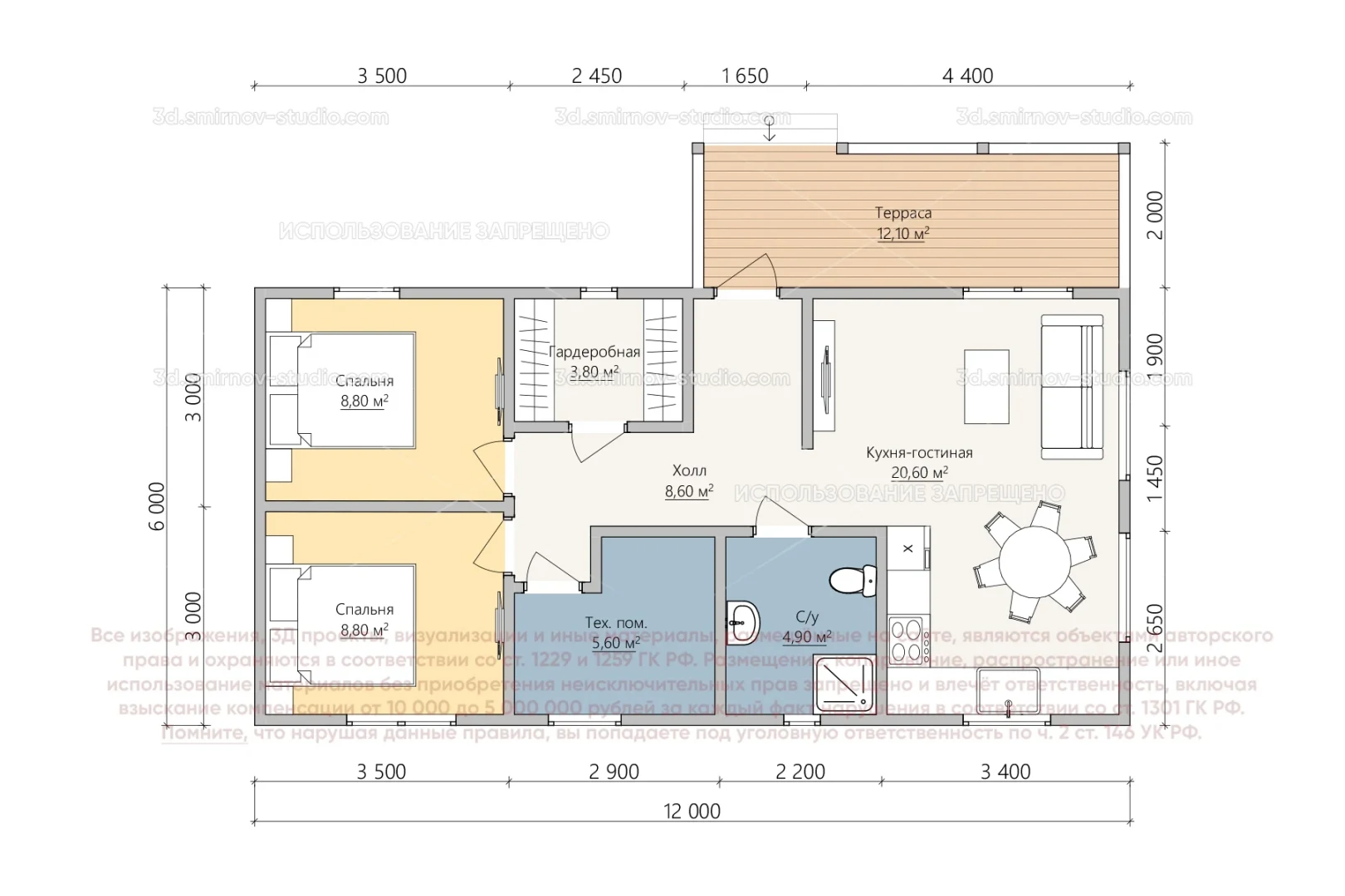
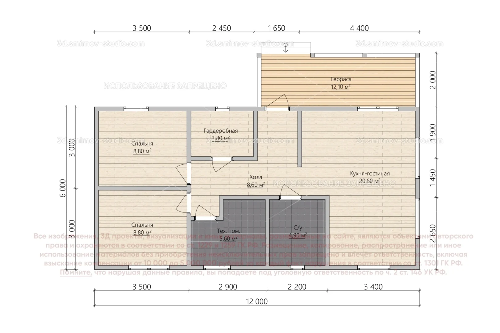
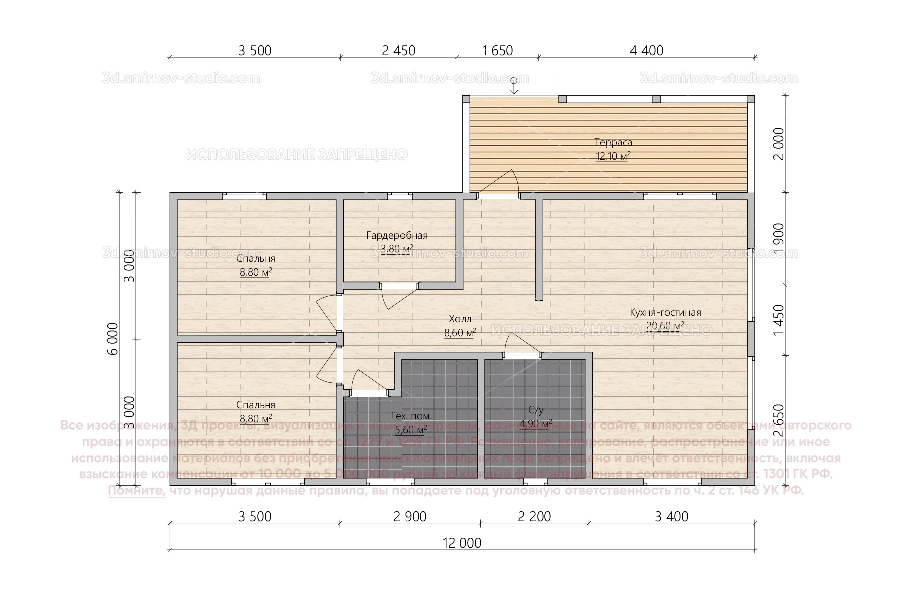
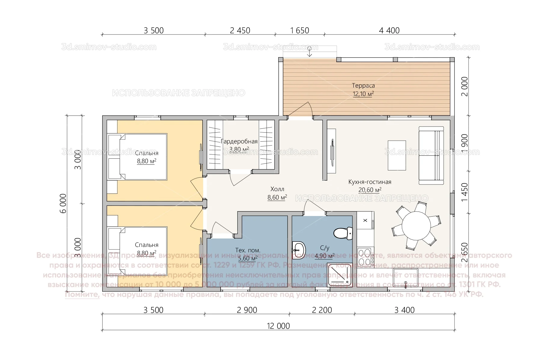
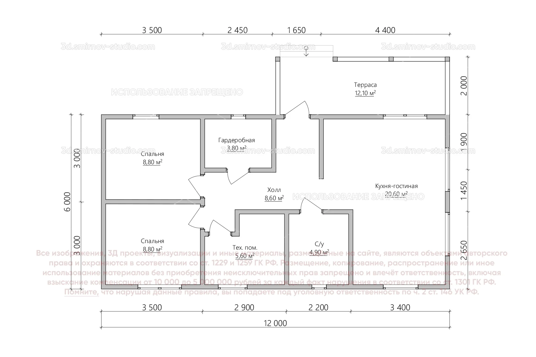
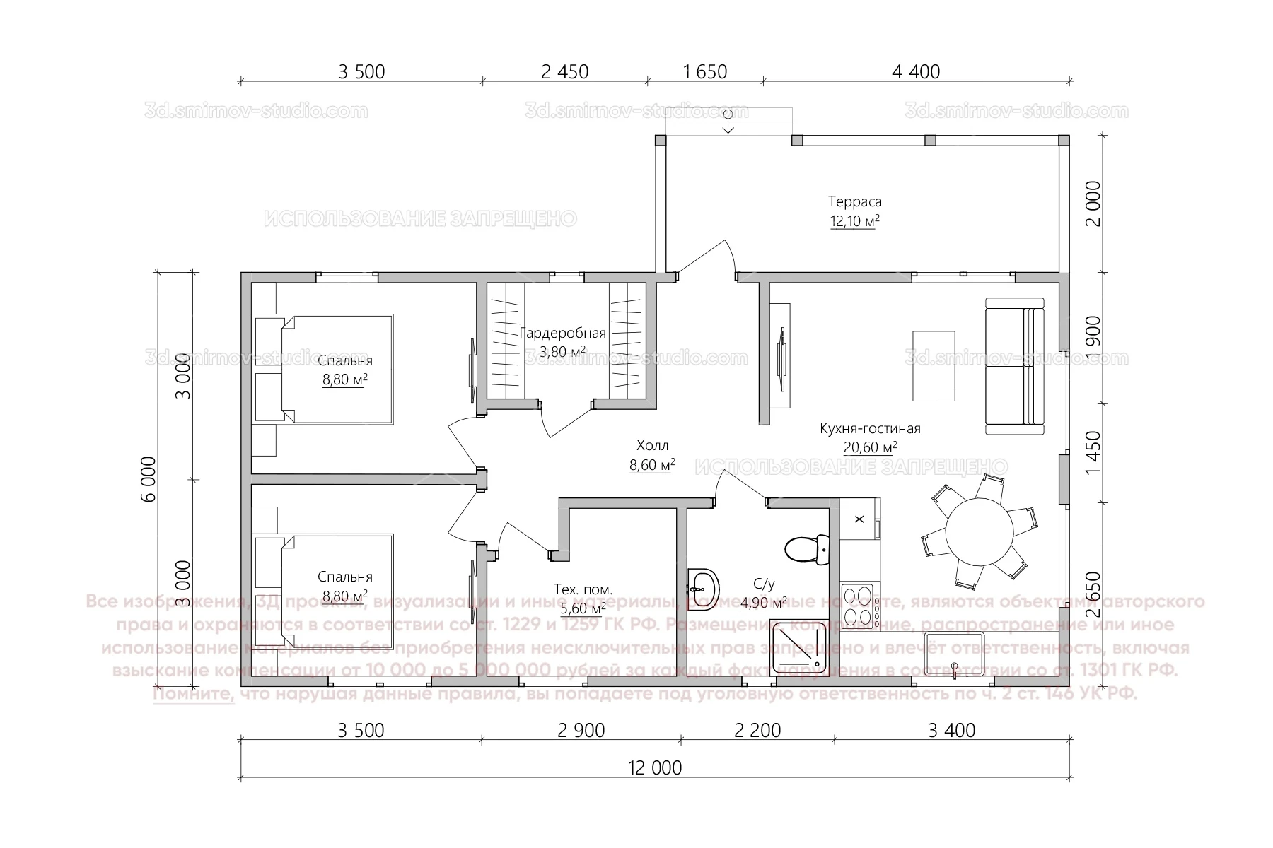
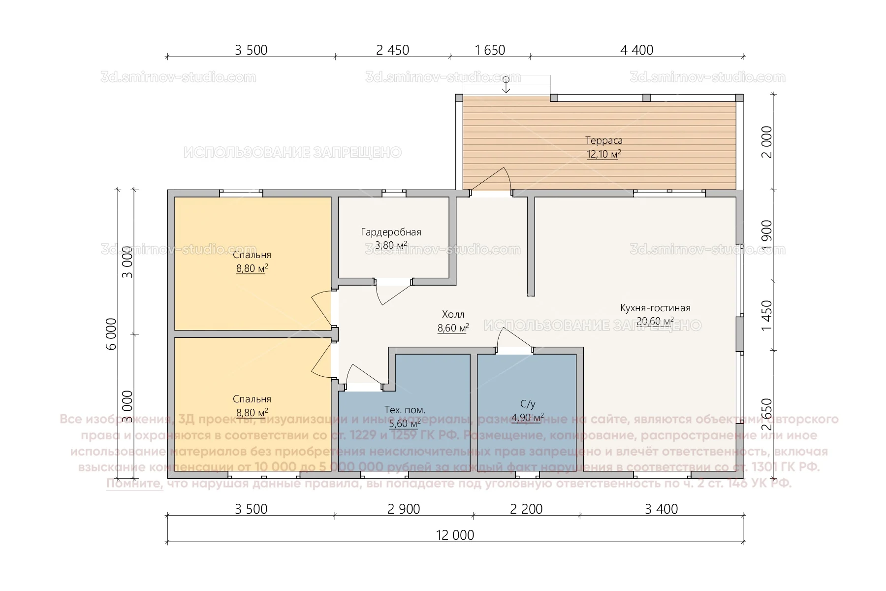
3Д проект дома из бруса 12 на 6 метров, площадью 74,7 м², с прямой крышей, террасой, котельной и санузлом
Выберите цвет проекта
Переключайтесь между цветами, нажимая на их изображения, чтобы увидеть проект в выбранном цвете или нажмите Выбрать, чтобы добавить цвет в корзину
По этому проекту мы можем сделать
- АР17 181 ₽
- КР29 880 ₽
- Смета8 964 ₽
Использование файлов данных браузера
Во время посещения сайта 3d.smirnov-studio.com вы соглашаетесь с тем, что мы обрабатываем ваши персональные данные с использованием метрических программ. Подробнее можно ознакомиться здесь













