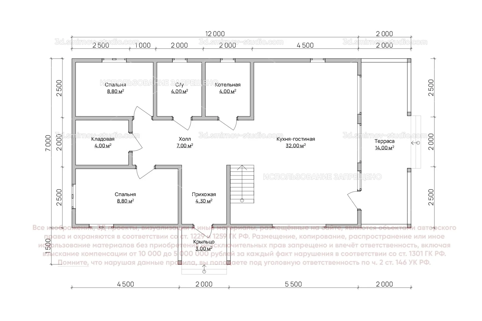
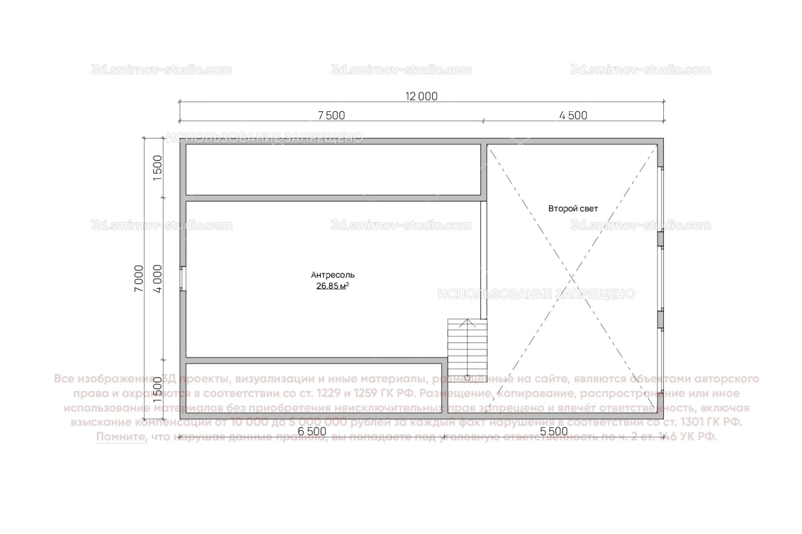
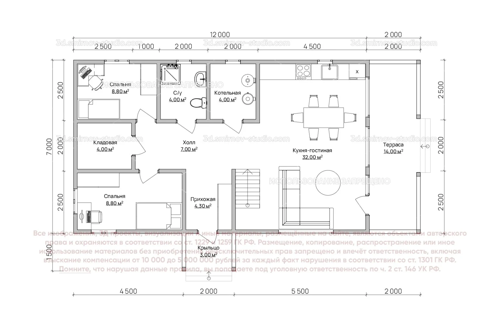
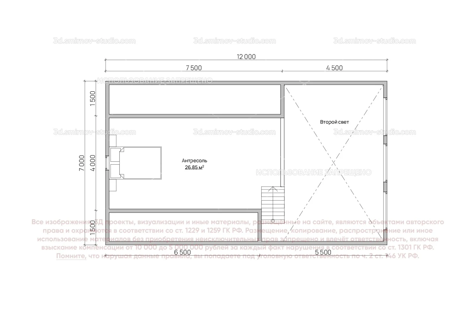
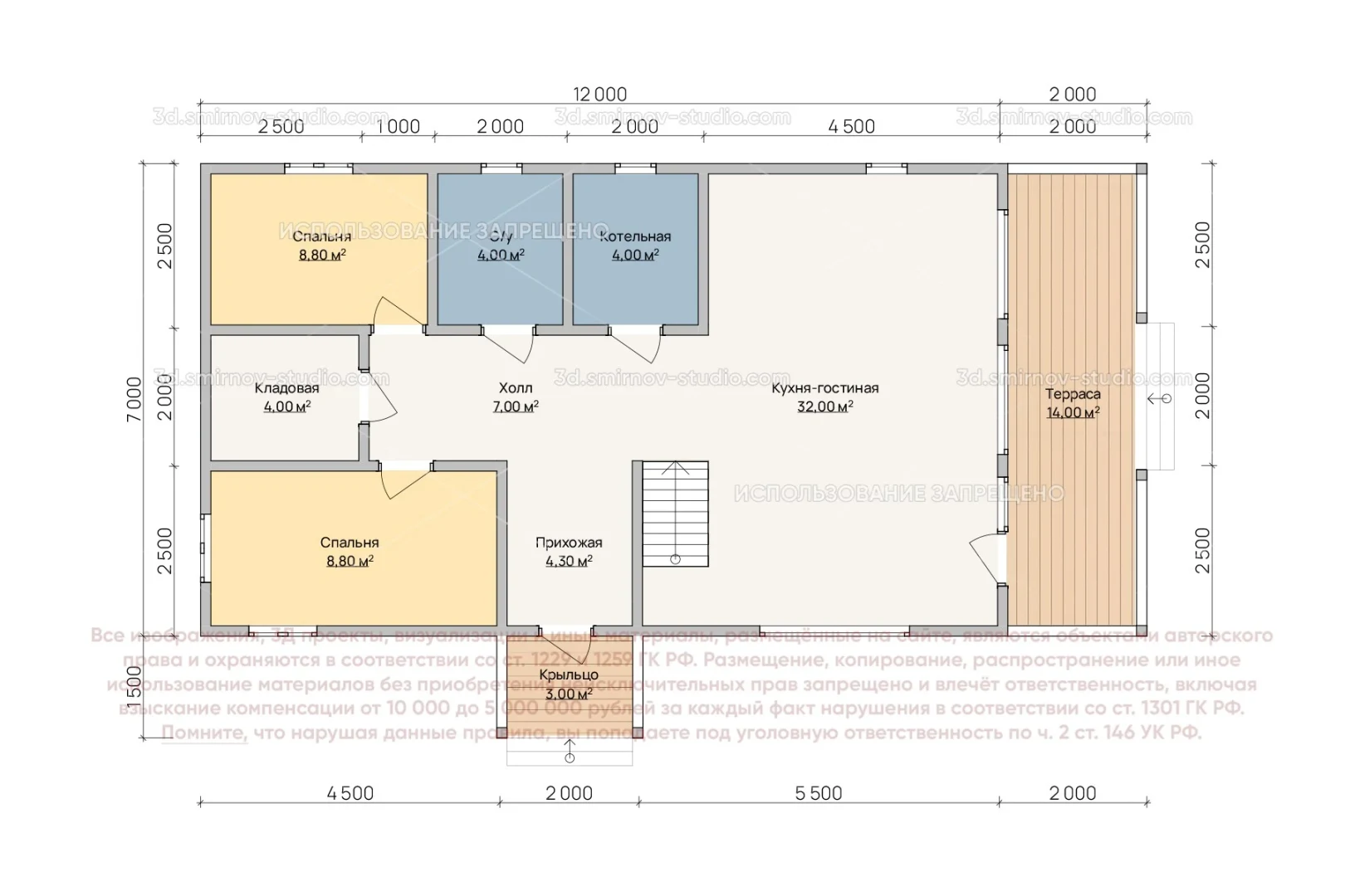
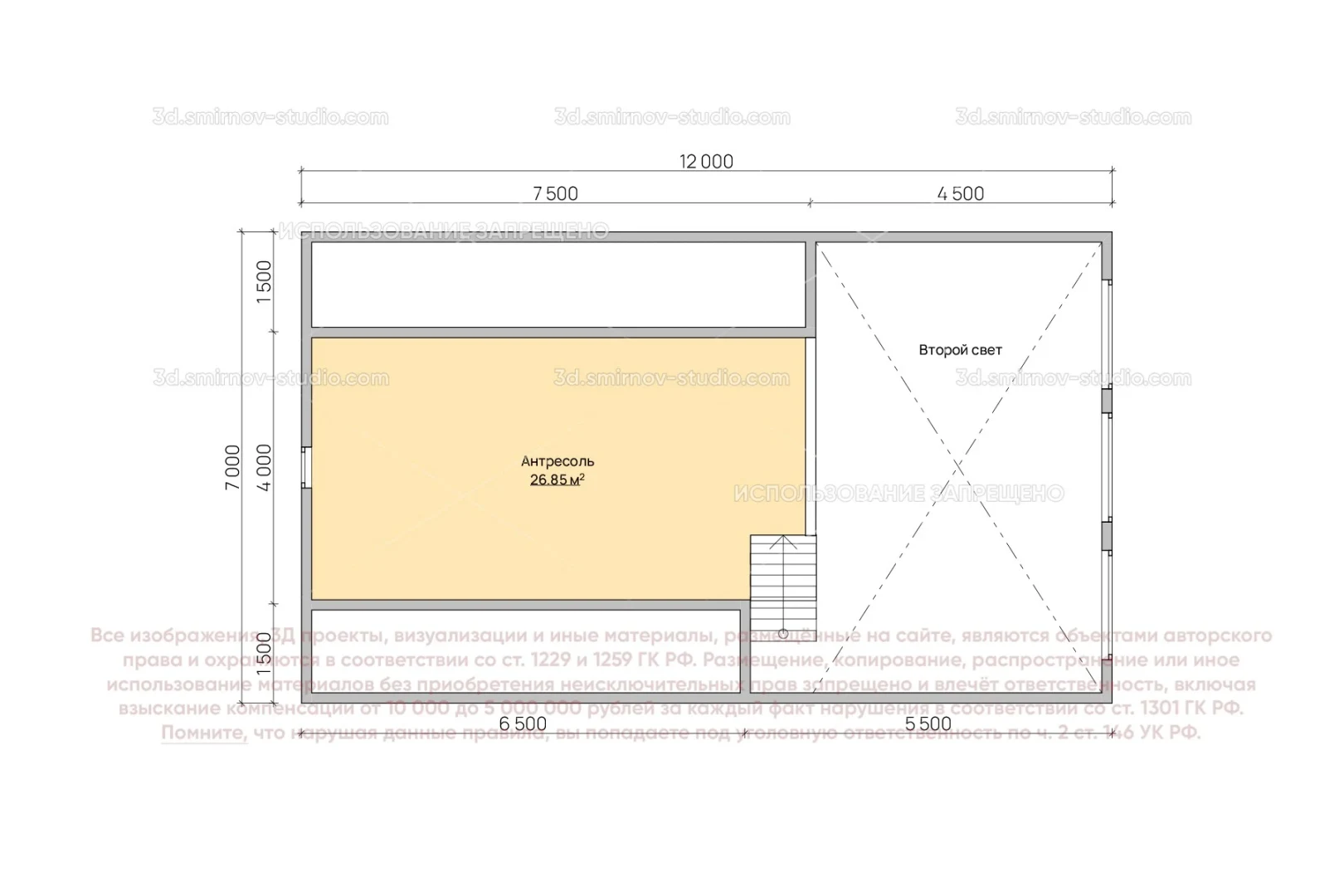
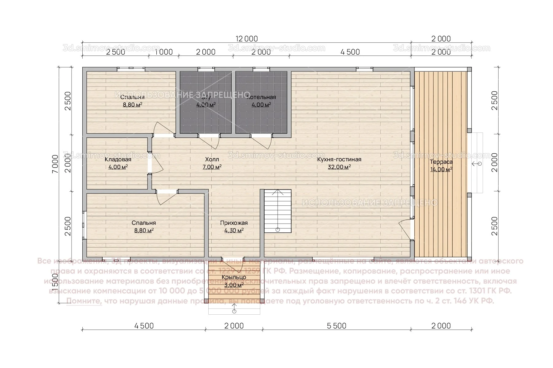
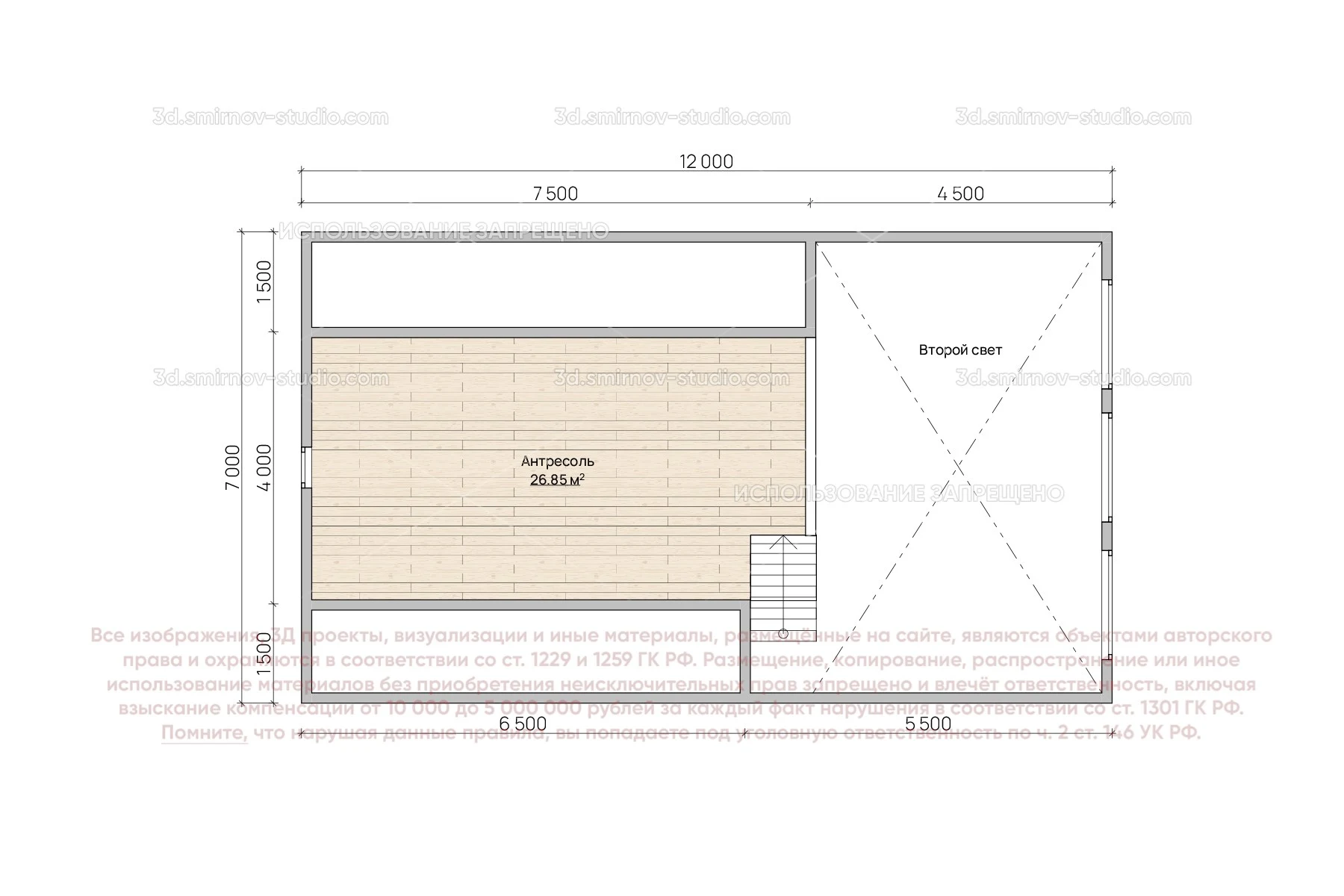
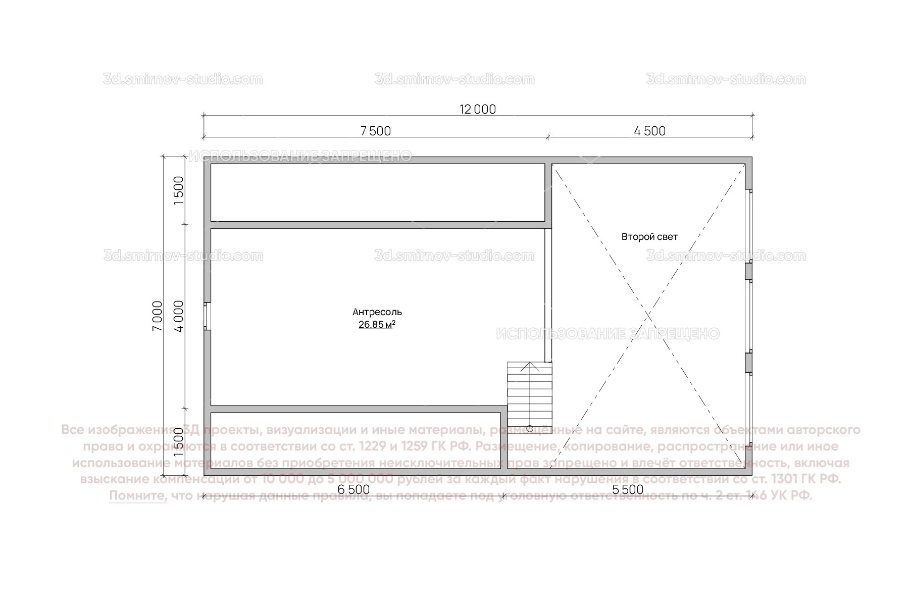
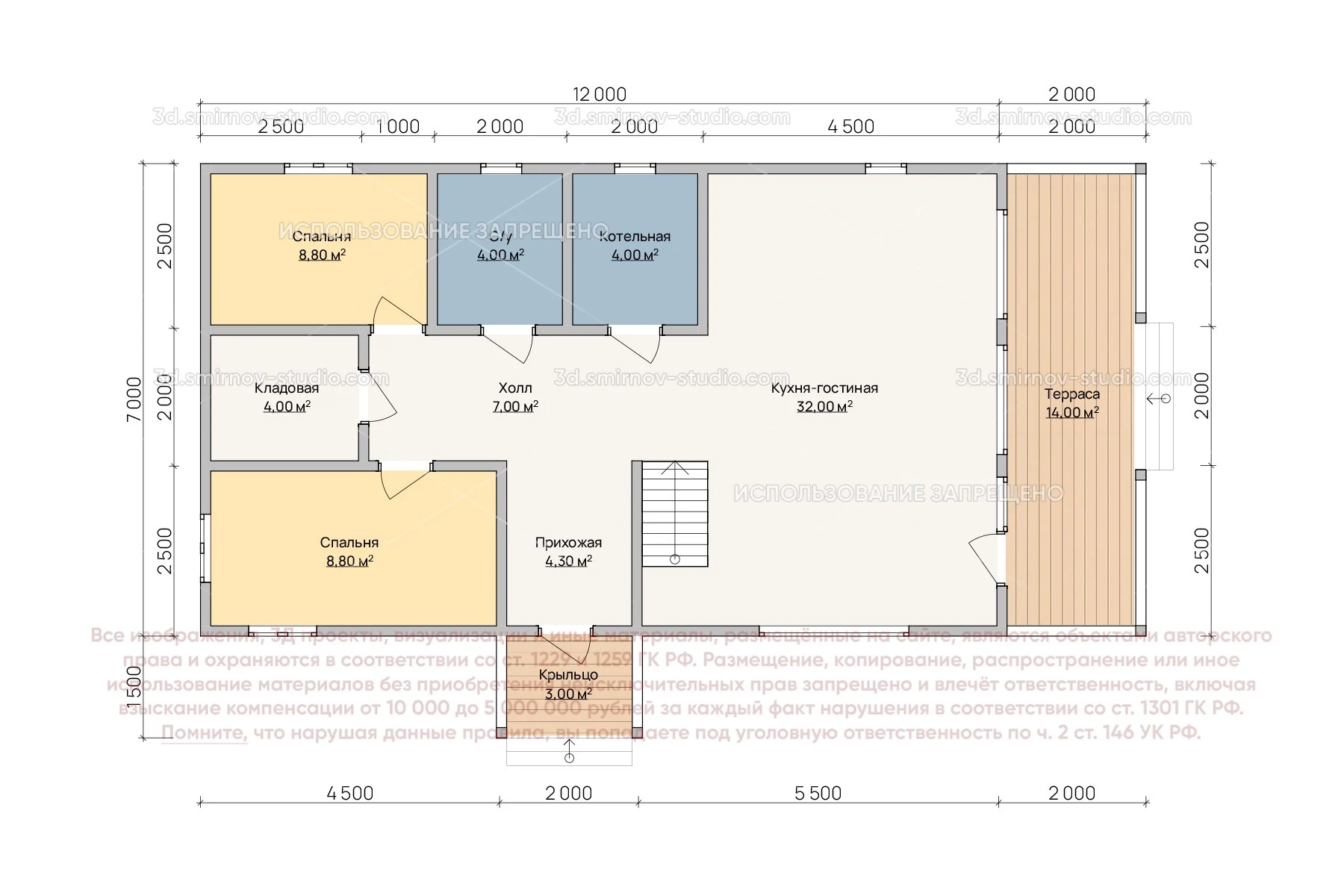
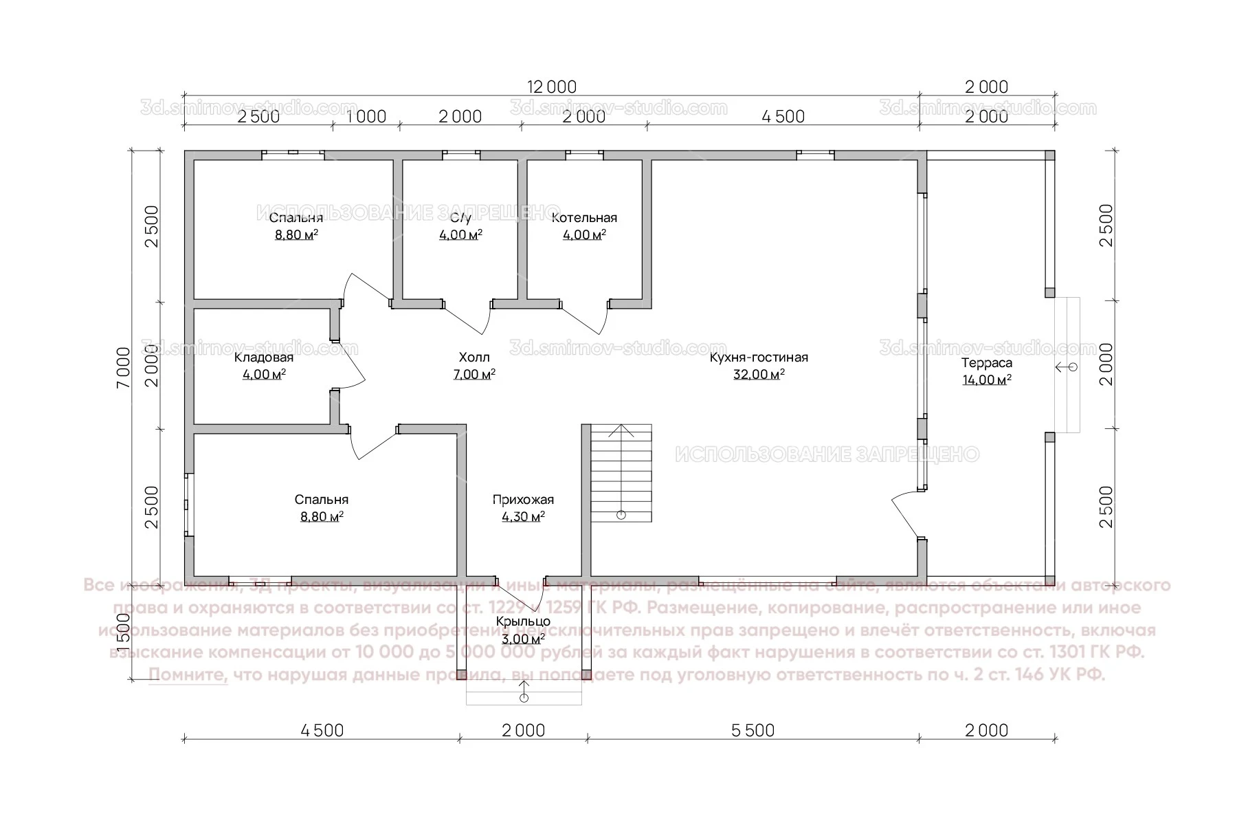
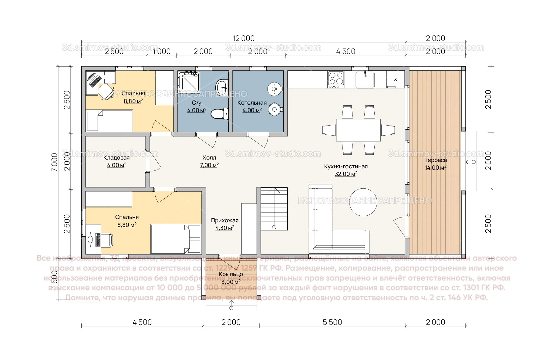
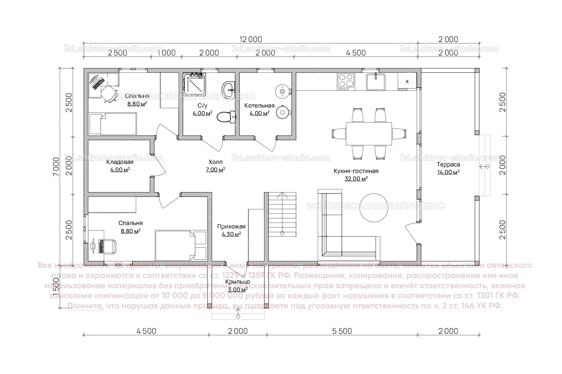
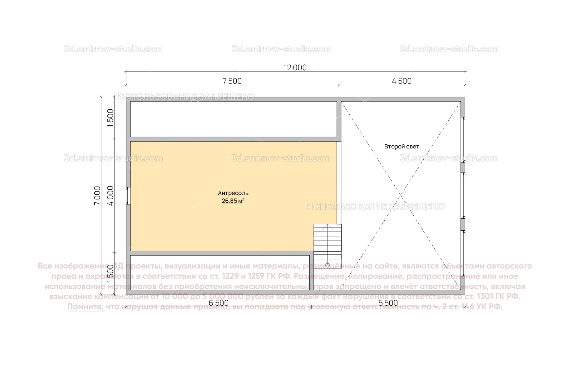
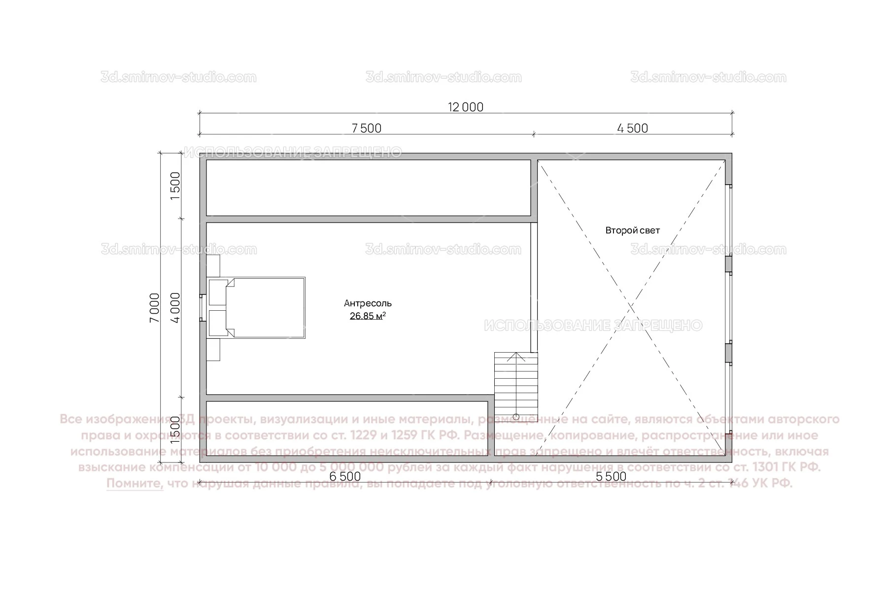
3Д проект дома из бруса 12 на 7 метров, площадью 116,75 м², с прямой крышей, террасой, крыльцом и антресолью
Выберите цвет проекта
Переключайтесь между цветами, нажимая на их изображения, чтобы увидеть проект в выбранном цвете или нажмите Выбрать, чтобы добавить цвет в корзину
По этому проекту мы можем сделать
- АР26 853 ₽
- КР46 700 ₽
- Смета14 010 ₽
Использование файлов данных браузера
Во время посещения сайта 3d.smirnov-studio.com вы соглашаетесь с тем, что мы обрабатываем ваши персональные данные с использованием метрических программ. Подробнее можно ознакомиться здесь

















