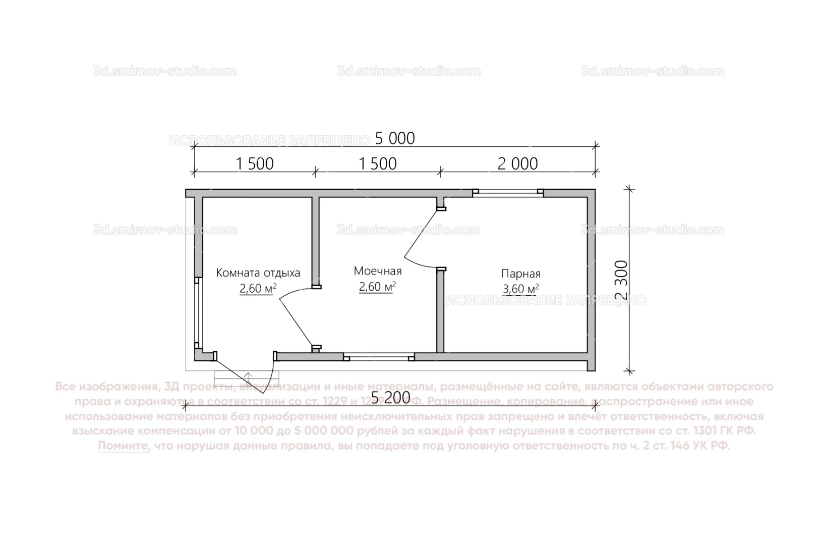
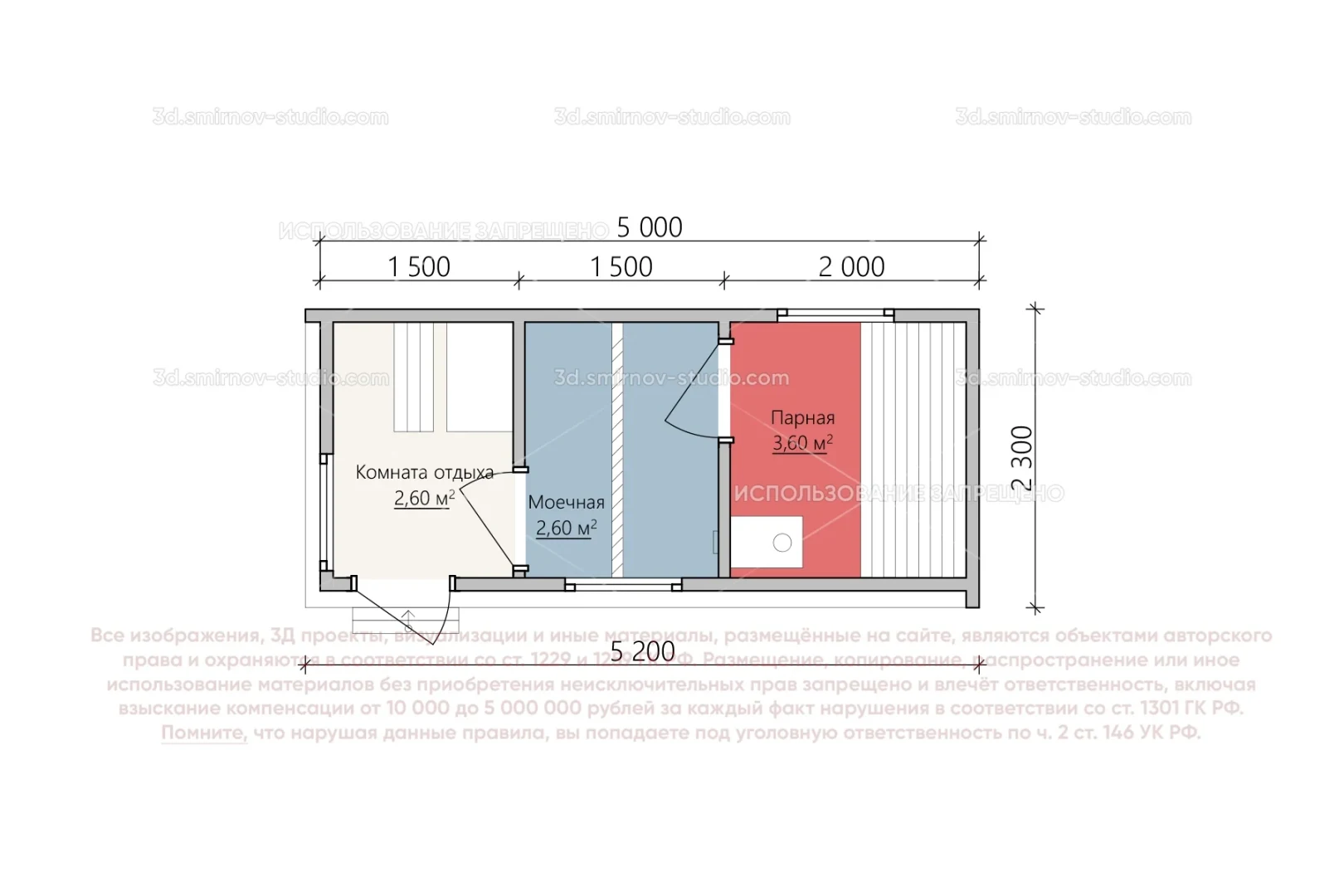
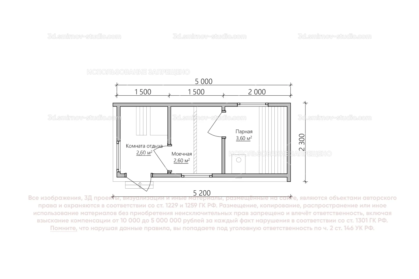
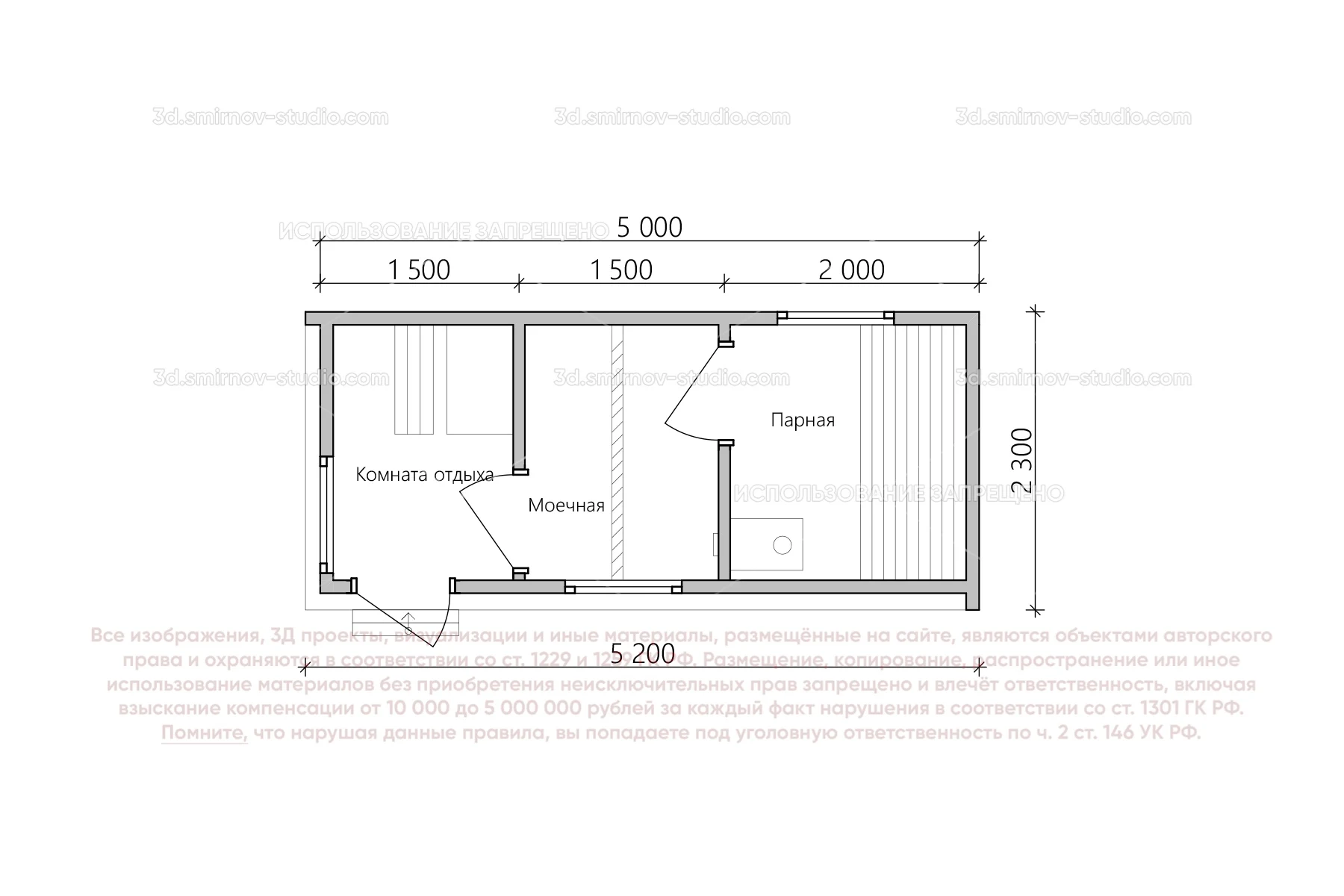
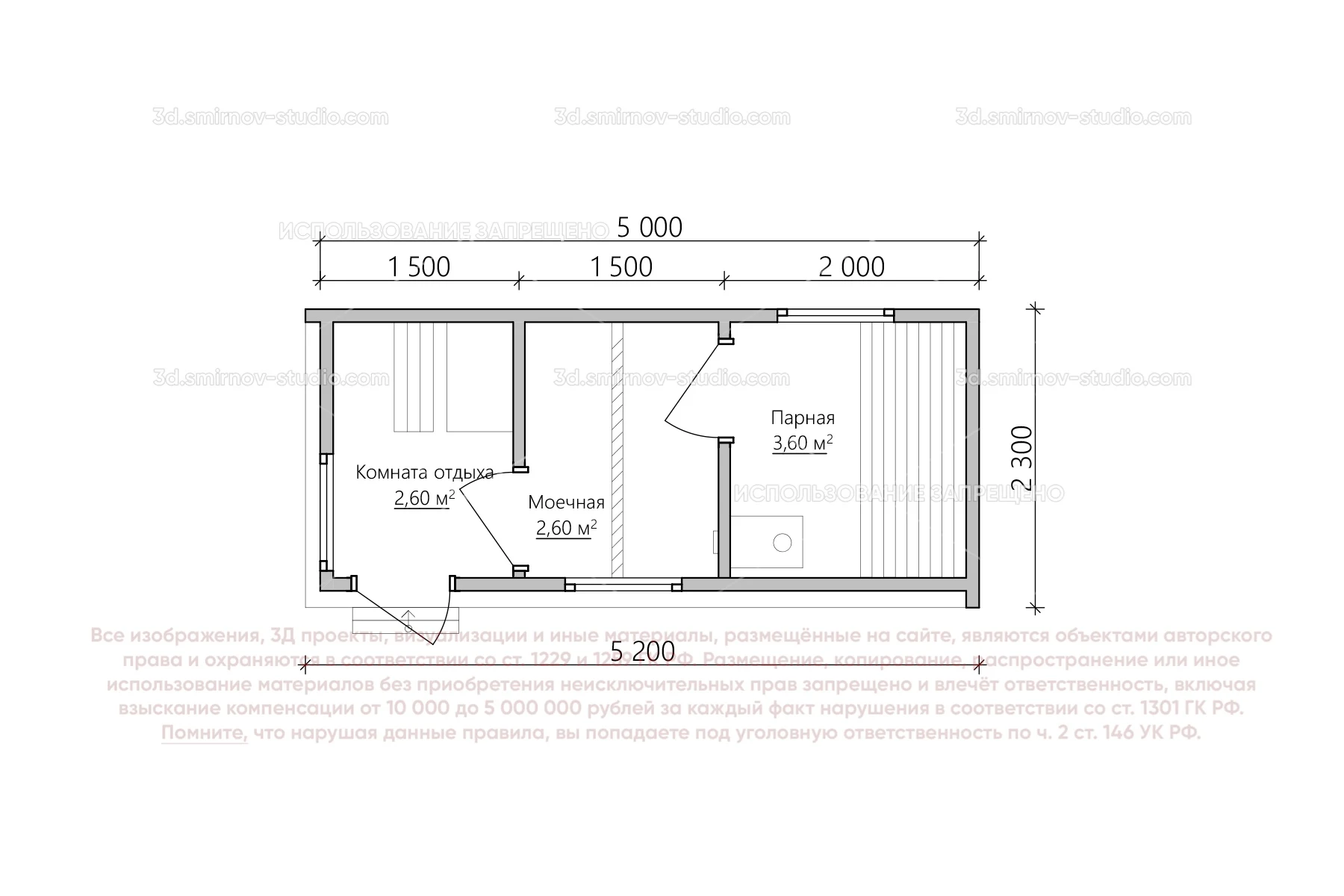
3Д проект мобильной бани в скандинавском стиле 5.2 на 2.3 метра, площадью 8,80 м², с односкатной крышей, моечной и комнатой отдыха
Выберите цвет проекта
Переключайтесь между цветами, нажимая на их изображения, чтобы увидеть проект в выбранном цвете или нажмите Выбрать, чтобы добавить цвет в корзину
По этому проекту мы можем сделать
- АР2 024 ₽
- КР3 520 ₽
- Смета1 056 ₽













