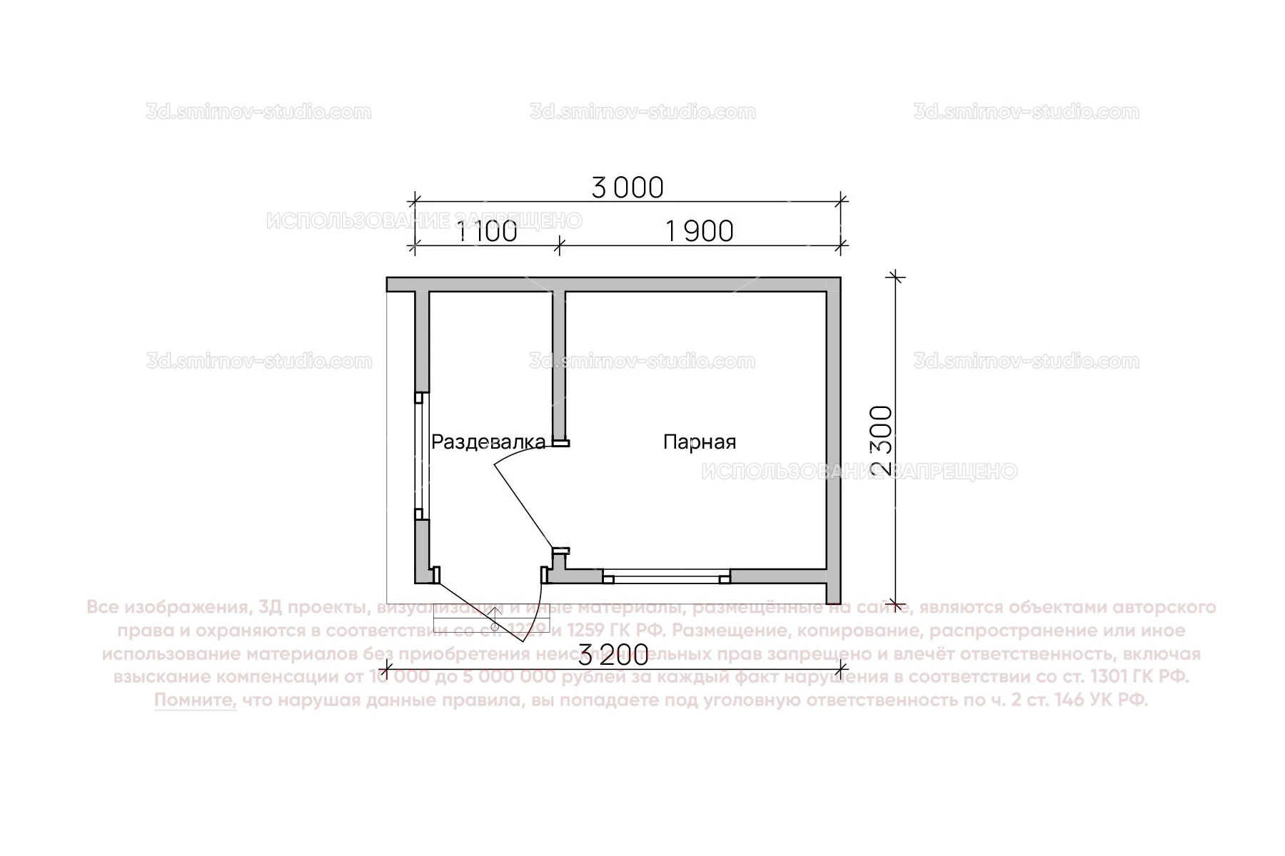
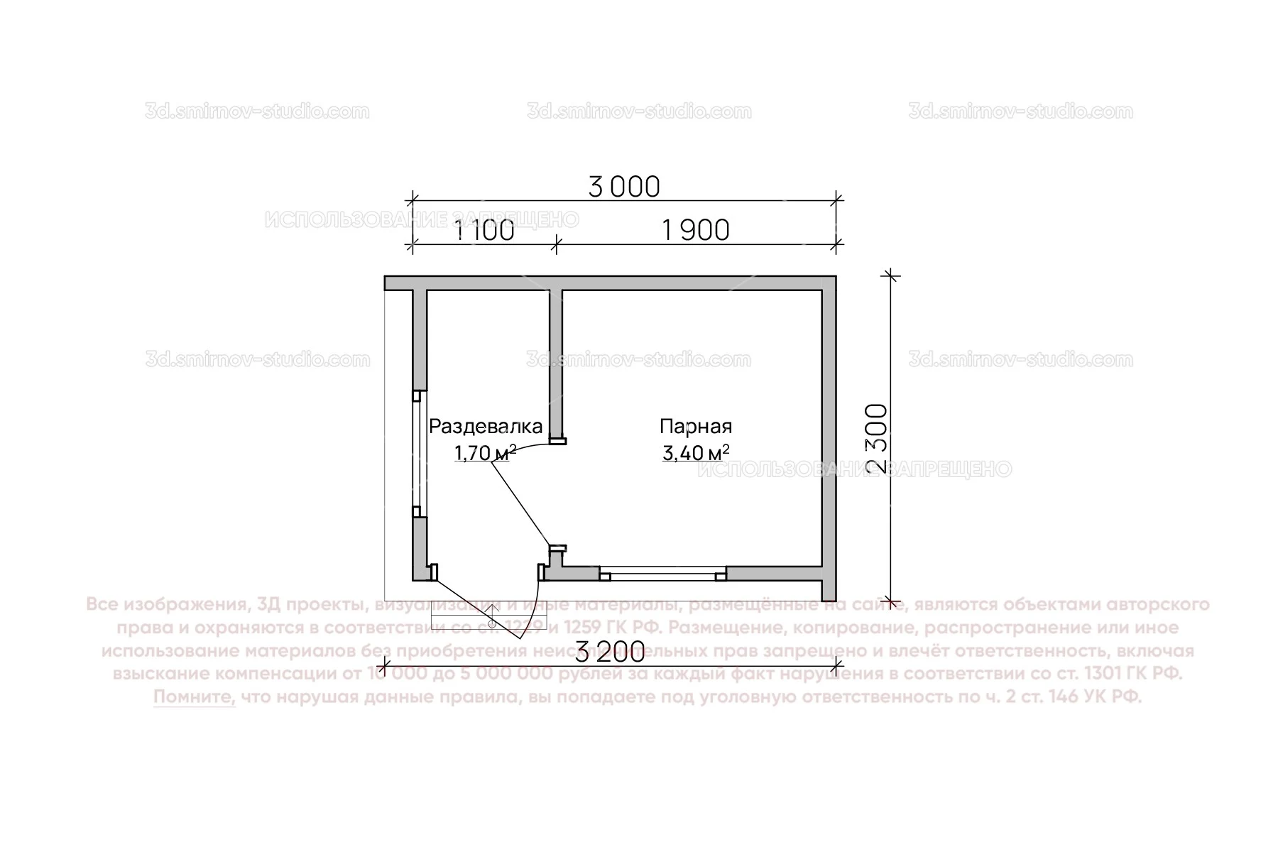
3Д проект мобильной бани в скандинавском стиле 3 на 2.3 метра, площадью 5,10 м², с односкатной крышей и раздевалкой
Выберите цвет проекта
Переключайтесь между цветами, нажимая на их изображения, чтобы увидеть проект в выбранном цвете или нажмите Выбрать, чтобы добавить цвет в корзину
По этому проекту мы можем сделать
- АР1 173 ₽
- КР2 040 ₽
- Смета612 ₽
Использование файлов данных браузера
Во время посещения сайта 3d.smirnov-studio.com вы соглашаетесь с тем, что мы обрабатываем ваши персональные данные с использованием метрических программ. Подробнее можно ознакомиться здесь













