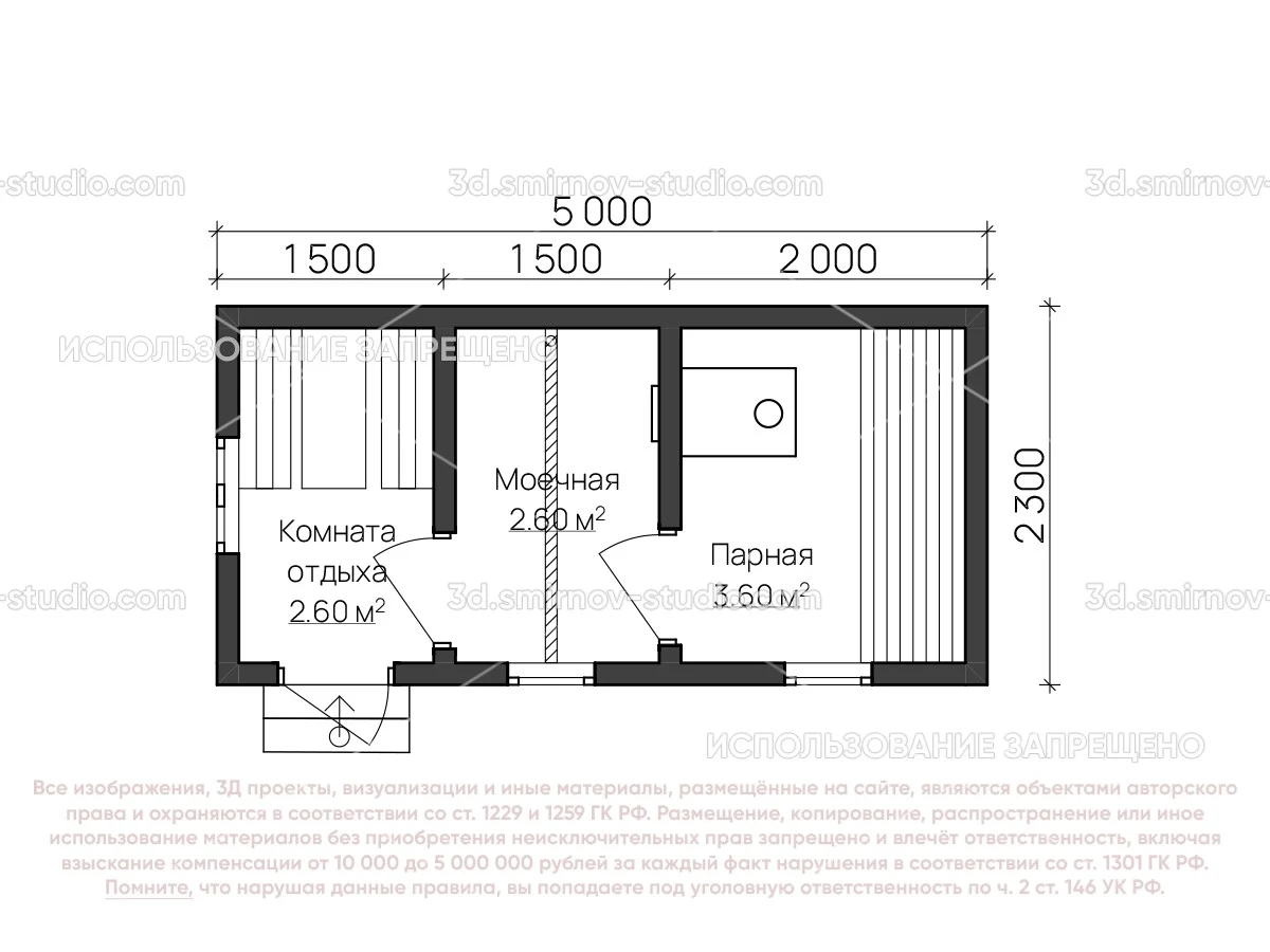
3Д проект мобильной бани из бруса 5 на 2.3 метра, площадью 8,80 м², с комнатой отдыха, моечной, двускатной и односкатной крышей
Выберите цвет проекта
Переключайтесь между цветами, нажимая на их изображения, чтобы увидеть проект в выбранном цвете или нажмите Выбрать, чтобы добавить цвет в корзину
По этому проекту мы можем сделать
- АР2 024 ₽
- КР3 520 ₽
- Смета1 056 ₽
Использование файлов данных браузера
Во время посещения сайта 3d.smirnov-studio.com вы соглашаетесь с тем, что мы обрабатываем ваши персональные данные с использованием метрических программ. Подробнее можно ознакомиться здесь











