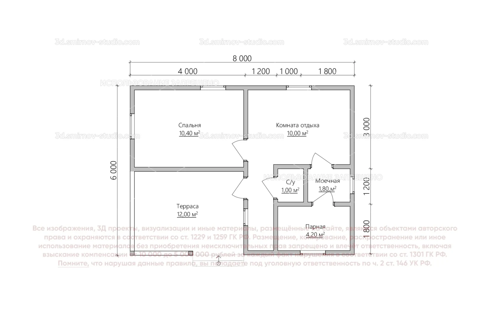
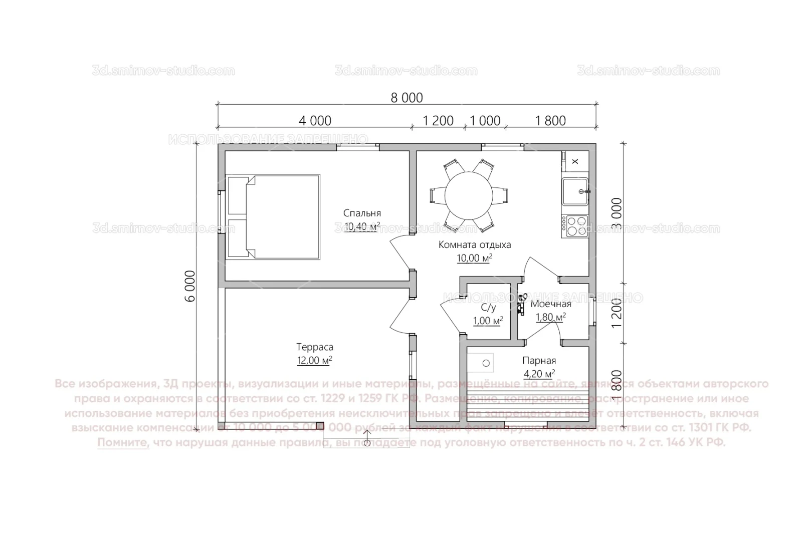
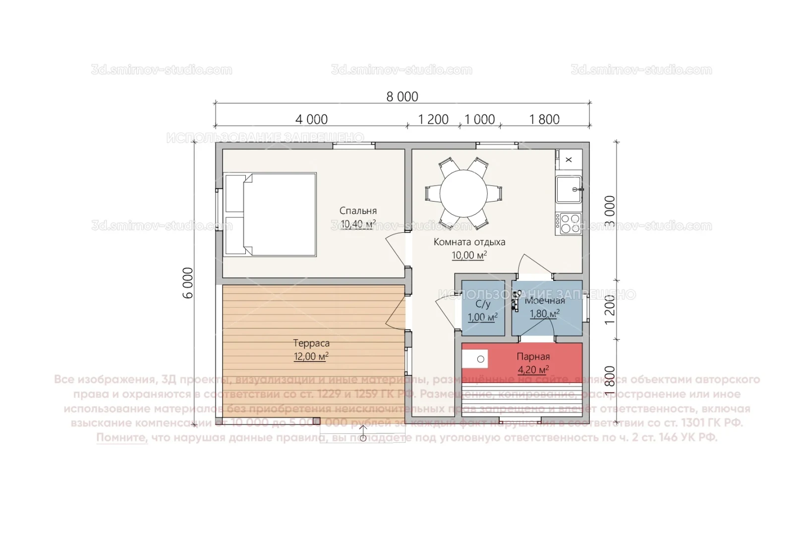
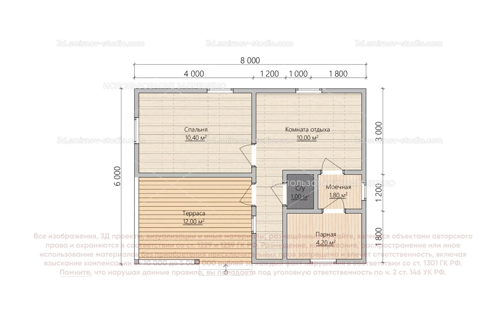
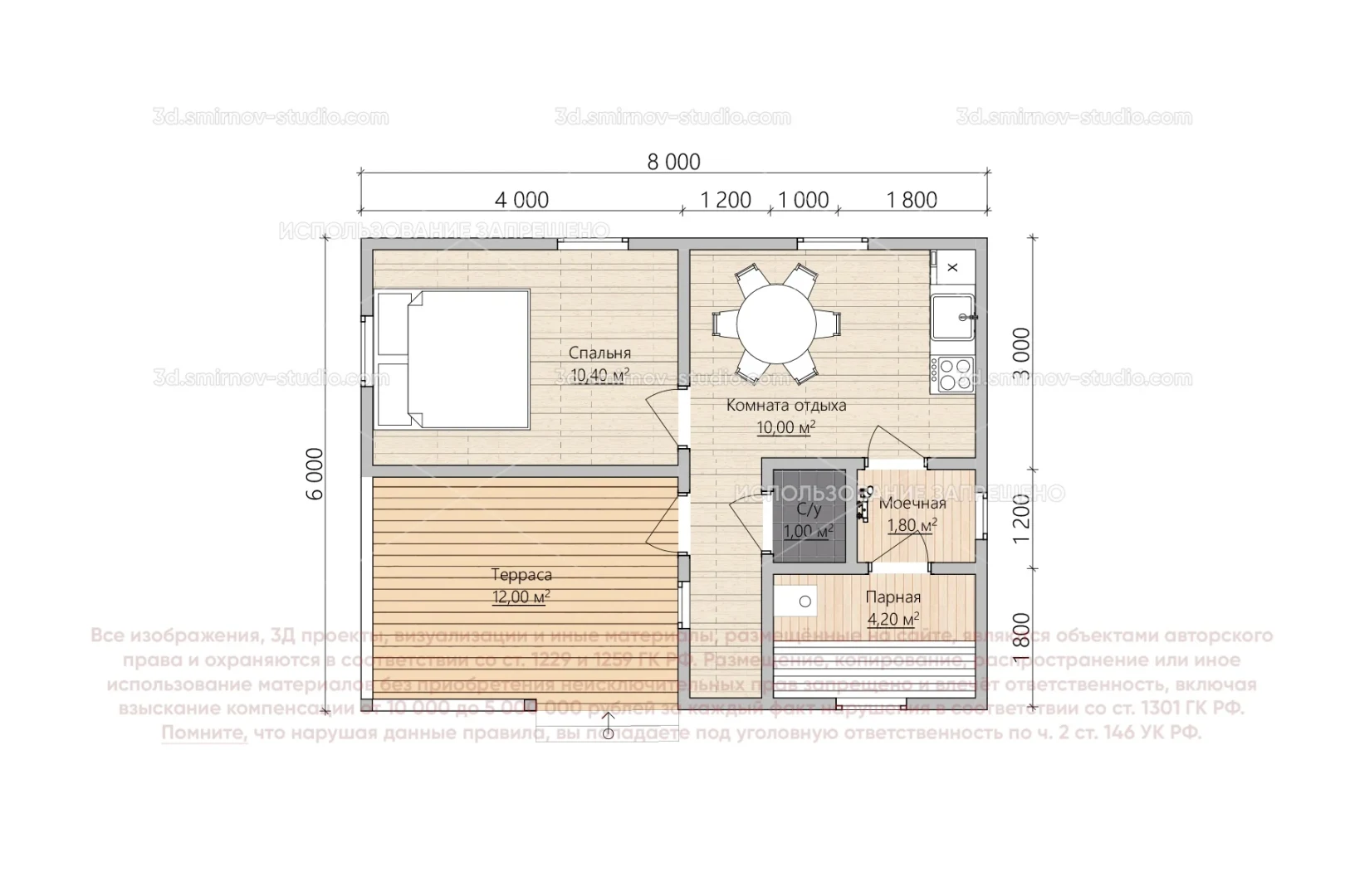
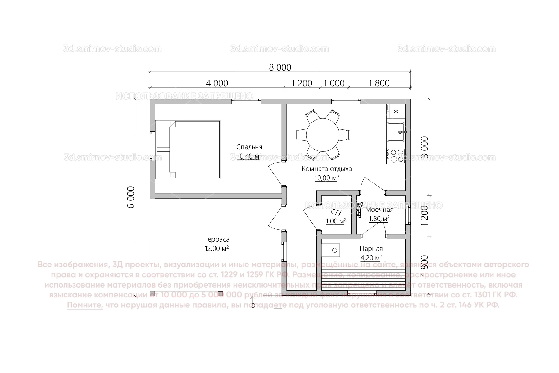
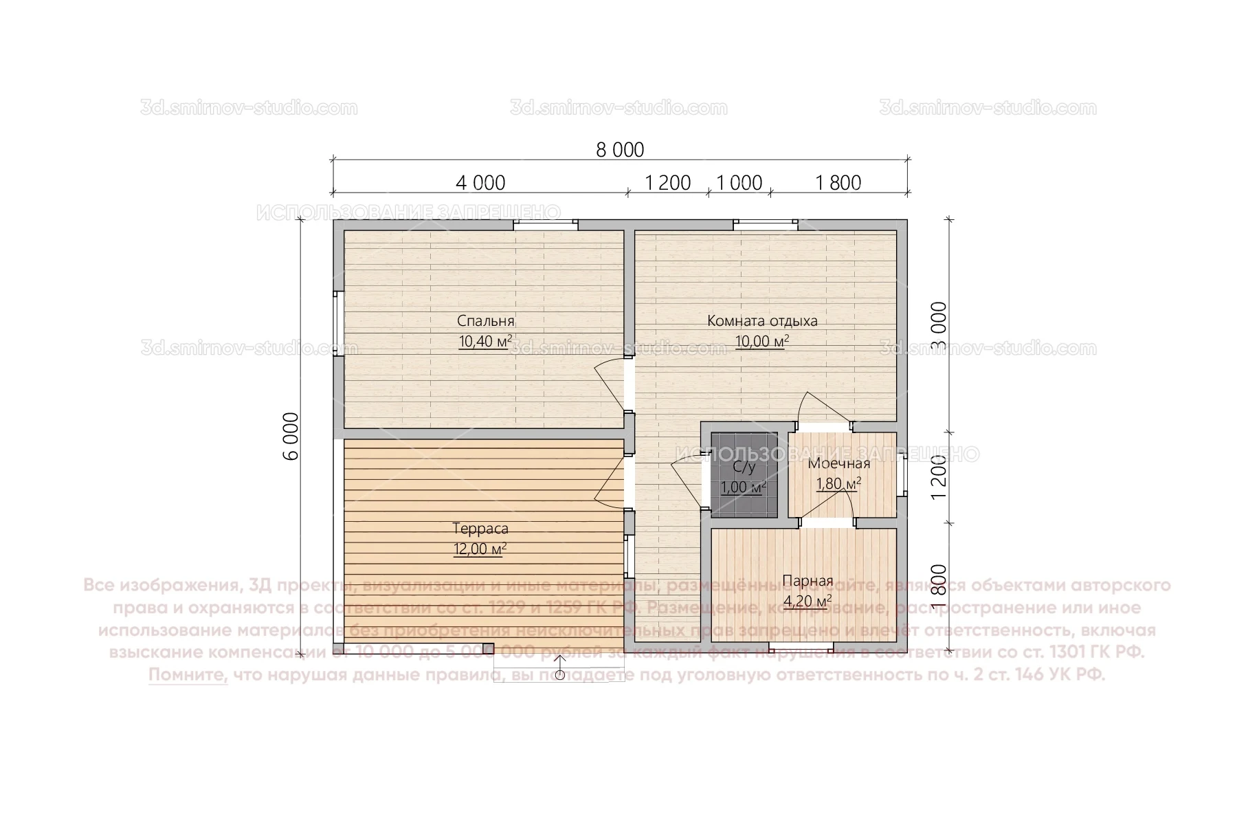
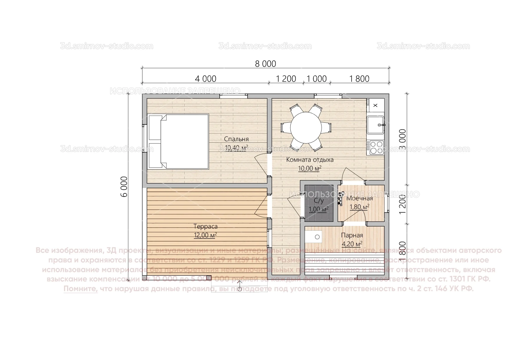
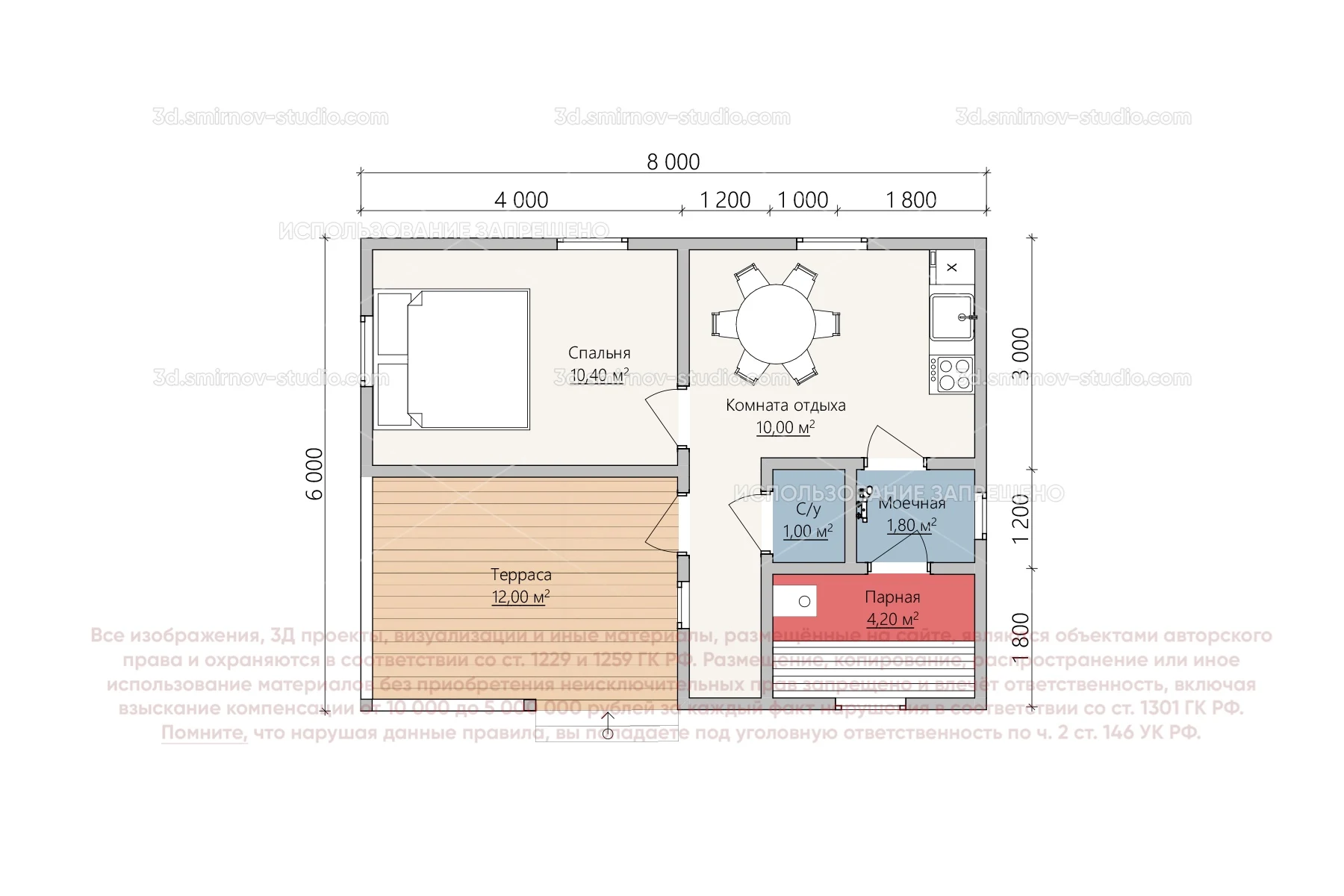
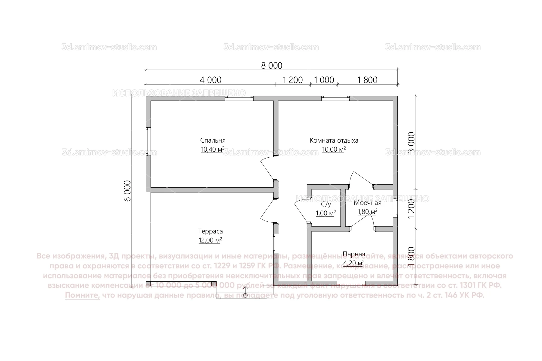
3Д проект одноэтажной каркасной бани 8 на 6 метров, площадью 39.4 м², с прямой крышей, террасой и комнатой отдыха
Выберите цвет проекта
Переключайтесь между цветами, нажимая на их изображения, чтобы увидеть проект в выбранном цвете или нажмите Выбрать, чтобы добавить цвет в корзину
По этому проекту мы можем сделать
- АР9 062 ₽
- КР15 760 ₽
- Смета4 728 ₽
Использование файлов данных браузера
Во время посещения сайта 3d.smirnov-studio.com вы соглашаетесь с тем, что мы обрабатываем ваши персональные данные с использованием метрических программ. Подробнее можно ознакомиться здесь













