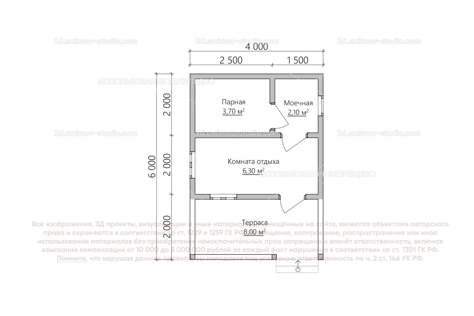
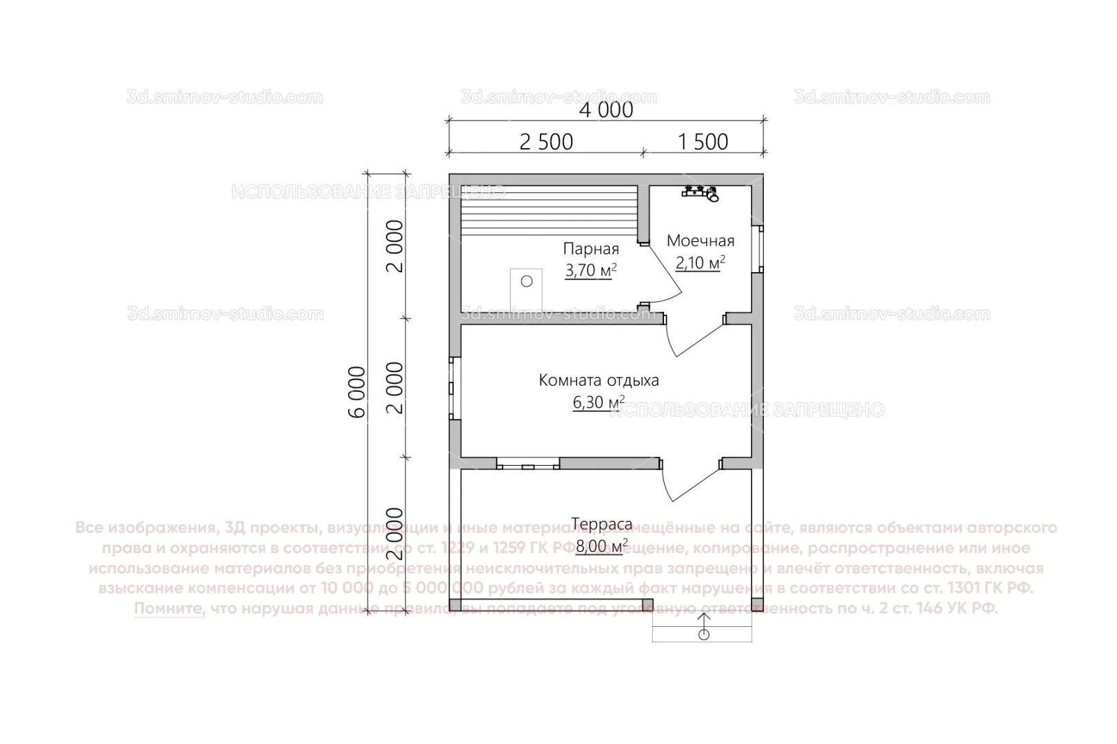
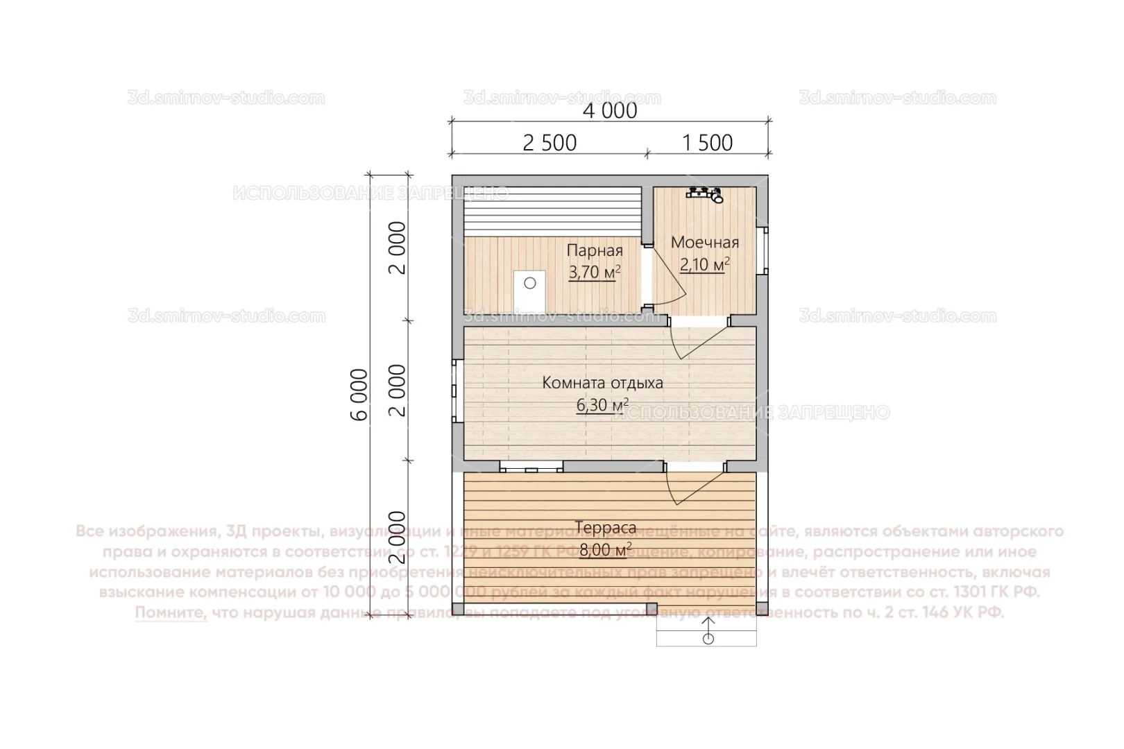
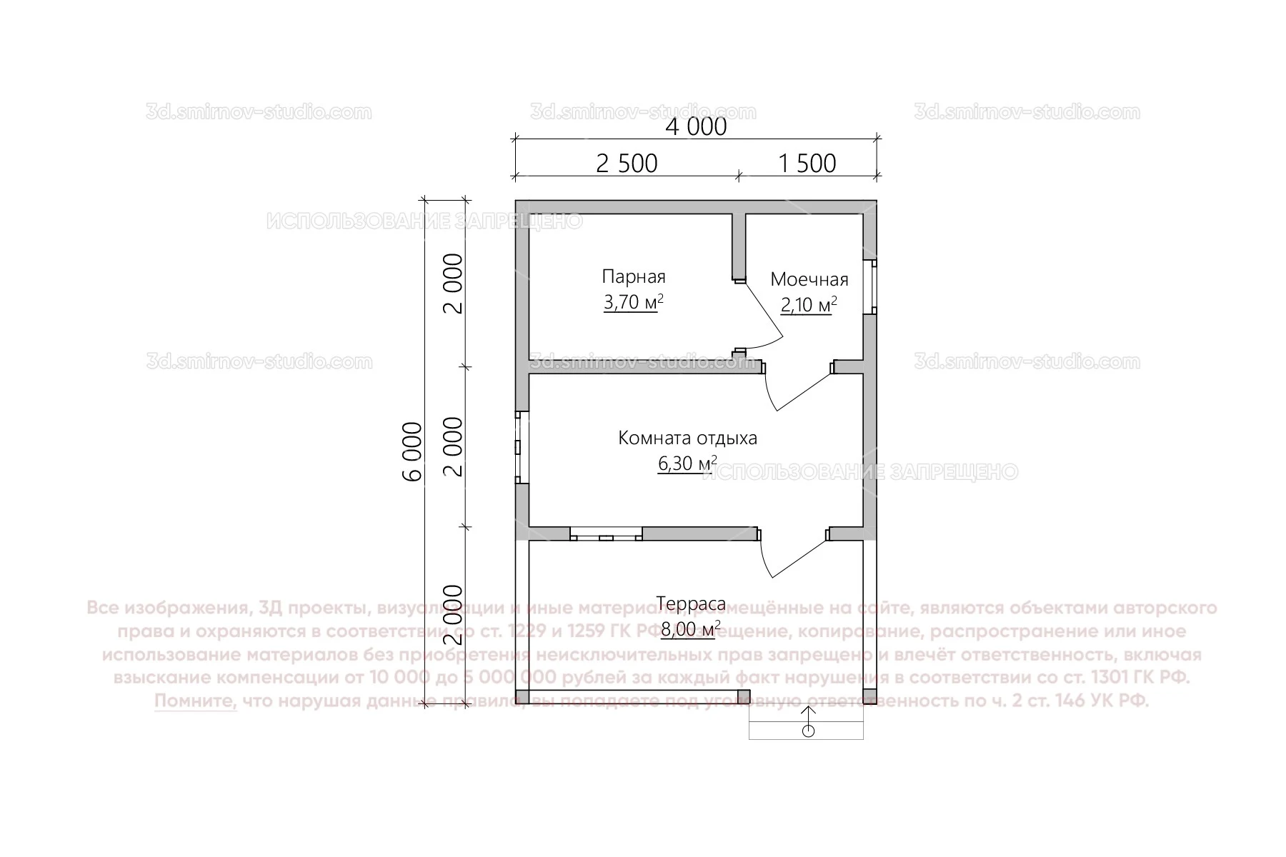
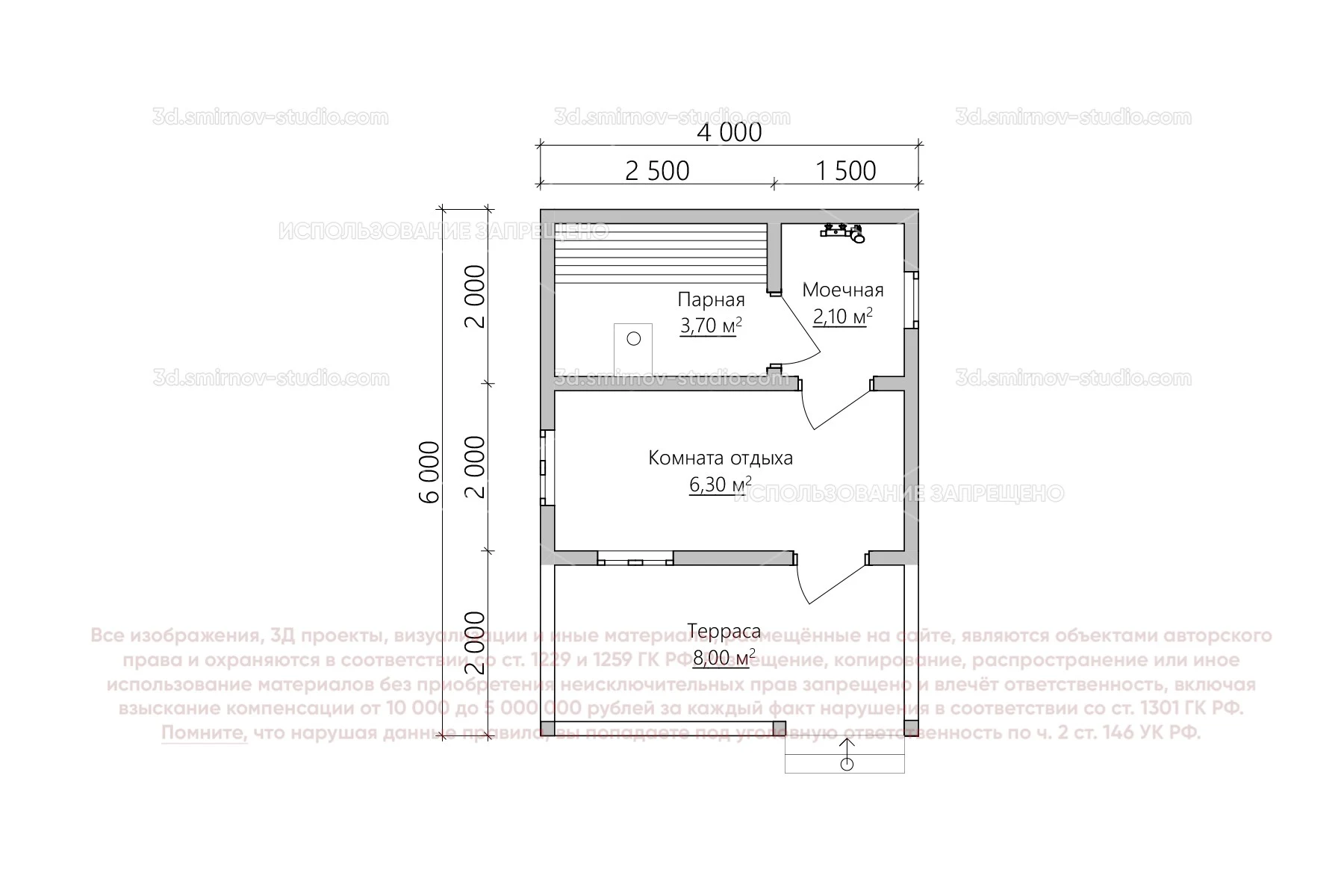
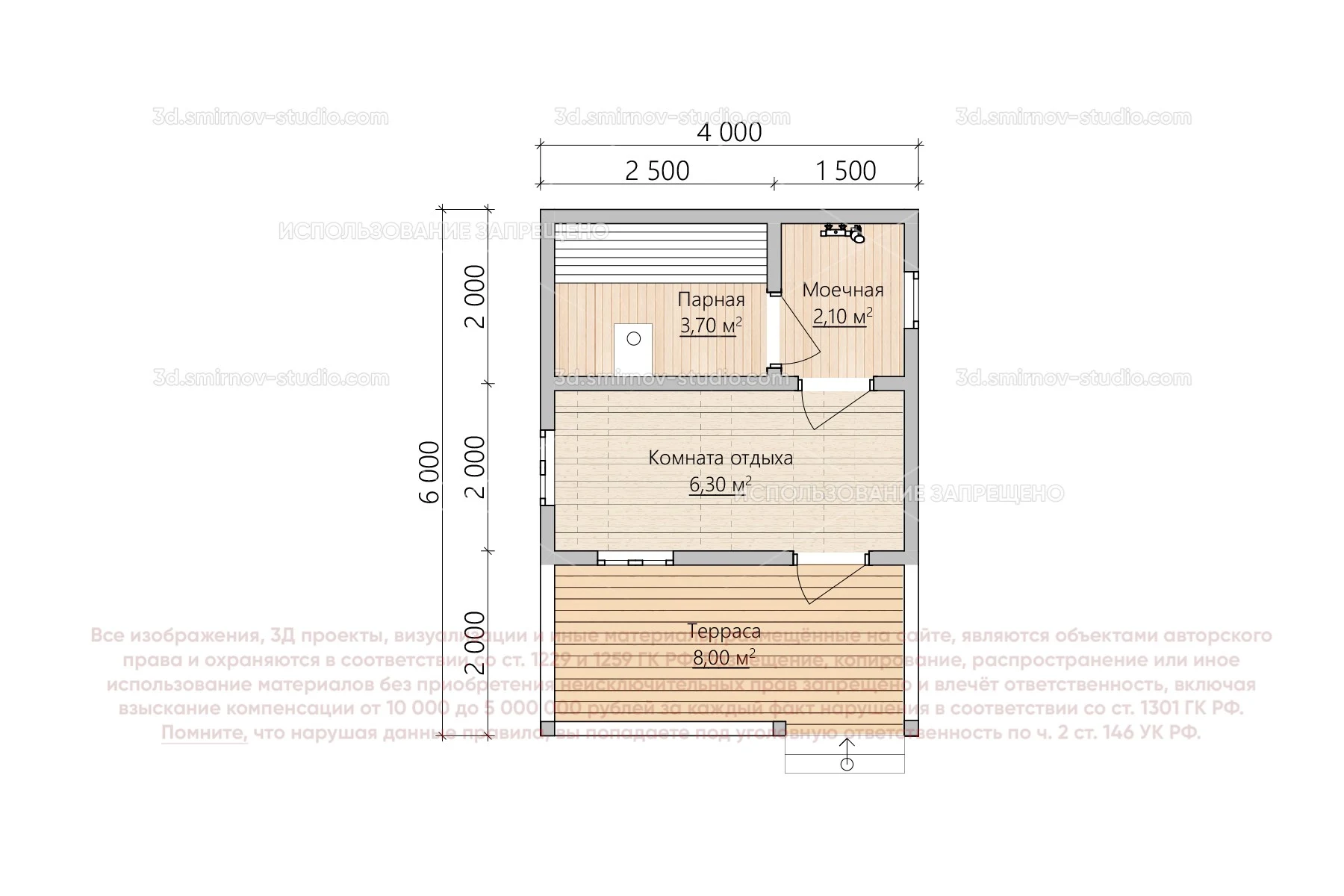
3Д проект одноэтажной каркасной бани 6 на 4 метра, площадью 20,1 м², с прямой крышей, террасой
Выберите цвет проекта
Переключайтесь между цветами, нажимая на их изображения, чтобы увидеть проект в выбранном цвете или нажмите Выбрать, чтобы добавить цвет в корзину
По этому проекту мы можем сделать
- АР4 623 ₽
- КР8 040 ₽
- Смета2 412 ₽
Использование файлов данных браузера
Во время посещения сайта 3d.smirnov-studio.com вы соглашаетесь с тем, что мы обрабатываем ваши персональные данные с использованием метрических программ. Подробнее можно ознакомиться здесь













