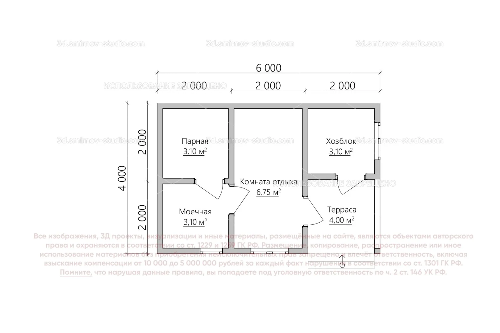
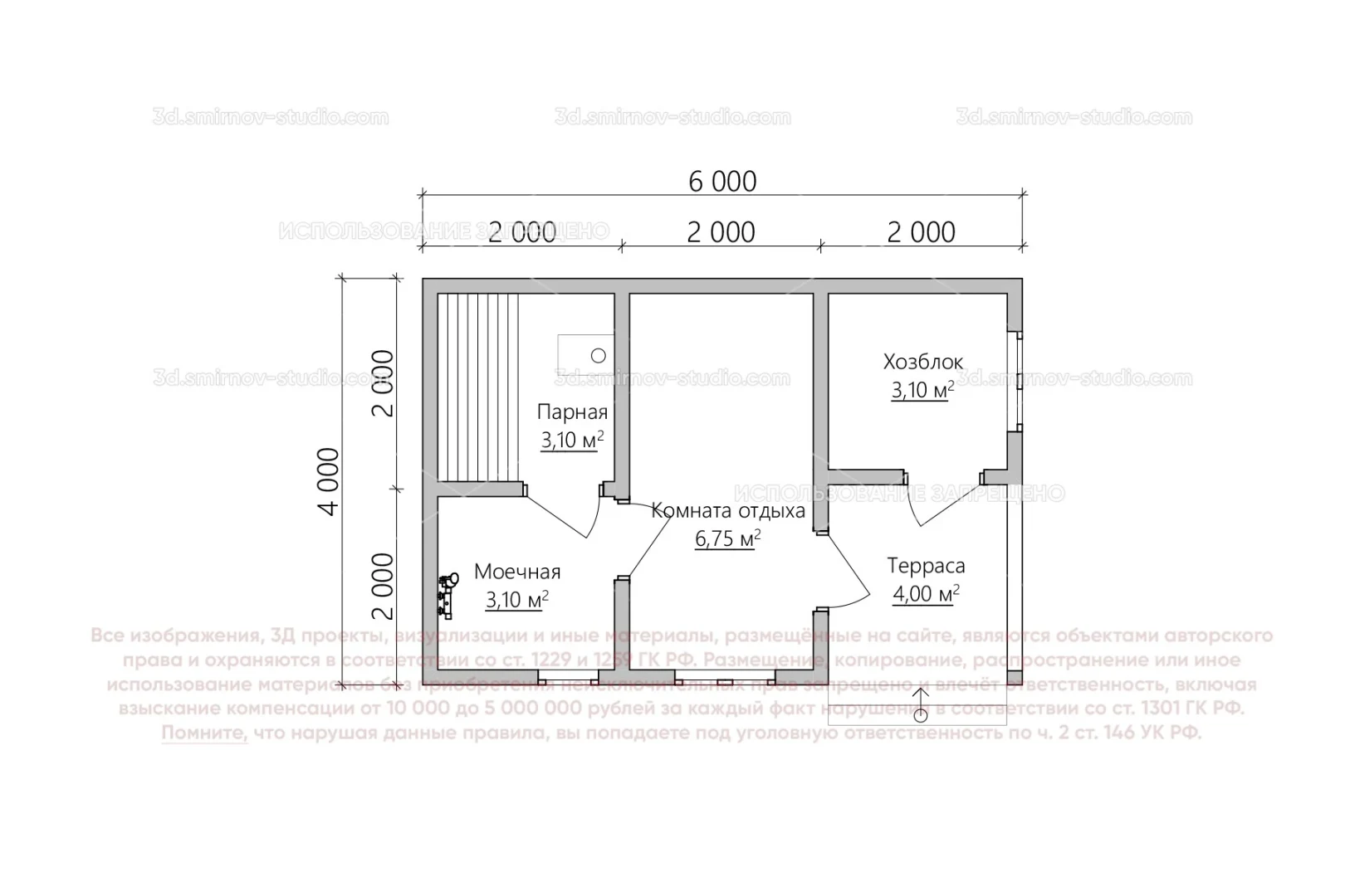
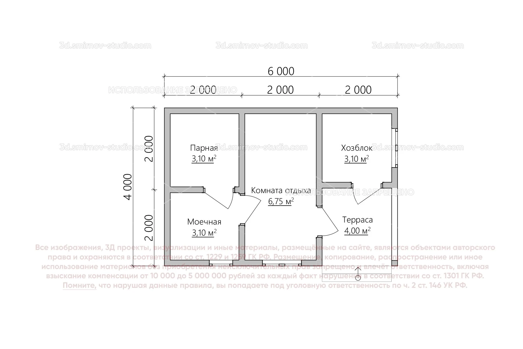
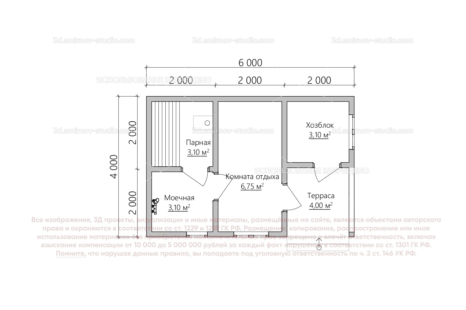
3Д проект одноэтажной бани из бруса 6 на 4 метра, площадью 20,05 м², с прямой крышей, террасой и хоз. блоком
Выберите цвет проекта
Переключайтесь между цветами, нажимая на их изображения, чтобы увидеть проект в выбранном цвете или нажмите Выбрать, чтобы добавить цвет в корзину
По этому проекту мы можем сделать
- АР4 612 ₽
- КР8 020 ₽
- Смета2 406 ₽
Использование файлов данных браузера
Во время посещения сайта 3d.smirnov-studio.com вы соглашаетесь с тем, что мы обрабатываем ваши персональные данные с использованием метрических программ. Подробнее можно ознакомиться здесь













