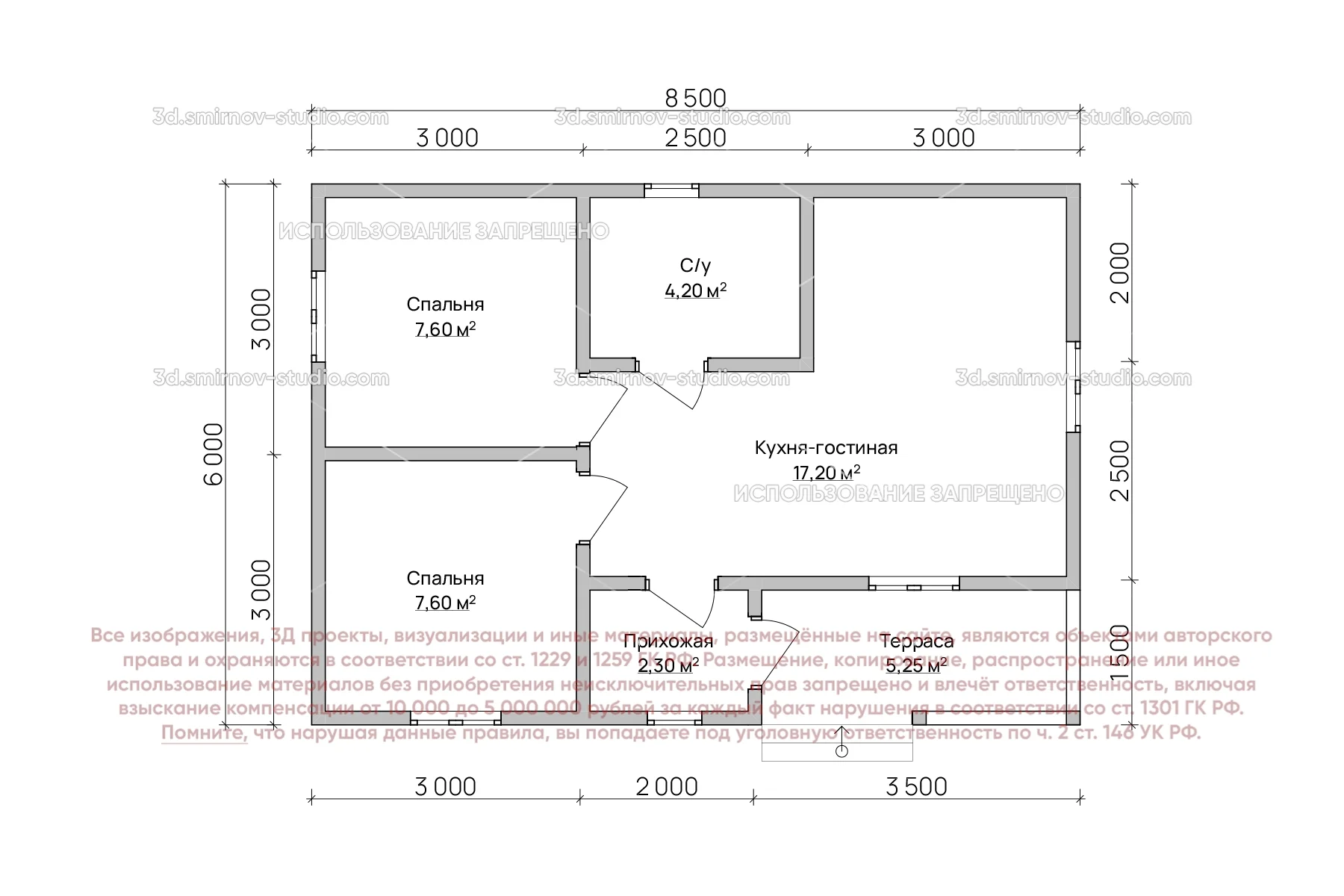
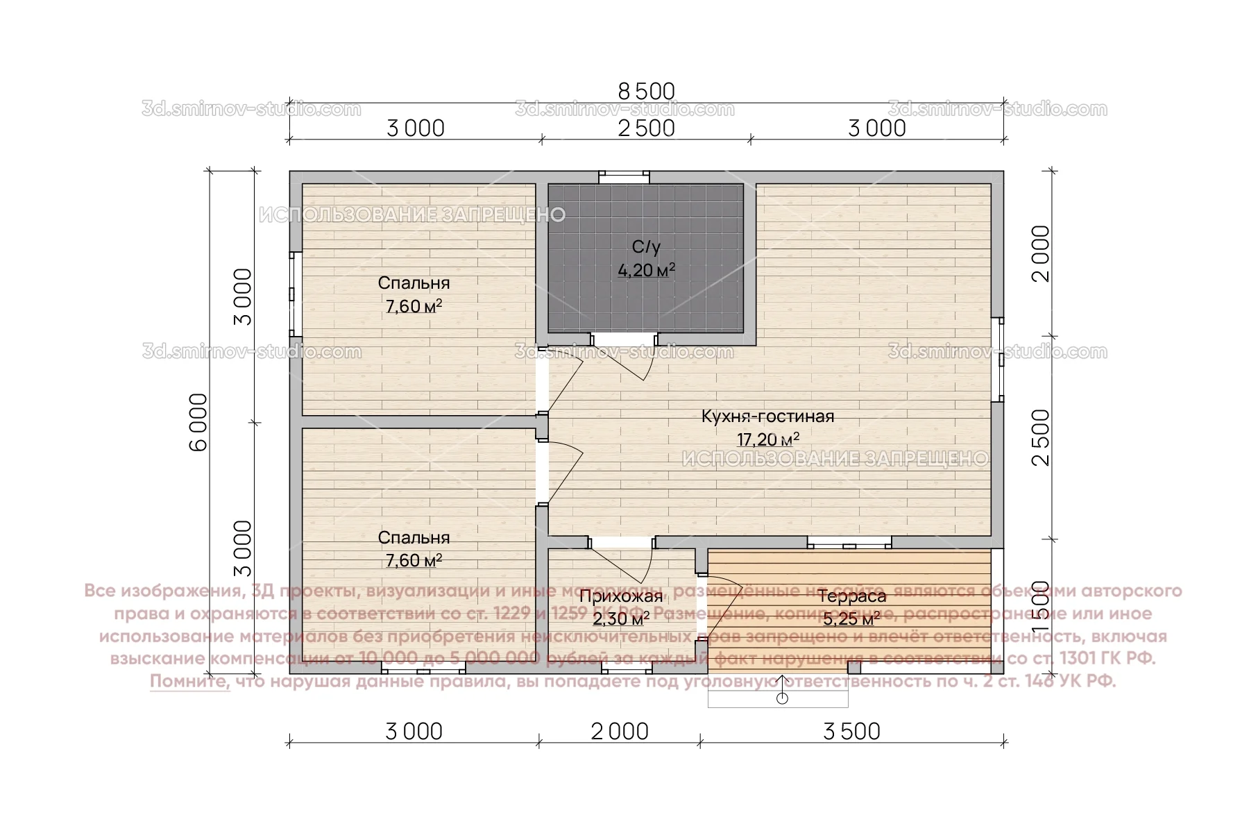
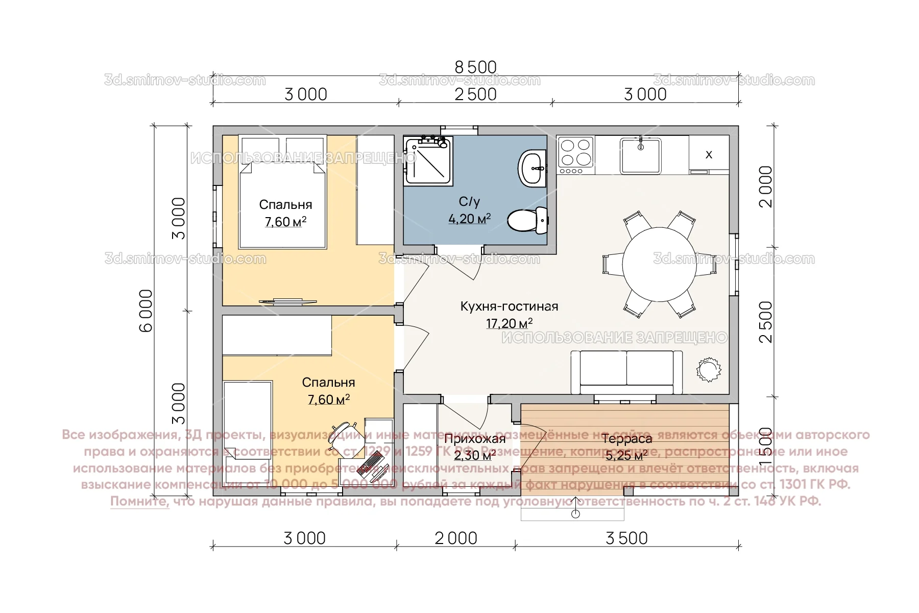
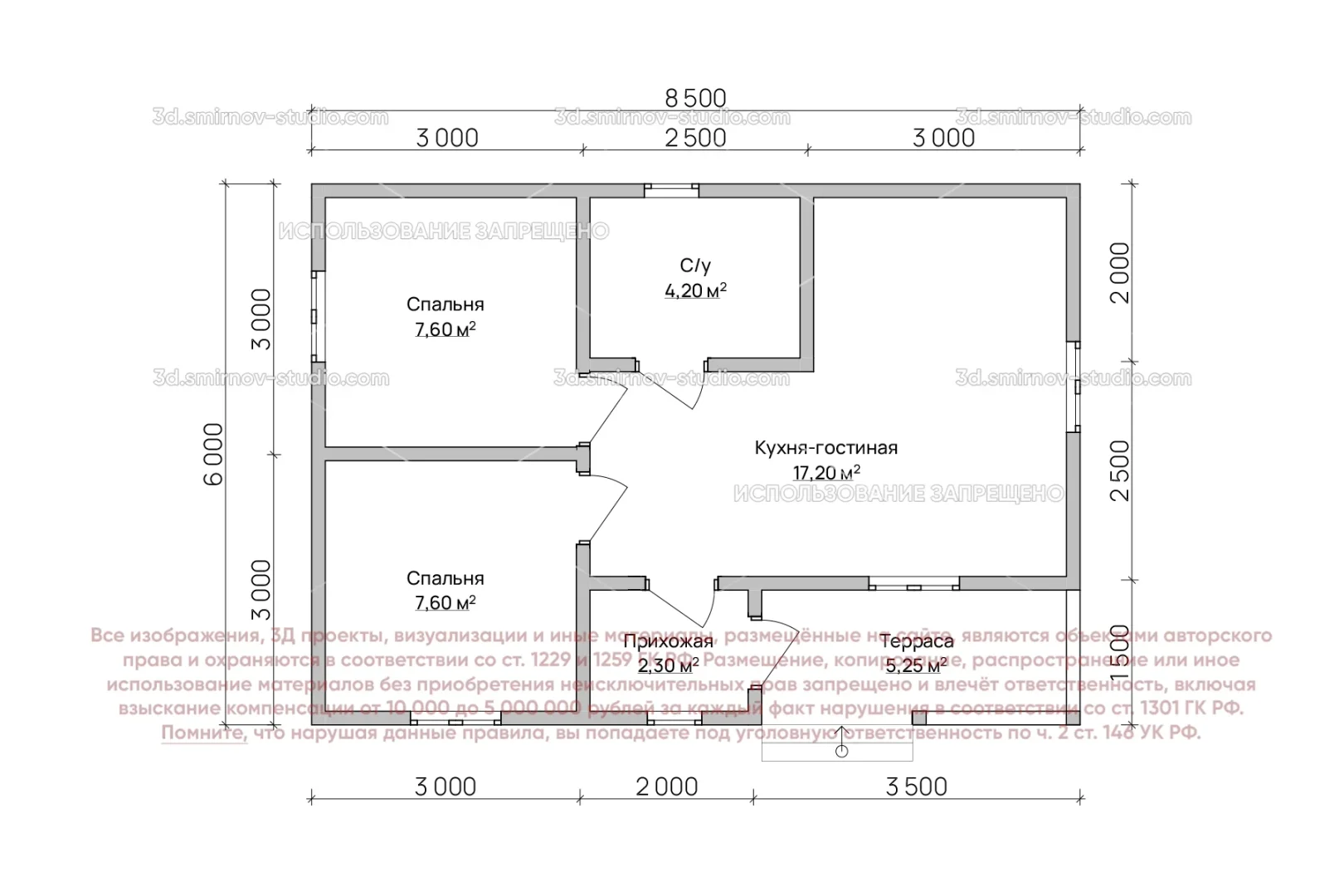
3Д проект одноэтажной каркасной бани 3 на 3 метра, площадью 9м², с односкатной крышей, крыльцом

Project Image 1Project Image 2Project Image 3Project Image 4

Проект «КБ-1»

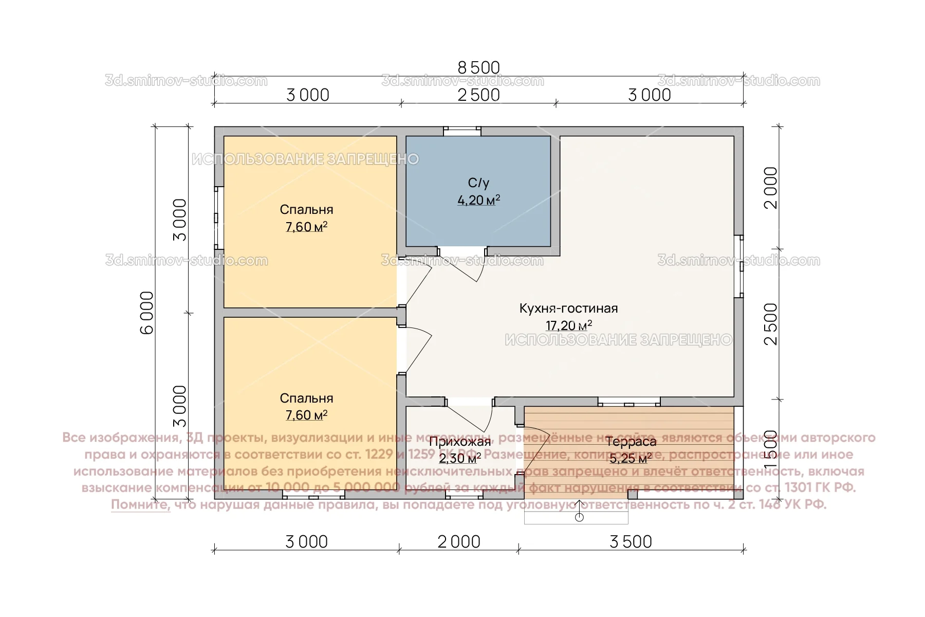
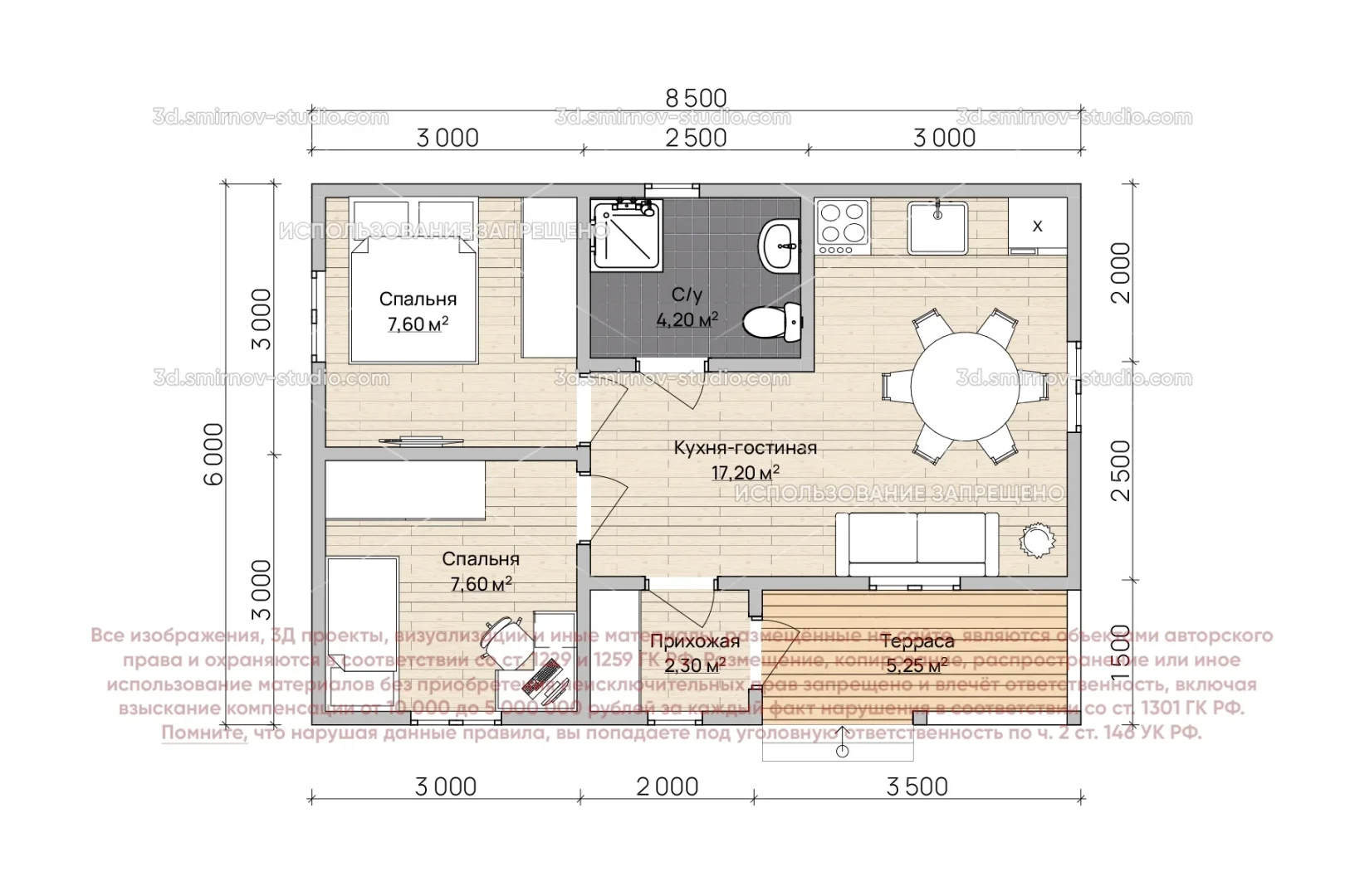
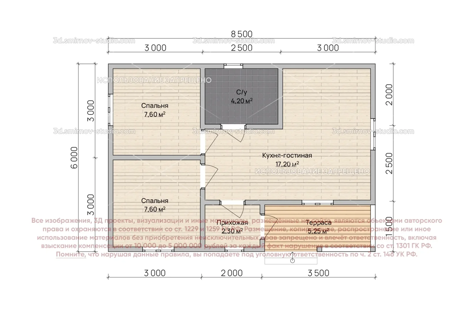
  • Площадь

    9 м²

  • Размер

    3x3 м

  • Этажи

    2

  • Спальни:3
  • Санузлы:2
  • Тех. пом.:Да
  • Кукушка:Нет
  • Тип крыши:Односкатная
  • 2 входа:Нет
  • Терраса:Нет
  • Эркер:Нет
  • Крыльцо:Да
  • Гараж / Навес:Нет
3д + планы + фасады

500

Выберите цвет проекта

По этому проекту мы можем сделать

  • АР
    2 070
  • КР
    3 600
  • Смета
    1 080

Планы помещений

  • Plan Image 1
  • Plan Image 2
  • Plan Image 3
  • Plan Image 4
  • Plan Image 5
  • Plan Image 6

Фасады

  • Facade Image 1
  • Facade Image 2
  • Facade Image 3
  • Facade Image 4